Eladó téglalakás - Tatabánya

kiemelt
Kiemelt
KAPCSOLAT
Papp László


+36 70 528

papp.laszlo@

Az időpont kérés naptár ikonja
IDŐPONTOT KÉREK
A visszahívás kérés telefon ikonja egy azt körbe ölelő nyíllal
VISSZAHÍVÁST KÉREK
Ajánlom egy ismerősömnek ikon
AJÁNLOM EGY ISMERŐSÖMNEK
Facebook megosztás ikon
MEGOSZTÁS

KAPCSOLATFELVÉTEL

Küldés

Az üzenetet sikeresen elküldtük!
Hiba történt!
INGATLAN ADATAI

Ingatlan jellege

téglalakás

Belső terület

77 m²

Tájolás

dél

Panoráma

zöldövezetre

Építési állapot

használt

Építési mód

tégla

Szobák száma

4+2 félszoba

Emelet

4.

Épület szintje

4.

Épült

kb. 1960

Lift

nincs

Ingatlan állapot

kívül: jó
belül: kitűnő

Klíma

van

Ablak szerkezete

2 rétegű thermoplan

Fűtés

távfűtés

Komfort

összkomfort

Kilátás

utcára

Energetika

B:

Extrák

plusz lakótér de önkormányzati, +30m2

Az időpont kérés naptár ikonja
HTML
Az időpont kérés naptár ikonja
PDF
Eladó téglalakás
Ingatlan azonosító:
4244_ko

Komárom-Esztergom megye, Tatabánya, (Újváros), Huba vezér utca

Irányár

72 M Ft
(935.06 E Ft/㎡)

Szobák

4+2 félszoba

Emelet

4

Terület

77 m²
INGATLAN LEÍRÁSA
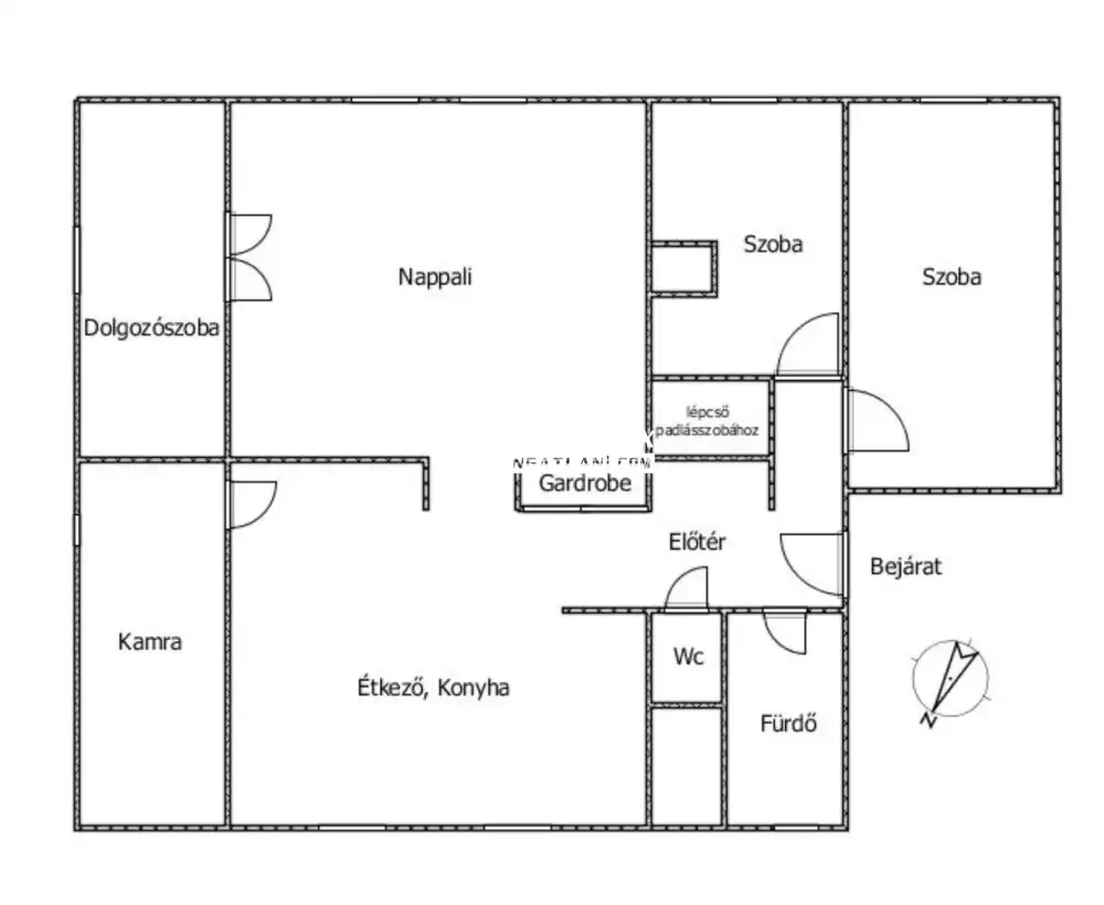
Eladó Tatabánya Újvárosban egy nagyon tágas, világos, tetőtéri, 77 m2-es otthon a 4. emeleten.
A lakás nagyon különleges elrendezésű, tágas nappalival, és élhető szép konyha- étkezővel rendelkezik. Az ingatlan jó minőségű fa, és modern műanyag ablakokkal is felszerelt.
Az otthon összeköttetésben van egy padlásszobával is amihez egyedülálló haszonélvezeti joggal rendelkezik.
Összessen így 4 szoba+2 fél szoba is rendelkezésre áll az új tulajdonos számára. Minden helyiségben kíváló minőségű burkolatok lettek felhelyezve.
Az ingatlan közelében minden megtalálható, ami a kényelmes mindennapi élethez szükséges.
Nézzük meg együtt ezt a különleges lakást, időpont egyeztetés végett keressen akár hétvégén, vagy az esti órákban is! Bankfüggetlen pénzügyi szakembereinkkel intézzük az esetleges hiteligényét!

INGATLAN ADATAI

Ingatlan jellege
téglalakás
Belső terület
77 m²
Tájolás
dél
Panoráma
zöldövezetre
Építési állapot
használt
Építési mód
tégla
Szobák száma
4+2 félszoba
Emelet
4.
Épület szintje
4.
Épült
kb. 1960
Lift
nincs
Ingatlan állapot
kívül: jó
belül: kitűnő
Klíma
van
Ablak szerkezete
2 rétegű thermoplan
Fűtés
távfűtés
Komfort
összkomfort
Kilátás
utcára
Energetika
B:
Extrák
plusz lakótér de önkormányzati, +30m2

KAPCSOLAT
Papp László
Papp László


+36 70 528 7031

papp.laszlo@komplexingatlan.com

KAPCSOLAT
Papp László

+36 70 528

papp.laszlo@

Az időpont kérés naptár ikonja
IDŐPONTOT KÉREK
A visszahívás kérés telefon ikonja egy azt körbe ölelő nyíllal
VISSZAHÍVÁST KÉREK
Ajánlom egy ismerősömnek ikon
AJÁNLOM EGY ISMERŐSÖMNEK
Facebook megosztás ikon
MEGOSZTÁS

KAPCSOLATFELVÉTEL

Küldés

Az üzenetet sikeresen elküldtük!
Hiba történt!
INGATLAN ADATAI

Ingatlan jellege

téglalakás

Belső terület

77 m²

Tájolás

dél

Panoráma

zöldövezetre

Építési állapot

használt

Építési mód

tégla

Szobák száma

4+2 félszoba

Emelet

4.

Épület szintje

4.

Épült

kb. 1960

Lift

nincs

Ingatlan állapot

kívül: jó
belül: kitűnő

Klíma

van

Ablak szerkezete

2 rétegű thermoplan

Fűtés

távfűtés

Komfort

összkomfort

Kilátás

utcára

Energetika

B:

Extrák

plusz lakótér de önkormányzati, +30m2

Az időpont kérés naptár ikonja
HTML
Az időpont kérés naptár ikonja
PDF

Hasonló ingatlan hírdetések

Eladó tégla-, vagy panellakás hirdetést keres Tatabánya területén?
Tekintse meg további ajánlatainkat!

eladó panellakás, Tatabánya

eladó panellakás

Tatabánya-Kertvárosban kínálom megvételre ezt a 81 m²-es, 3 szobás, két erkélyes, első emeleti lakást, amely kiváló választás lehet azok számára, akik nagyobb életteret keresnek elérhető áron. Az ingatlan 2020-ban teljes körű műszaki és esztétikai felújításon esett át, amely során megújult többek között: – a villamos- és vízhálózat – a burkolatok, szaniterek – a radiátorok – a nyílászárók A lakás világos terekkel rendelkezik, a két erkély pedig még tovább növeli a komfortérzetet. A fűtés egyedi mérős távhős (költségosztókkal), így a fenntartási költségek jól kontrollálhatók. A terek tágasak, a szobák teljes értékűek. Érződik, hogy nem egy 50 m²-es lakásban vagyunk. A konyha is tágas, napos. A modern, fehér konyhabútor beépített konyhagépekkel a vételár része. A lakáshoz külön tároló tartozik, ami a mindennapi használatot kényelmesebbé teszi. A környéken új lakóparkok épülnek, ami jelzi a városrész folyamatos fejlődését, megújulását. Ez hosszabb távon pozitív hatással lehet az értékállóságra. A lépcsőház rendezett, a lakóközösség is nagyon jó. Az ipari park néhány perc alatt elérhető. Az ingatlan egyik legnagyobb előnye az ára: ekkora alapterületű lakások jelenleg jellemzően jóval magasabb árszinten érhetők el a piacon. Ha egy nagy alapterületű, teljesen kész otthont keres, ahol nem kell felújítással kezdeni, ez az ingatlan ideális választás lehet.

Komárom-Esztergom megye, Tatabánya, (Kertváros), Dr. Vitális István utca
Tatabánya-Kertvárosban kínálom megvételre ezt a 81 m²-es, 3 szobás, két erkélyes, első emeleti lakást, amely kiváló választás lehet azok számára, akik nagyobb életteret keresnek elérhető áron. Az...
Belső terület
81 m²
Szobák
3
Emelet
1

56.9 M Ft

eladó téglalakás, Tatabánya

eladó téglalakás

Felújítandó erkélyes garzon Tatabányán

Komárom-Esztergom megye, Tatabánya, (Óváros), Szent Borbála út
Felújítandó erkélyes garzon Tatabányán Tatabányán, a Szent Borbála úton kínálok megvételre egy 29 m²-es, erkélyes lakást tégla építésű társasház második emeletén. A lakás egy szobából, külön kon...
Belső terület
29 m²
Szobák
1
Emelet
2

26.9 M Ft

eladó téglalakás, Tatabánya

eladó téglalakás

Teljesen újragondolt otthon Tatabányán

Komárom-Esztergom megye, Tatabánya, Cseri utca
Vannak lakások, ahol a „felújított” szó inkább csak marketing. És vannak olyanok, ahol valóban mindenhez hozzányúltak. TELJESEN ÚJRAGONDOLT OTTHON TATABÁNYÁN Ez a 55 m²-es lakás Tatabányán a Cse...
Belső terület
55 m²
Szobák
2+1
Emelet
4

52.9 M Ft

kiemelt
Kiemelt
eladó téglalakás, Tatabánya

eladó téglalakás

Komárom-Esztergom megye, Tatabánya, Újváros
Komplex Ingatlan kínálatában eladó egy földszinti, egy szobás lakás Tatabányán, az Ifjúság úton. A 38 m2-es lakás egy 4 emeletes téglaépület földszintjén helyezkedik el. Az ingatlan részleges felújít...
Belső terület
38 m²
Szobák
1
Emelet
földszint

36.5 M Ft

eladó panellakás, Tatabánya

eladó panellakás

Tatabánya központjában, 62 m2 nagyságú, 3 szoba hallos, lakás eladó!

Komárom-Esztergom megye, Tatabánya, Újváros
Tatabánya szívében, 62 m2 nagyságú, 3 szoba hallos, lakás eladó! Tatabánya központi részén, az Ifjúmunkás úton eladó egy 62 m²-es, 3 szoba + hall elosztású, jó állapotú lakás, amely egy 10 emelete...
Belső terület
62 m²
Szobák
3
Emelet
8

39.9 M Ft

eladó panellakás, Tatabánya

eladó panellakás

2 szoba hallos lakás, frekventált helyen.

Komárom-Esztergom megye, Tatabánya, (Dózsakert), Dózsakert
Tatabányán közvetlenül a népszerű Sétáló utcában, első emeleti, 2 szoba + hallos lakás keresi új tulajdonosát. Az ingatlan Tatabánya Dózsakertben, kiemelten frekventált helyen található. Kíváló a köz...
Belső terület
54 m²
Szobák
2
Emelet
1

43.26 M Ft

kiemelt
Kiemelt
Komárom-Esztergom megye - Tatabánya
Komárom-Esztergom megye - Tatabánya
Komárom-Esztergom megye - Tatabánya
Komárom-Esztergom megye - Tatabánya
Komárom-Esztergom megye - Tatabánya
Komárom-Esztergom megye - Tatabánya
Komárom-Esztergom megye - Tatabánya
Komárom-Esztergom megye - Tatabánya
Komárom-Esztergom megye - Tatabánya
Komárom-Esztergom megye - Tatabánya
Komárom-Esztergom megye - Tatabánya
Komárom-Esztergom megye - Tatabánya
Komárom-Esztergom megye - Tatabánya
Komárom-Esztergom megye - Tatabánya
Komárom-Esztergom megye - Tatabánya
Komárom-Esztergom megye - Tatabánya
Komárom-Esztergom megye - Tatabánya
Komárom-Esztergom megye - Tatabánya
Komárom-Esztergom megye - Tatabánya
Komárom-Esztergom megye - Tatabánya
Komárom-Esztergom megye - Tatabánya
Komárom-Esztergom megye - Tatabánya
Komárom-Esztergom megye - Tatabánya
Komárom-Esztergom megye - Tatabánya
Komárom-Esztergom megye - Tatabánya
Komárom-Esztergom megye - Tatabánya
Komárom-Esztergom megye - Tatabánya
Komárom-Esztergom megye - Tatabánya