Eladó téglalakás - Tatabánya

kiemelt
Kiemelt
KAPCSOLAT
Papp László


+36 70 528

papp.laszlo@

Az időpont kérés naptár ikonja
IDŐPONTOT KÉREK
A visszahívás kérés telefon ikonja egy azt körbe ölelő nyíllal
VISSZAHÍVÁST KÉREK
Ajánlom egy ismerősömnek ikon
AJÁNLOM EGY ISMERŐSÖMNEK
Facebook megosztás ikon
MEGOSZTÁS

KAPCSOLATFELVÉTEL

Küldés

Az üzenetet sikeresen elküldtük!
Hiba történt!
INGATLAN ADATAI

Ingatlan jellege

téglalakás

Belső terület

86 m²

Tájolás

délnyugat

Építési állapot

használt

Építési mód

tégla

Szobák száma

3 szoba

Kert

(saját kert)

Loggia

9.6 m²

Emelet

földszint.

Épület szintje

4.

Épült

kb. 1965

Lift

nincs

Ingatlan állapot

kívül: jó
belül: jó

Klíma

van

Szigetelés

10 cm

Ablak szerkezete

hagyományos

Fűtés

központi fűtés

Komfort

összkomfort

Kilátás

parkra

Energetika

nincs

Extrák

tároló, klíma, napfényes tágas terek.

Az időpont kérés naptár ikonja
HTML
Az időpont kérés naptár ikonja
PDF
Eladó téglalakás
Ingatlan azonosító:
4279_ko

Komárom-Esztergom megye, Tatabánya, (Óváros), Solymos Mihály u

Irányár

69.9 M Ft
(812.79 E Ft/㎡)

Szobák

3 szoba

Emelet

földszint

Terület

86 m²
INGATLAN LEÍRÁSA
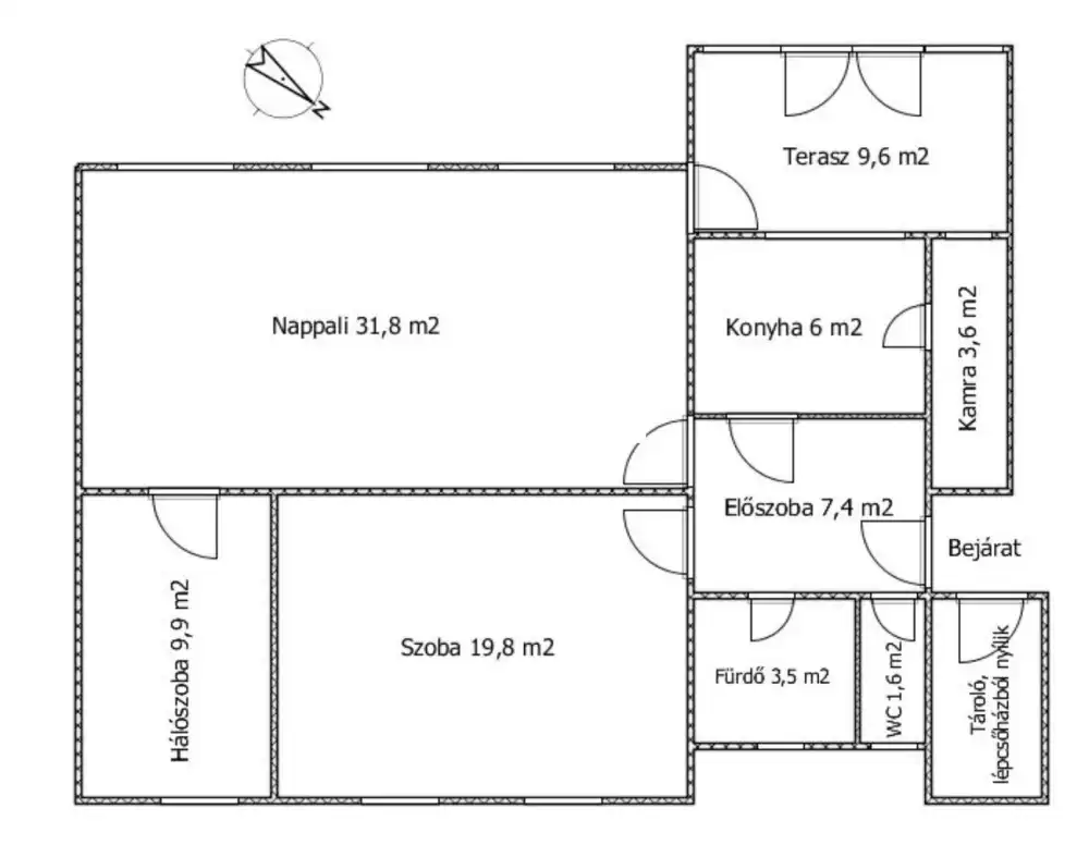
Eladó Tatabányán, Óváros egy nyugodt rendezett környezetű részén lévő földszinti, polgári lakás, amely hivatalosan 86 m2-es, de ha a fedett teraszt is belevesszük, akkor 96 m2 élettérrel várja leendő tulajdonosát!
Az ingatlan tehermentes. A helyiségek tágasak, napfényesek, és praktikusan vannak elrendezve.
A fedett terasz (loggia) étkezőként is funkcionál, a konyhából széles átadóablakon keresztül tálalható.
A loggia szélesre nyíló üvegezett ablakai lehetővé teszik, hogy ha kellemes odakint az idő akkor nyitottá tudjuk tenni. Előtte zöldterület található, úgyhogy kedvünk szerint pár tő paradicsomot, vagy gyönyörű virágokat is ültethetünk ide.
A nyílászárók fából készültek, de kiváló minőségűek, és dupla thermoplán üvegezéssel bírnak.
Az épület téglából épült, ezért a belső klíma, mind télen, mind pedig nyáron is kellemes, de egy hűtő-fűtő klímaberendezés is a rendelkezésünkre áll!
A konyhához hatalmas kamra tartozik, a hűtőszekrény is elfér benne. A bejárati ajtó mellett saját tároló nyílik a lépcsőházból, ide kerékpárt, babakocsit, vagy akár szerszámokat is biztonsággal elhelyezhetünk!
Az alsógallai vasútállomás gyalogosan kb 10-15 percre található, de buszmegállót még közelebb is találunk.
Ha felkeltettem az érdeklődését, keressen bátran akár hétvégén, vagy az esti órákban is! Hiteligényét, profi bankfüggetlen pénzügyi háttérrel tudjuk intézni!

INGATLAN ADATAI

Ingatlan jellege
téglalakás
Belső terület
86 m²
Tájolás
délnyugat
Építési állapot
használt
Építési mód
tégla
Szobák száma
3 szoba
Kert
(saját kert)
Loggia
9.6 m²
Emelet
földszint.
Épület szintje
4.
Épült
kb. 1965
Lift
nincs
Ingatlan állapot
kívül: jó
belül: jó
Klíma
van
Szigetelés
10 cm
Ablak szerkezete
hagyományos
Fűtés
központi fűtés
Komfort
összkomfort
Kilátás
parkra
Energetika
nincs
Extrák
tároló, klíma, napfényes tágas terek.

KAPCSOLAT
Papp László
Papp László


+36 70 528 7031

papp.laszlo@komplexingatlan.com

KAPCSOLAT
Papp László

+36 70 528

papp.laszlo@

Az időpont kérés naptár ikonja
IDŐPONTOT KÉREK
A visszahívás kérés telefon ikonja egy azt körbe ölelő nyíllal
VISSZAHÍVÁST KÉREK
Ajánlom egy ismerősömnek ikon
AJÁNLOM EGY ISMERŐSÖMNEK
Facebook megosztás ikon
MEGOSZTÁS

KAPCSOLATFELVÉTEL

Küldés

Az üzenetet sikeresen elküldtük!
Hiba történt!
INGATLAN ADATAI

Ingatlan jellege

téglalakás

Belső terület

86 m²

Tájolás

délnyugat

Építési állapot

használt

Építési mód

tégla

Szobák száma

3 szoba

Kert

(saját kert)

Loggia

9.6 m²

Emelet

földszint.

Épület szintje

4.

Épült

kb. 1965

Lift

nincs

Ingatlan állapot

kívül: jó
belül: jó

Klíma

van

Szigetelés

10 cm

Ablak szerkezete

hagyományos

Fűtés

központi fűtés

Komfort

összkomfort

Kilátás

parkra

Energetika

nincs

Extrák

tároló, klíma, napfényes tágas terek.

Az időpont kérés naptár ikonja
HTML
Az időpont kérés naptár ikonja
PDF

Hasonló ingatlan hírdetések

Eladó tégla-, vagy panellakás hirdetést keres Tatabánya területén?
Tekintse meg további ajánlatainkat!

eladó panellakás, Tatabánya

eladó panellakás

Komárom-Esztergom megye, Tatabánya, Újváros
Eladó Tatabánya Újváros részében az alábbi paraméterekkel rendelkező lakás ! - 1 teljes értékű, valamint 1 félszoba - konyha - kényelmes fürdőszoba toalettel - tágas közlekedő - hagyományos , k...
Belső terület
36 m²
Szobák
1+1
Emelet
9

31.9 M Ft

eladó téglalakás, Tatabánya

eladó téglalakás

Tatabányán keresed az új otthonod? Modern, akár AZONNAL költözhető tégla lakás eladó kiváló utcában, és első emeleten! Különnyíló szobák, erkély parkra néző kilátással, felújított állapot és extra komfort vár rád! Ne maradj le erről a lehetőségről! ✨

Komárom-Esztergom megye, Tatabánya, (Újváros), Kós Károly utca
Modern, azonnal költözhető lakás eladó Tatabányán! Figyelem, kiváló ingatlan ez, akár az elhelyezkedését, akár az állapotát, adottságait nézzük! Ne maradj le róla! Kiváló lehetőség várja új tulajd...
Belső terület
52 m²
Szobák
2
Emelet
1

48.9 M Ft

azonnal költözhető
Azonnal költözhető
eladó panellakás, Tatabánya

eladó panellakás

Szépen felújított 3szoba+hallos, erkélyes lakás Bánhidán.

Komárom-Esztergom megye, Tatabánya, (Bánhidai lakótelep), Bánhidai lakótelep
Megvételre kínálunk, Tatabánya egyik legjobb környékén, a Bánhidai lakótelepen lévő 3. emeleti 3 szoba+hallos, erkélyes lakást. Az ingatlan igényesen felújított, a bejárat több ponton záródó biztonsá...
Belső terület
63 m²
Szobák
3
Emelet
3

51.2 M Ft

kiemelt
Kiemelt
eladó téglalakás, Tatabánya

eladó téglalakás

Tatabánya – Bárdos lakópark, 84 m², amerikai konyha, nappali + 3 szoba

Komárom-Esztergom megye, Tatabánya, Bárdos lakópark
Tatabánya – Bárdos lakópark, 84 m², amerikai konyha, nappali + 3 szoba! Tatabánya egyik kedvelt részén, a Bárdos lakóparkban kínálunk eladásra egy 2018-ban épült, tégla falazatú, szigetelt társash...
Belső terület
84 m²
Szobák
4
Emelet
3

62.99 M Ft

eladó téglalakás, Tatabánya

eladó téglalakás

Világos 1,5 szobás 3. emeleti tégla lakás a Piac téren.

Komárom-Esztergom megye, Tatabánya, (Újváros), Piac tér
Eladó egy Tatabánya Újvárosban a Piac téren található 3. emeleti 1,5 szobás 43 m2-es téglaépítésű lakás. Az ingatlan a város központi területén helyezkedik el, közel a vasútállomáshoz, a Vértes Plázá...
Belső terület
43 m²
Szobák
1+1
Emelet
3

36.5 M Ft

kiemelt
Kiemelt
eladó téglalakás, Tatabánya

eladó téglalakás

Különleges, tágas otthon, Tatabánya csendes részén.

Komárom-Esztergom megye, Tatabánya, (Újváros), Huba vezér utca
Eladó Tatabánya Újvárosban egy nagyon tágas, világos, tetőtéri, 77 m2-es otthon a 4. emeleten. A lakás nagyon különleges elrendezésű, tágas nappalival, és élhető szép konyha- étkezővel rendelkezik. A...
Belső terület
77 m²
Szobák
4+2
Emelet
4

72 M Ft

kiemelt
Kiemelt
eladó panellakás, Tatabánya

eladó panellakás

Csendes környéken lévő, jó lakóközösséggel rendelkező 3 szoba+hallos, erkélyes lakás.

Komárom-Esztergom megye, Tatabánya, (Gál István lakótelep), Gál István lakótelep
Eladó egy 64 m2-es, 3 szoba + hallos, 3. emeleti erkélyes lakás, Tatabányán, a Gál István lakótelep egy nagyon nyugodt részén, gyönyörű panorámával a Gerecsére, rajta a Turul madárral. A lakás egy sz...
Belső terület
64 m²
Szobák
3
Emelet
3

46.4 M Ft

kiemelt
Kiemelt
eladó panellakás, Tatabánya

eladó panellakás

Praktikus 1 szobás 37m2-es nagyerkélyes lakás

Komárom-Esztergom megye, Tatabánya, (Gál István lakótelep), Gál István ltp
Eladó egy Tatabánya Gál István lakótelepi 10 emeletes panel épületben lévő, 7. emeleti 1 szobás, erkélyes 37 m2-es lakás. A nyílászárók jó minőségű műanyagból készültek, 2 rétegű üvegekkel. Az ablako...
Belső terület
37 m²
Szobák
1
Emelet
7

34 M Ft

kiemelt
Kiemelt
Komárom-Esztergom megye - Tatabánya
Komárom-Esztergom megye - Tatabánya
Komárom-Esztergom megye - Tatabánya
Komárom-Esztergom megye - Tatabánya
Komárom-Esztergom megye - Tatabánya
Komárom-Esztergom megye - Tatabánya
Komárom-Esztergom megye - Tatabánya
Komárom-Esztergom megye - Tatabánya
Komárom-Esztergom megye - Tatabánya
Komárom-Esztergom megye - Tatabánya
Komárom-Esztergom megye - Tatabánya
Komárom-Esztergom megye - Tatabánya
Komárom-Esztergom megye - Tatabánya
Komárom-Esztergom megye - Tatabánya
Komárom-Esztergom megye - Tatabánya
Komárom-Esztergom megye - Tatabánya
Komárom-Esztergom megye - Tatabánya
Komárom-Esztergom megye - Tatabánya
Komárom-Esztergom megye - Tatabánya