Eladó panellakás - Tatabánya

kiemelt
Kiemelt
KAPCSOLAT
Papp László


+36 70 528

papp.laszlo@

Az időpont kérés naptár ikonja
IDŐPONTOT KÉREK
A visszahívás kérés telefon ikonja egy azt körbe ölelő nyíllal
VISSZAHÍVÁST KÉREK
Ajánlom egy ismerősömnek ikon
AJÁNLOM EGY ISMERŐSÖMNEK
Facebook megosztás ikon
MEGOSZTÁS

KAPCSOLATFELVÉTEL

Küldés

Az üzenetet sikeresen elküldtük!
Hiba történt!
INGATLAN ADATAI

Ingatlan jellege

panellakás

Belső terület

53 m²

Tájolás

délnyugat

Építési állapot

használt

Építési mód

panel

Szobák száma

2 szoba

Szobák elhelyezkedése

külön nyílik min. 2 szoba

Emelet

3.

Épület szintje

5.

Épült

1975

Lift

nincs

Ingatlan állapot

kívül: jó
belül: jó

Ablak szerkezete

2 rétegű thermoplan

Fűtés

távfűtés

Komfort

összkomfort

Kilátás

utcára

Energetika

nincs

Extrák

redőny, szúnyogháló. berendezés, bútorok.

Az időpont kérés naptár ikonja
HTML
Az időpont kérés naptár ikonja
PDF
Eladó panellakás
Ingatlan azonosító:
4150_ko

Komárom-Esztergom megye, Tatabánya, (Dózsakert), Dózsakert

Irányár

39 M Ft
(735.85 E Ft/㎡)

Szobák

2 szoba

Emelet

3

Terület

53 m²
INGATLAN LEÍRÁSA
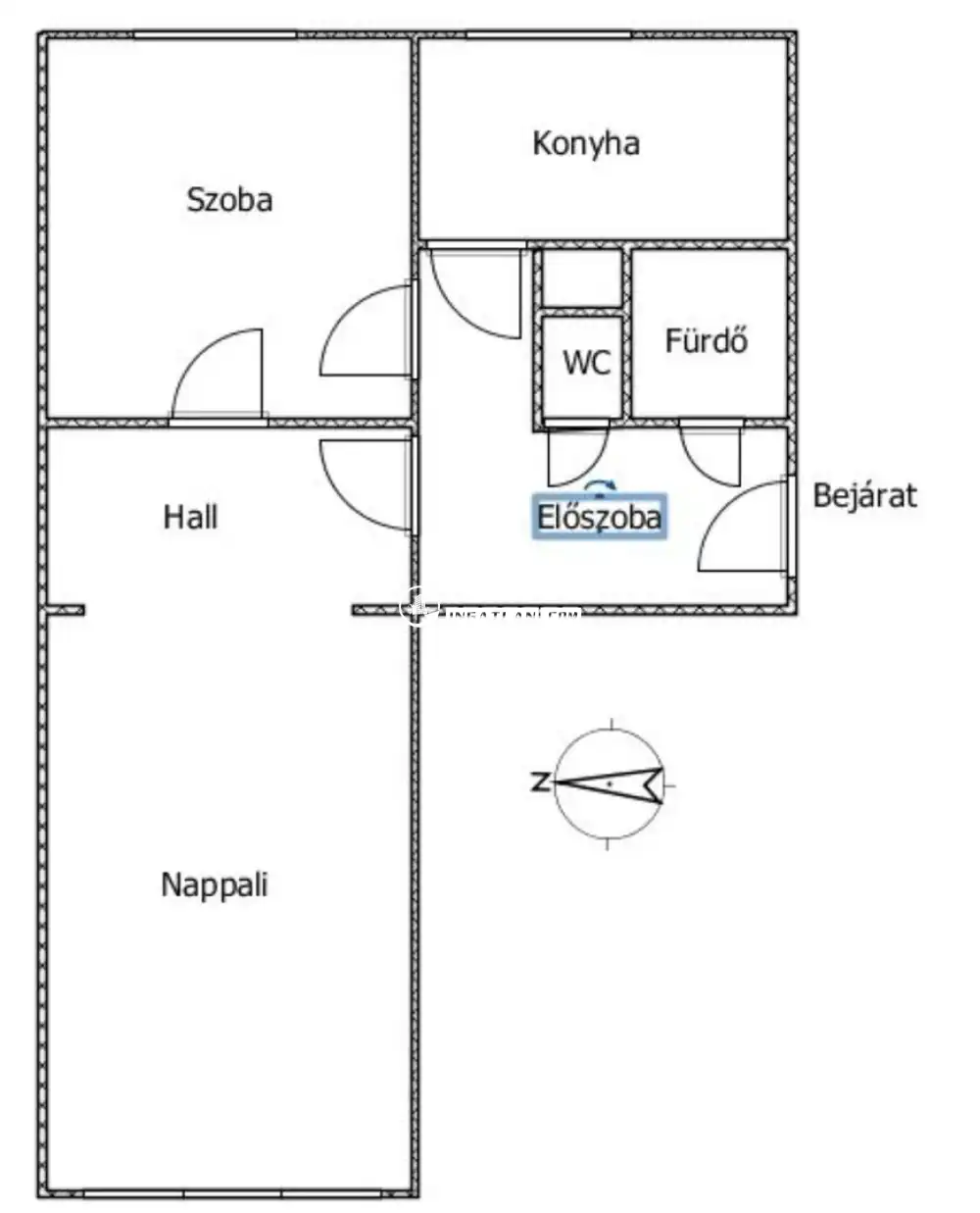
Eladóvá vált egy 2 szoba+ hall-os 3. emeleti lakás, Tatabánya népszerű részén, a Dózsakerti Sétáló utcában.

A lakás jó állapotú, új korszerű bejárati ajtóval, és ablakokkal rendelkezik. Egy tisztasági festés után azonnal költözhrtő. Minden ablakon jól működő redőny, és szúnyogháló található.
A közelben számtalan üzlet, iskola, óvoda, és a kórház a szakrendelőkkel is csak 5 perc gyalogosan!

A képeken látható teljes berendezés a vételár részét képezi, de a nem kívánt bútorokat természetesen kérésre elszállítja a tulajdonos.

Az ingatlanhoz saját tároló is tartozik!

Ha felkeltettem az érdeklődését, keressen akár hétvégén, vagy az esti órákban is! Esetleges hiteligényét profi háttérrel intézzük! Teljeskörű ügyéntézéssel segítjük az adásvétel zökkenőmentes lebonyolítását!

INGATLAN ADATAI

Ingatlan jellege
panellakás
Belső terület
53 m²
Tájolás
délnyugat
Építési állapot
használt
Építési mód
panel
Szobák száma
2 szoba
Szobák elhelyezkedése
külön nyílik min. 2 szoba
Emelet
3.
Épület szintje
5.
Épült
1975
Lift
nincs
Ingatlan állapot
kívül: jó
belül: jó
Ablak szerkezete
2 rétegű thermoplan
Fűtés
távfűtés
Komfort
összkomfort
Kilátás
utcára
Energetika
nincs
Extrák
redőny, szúnyogháló. berendezés, bútorok.

KAPCSOLAT
Papp László
Papp László


+36 70 528 7031

papp.laszlo@komplexingatlan.com

KAPCSOLAT
Papp László

+36 70 528

papp.laszlo@

Az időpont kérés naptár ikonja
IDŐPONTOT KÉREK
A visszahívás kérés telefon ikonja egy azt körbe ölelő nyíllal
VISSZAHÍVÁST KÉREK
Ajánlom egy ismerősömnek ikon
AJÁNLOM EGY ISMERŐSÖMNEK
Facebook megosztás ikon
MEGOSZTÁS

KAPCSOLATFELVÉTEL

Küldés

Az üzenetet sikeresen elküldtük!
Hiba történt!
INGATLAN ADATAI

Ingatlan jellege

panellakás

Belső terület

53 m²

Tájolás

délnyugat

Építési állapot

használt

Építési mód

panel

Szobák száma

2 szoba

Szobák elhelyezkedése

külön nyílik min. 2 szoba

Emelet

3.

Épület szintje

5.

Épült

1975

Lift

nincs

Ingatlan állapot

kívül: jó
belül: jó

Ablak szerkezete

2 rétegű thermoplan

Fűtés

távfűtés

Komfort

összkomfort

Kilátás

utcára

Energetika

nincs

Extrák

redőny, szúnyogháló. berendezés, bútorok.

Az időpont kérés naptár ikonja
HTML
Az időpont kérés naptár ikonja
PDF

Hasonló ingatlan hírdetések

Eladó tégla-, vagy panellakás hirdetést keres Tatabánya területén?
Tekintse meg további ajánlatainkat!

eladó téglalakás, Tatabánya

eladó téglalakás

Tatabánya-Kertvárosban napfényes, erkélyes lakás!

Komárom-Esztergom megye, Tatabánya, Kertváros
Tatabánya–Kertvárosban felújítandó, napfényes lakás erkéllyel – kiváló lokációval Eladásra kínálunk Tatabánya közkedvelt Kertváros városrészében egy négyemeletes, téglaépítésű társasház 4. emeletén t...
Belső terület
50 m²
Szobák
2
Emelet
4

34.99 M Ft

eladó téglalakás, Tatabánya

eladó téglalakás

Tatabánya, magasföldszinti, 56m2, nagy erkélyes, igényesen felújított lakás eladó!

Komárom-Esztergom megye, Tatabánya, Ságvári lakótelep
Tatabánya Óvárosában igényesen felújított, nagy erkélyes lakás eladó – azonnal költözhető! Tatabánya kedvelt Óváros részén kínálunk megvételre egy 56 m²-es, magasföldszinti, nagy erkélyes, kimagasl...
Belső terület
56 m²
Szobák
2
Emelet
magasföldszint

49.9 M Ft

eladó téglalakás, Tatabánya

eladó téglalakás

2 szoba, nagy erkély, tégla épületben.

Komárom-Esztergom megye, Tatabánya, (Újváros), Kőrösi Csoma Sándor tér
Tatabánya Újvárosban, a Gála cukrászda közelében, csendes környéken eladó egy 3. emeleti, 2 szobás, nagy erkélyes, tégla épületben elhelyezkedő lakás. A leendő otthon 55 m2-es, de nagyon jó elrendez...
Belső terület
55 m²
Szobák
2
Emelet
3

42 M Ft

azonnal költözhető
Azonnal költözhető
eladó panellakás, Tatabánya

eladó panellakás

Fiatalos lakás, vagy jó befektetés! Alacsony rezsi!

Komárom-Esztergom megye, Tatabánya, (Sárberek), Sárbereki lakótelep
Eladóvá vált egy 2 szobás 3. emeleti liftes lakás, Tatabánya legnépszerűbb, legfiatalosabb részén a Sárberki lakótelepen, a Csónakázó tó közvetlen közelében. A lakás új több ponton záródó biztonság...
Belső terület
49 m²
Szobák
2
Emelet
3

36.9 M Ft

kiemelt
Kiemelt
eladó téglalakás, Tatabánya

eladó téglalakás

Tatabányán 80 m², 3 szoba + amerikai konyhás, 2 erkélyes lakás!

Komárom-Esztergom megye, Tatabánya, Kertváros
Tatabányán eladó prémium kialakítású, 80 m², 3 szoba, amerikai konyhás, 2 erkélyes lakás! Eladásra kínálunk Tatabányán egy 2018-ban épült, korszerű műszaki tartalommal rendelkező, tégla falazatú tá...
Belső terület
80 m²
Szobák
4
Emelet
3

78.8 M Ft

eladó panellakás, Tatabánya

eladó panellakás

Tatabánya egyik legfelkapotabb legjobb részén, Dózsakertben, a sétáló utca mellett eladó egy kiváló állapotú, 53 m²-es, 2 szobás, hallos panel lakás!

Komárom-Esztergom megye, Tatabánya, (Dózsakert), Dózsakert
Ideális otthon Tatabánya legnépszerűbb részén, a Dózsakerti Sétáló utca mellett! Tatabánya kedvelt Dózsakert városrészében eladóvá vált egy 53 m²-es, 2 szobás, hallos, harmadik emeleti, távfűtéses ...
Belső terület
53 m²
Szobák
2
Emelet
3

40.3 M Ft

kiemelt
Kiemelt
eladó panellakás, Tatabánya

eladó panellakás

Tatabányán, Sárbereki lakótelepen eladó egy tágas, 62 nm-es, 3 szobás panellakás! Az erkélyes lakás világos, jó elosztású, különnyíló szobákkal és hallal rendelkezik. A déli fekvésű otthon a harmadik emeleten található. Kitűnő infrastruktúra, kiváló tömegközlekedés, közel mindenhez!

Komárom-Esztergom megye, Tatabánya, (Sárberek), Sárbereki lakótelep
Világos, tágas panellakás Tatabányán, városi panorámával, a Csónakázó tó mellett. Eladó Tatabánya közkedvelt Sárbereki lakótelepén, egy 62 m²-es, erkélyes, 3 szobás, részben felújítandó panellakás....
Belső terület
62 m²
Szobák
3
Emelet
3

47 M Ft

eladó panellakás, Tatabánya

eladó panellakás

Tatabányán, a Gál István lakótelepen kínálunk eladásra egy remek állapotban lévő, 55 m²-es otthont! 2+1 szoba, jó beosztás, különnyíló helyiségek és modern nyílászárók várják új lakóikat! Ideális fiatal pároknak, családoknak!

Komárom-Esztergom megye, Tatabánya, (Gál István lakótelep), Gál István lakótelep
Kiemelt lehetőség Tatabányán, a Gál István lakótelepen! Ez a remekül karbantartott, 55 m²-es, panelépítésű lakás nyugati tájolásának és városi panorámájának köszönhetően napfényes, és világos ottho...
Belső terület
55 m²
Szobák
2+1
Emelet
5

41.3 M Ft

kiemelt
Kiemelt
Komárom-Esztergom megye - Tatabánya
Komárom-Esztergom megye - Tatabánya
Komárom-Esztergom megye - Tatabánya
Komárom-Esztergom megye - Tatabánya
Komárom-Esztergom megye - Tatabánya
Komárom-Esztergom megye - Tatabánya
Komárom-Esztergom megye - Tatabánya
Komárom-Esztergom megye - Tatabánya
Komárom-Esztergom megye - Tatabánya
Komárom-Esztergom megye - Tatabánya
Komárom-Esztergom megye - Tatabánya
Komárom-Esztergom megye - Tatabánya
Komárom-Esztergom megye - Tatabánya
Komárom-Esztergom megye - Tatabánya
Komárom-Esztergom megye - Tatabánya
Komárom-Esztergom megye - Tatabánya
Komárom-Esztergom megye - Tatabánya
Komárom-Esztergom megye - Tatabánya
Komárom-Esztergom megye - Tatabánya
Komárom-Esztergom megye - Tatabánya
Komárom-Esztergom megye - Tatabánya