Kiadó új építésű ház - Paks

azonnal költözhető
Azonnal költözhető
KAPCSOLAT
Görög Zoltán


+36 30 517

gorogzoltan@

Az időpont kérés naptár ikonja
IDŐPONTOT KÉREK
A visszahívás kérés telefon ikonja egy azt körbe ölelő nyíllal
VISSZAHÍVÁST KÉREK
Ajánlom egy ismerősömnek ikon
AJÁNLOM EGY ISMERŐSÖMNEK
Facebook megosztás ikon
MEGOSZTÁS

KAPCSOLATFELVÉTEL

Küldés

Az üzenetet sikeresen elküldtük!
Hiba történt!
INGATLAN ADATAI

Ingatlan jellege

családi ház

Belső terület

115 m²

Telek terület

173 m²

Tájolás

nyugat, északnyugat

Építési állapot

új

Építési mód

tégla

Szobák száma

4 szoba

Bútorozottság

igen

Erkély

7 m²

Terasz

13.5 m²

Épület szintje

2.

Épült

2026

Akadálymentes

igen

Ingatlan állapot

kívül: új
belül: új

Klíma

van

Szigetelés

15 cm

Fűtés

hőszivattyús

Komfort

összkomfort

Parkolás

van önálló garázs

Közműállapot

csatorna: bekötve
gáz: nincs
villany: bekötve
víz: bekötve

Energetika

A+:

Extrák

hőszivattyús padlófűtés és mennyezet hűtés. a+ energetrikai besorolás.

Háziállat hozható?

nem hozható

Az időpont kérés naptár ikonja
HTML
Az időpont kérés naptár ikonja
PDF
Kiadó új építésű ház
Ingatlan azonosító:
1050_gz

Tolna megye, Paks, Ezüstfa

Bérleti díj

650 E Ft/hó
(5.65 E Ft/㎡)

Szobák

4 szoba

Terület

115 m²

Telek terület

173 m²
INGATLAN LEÍRÁSA
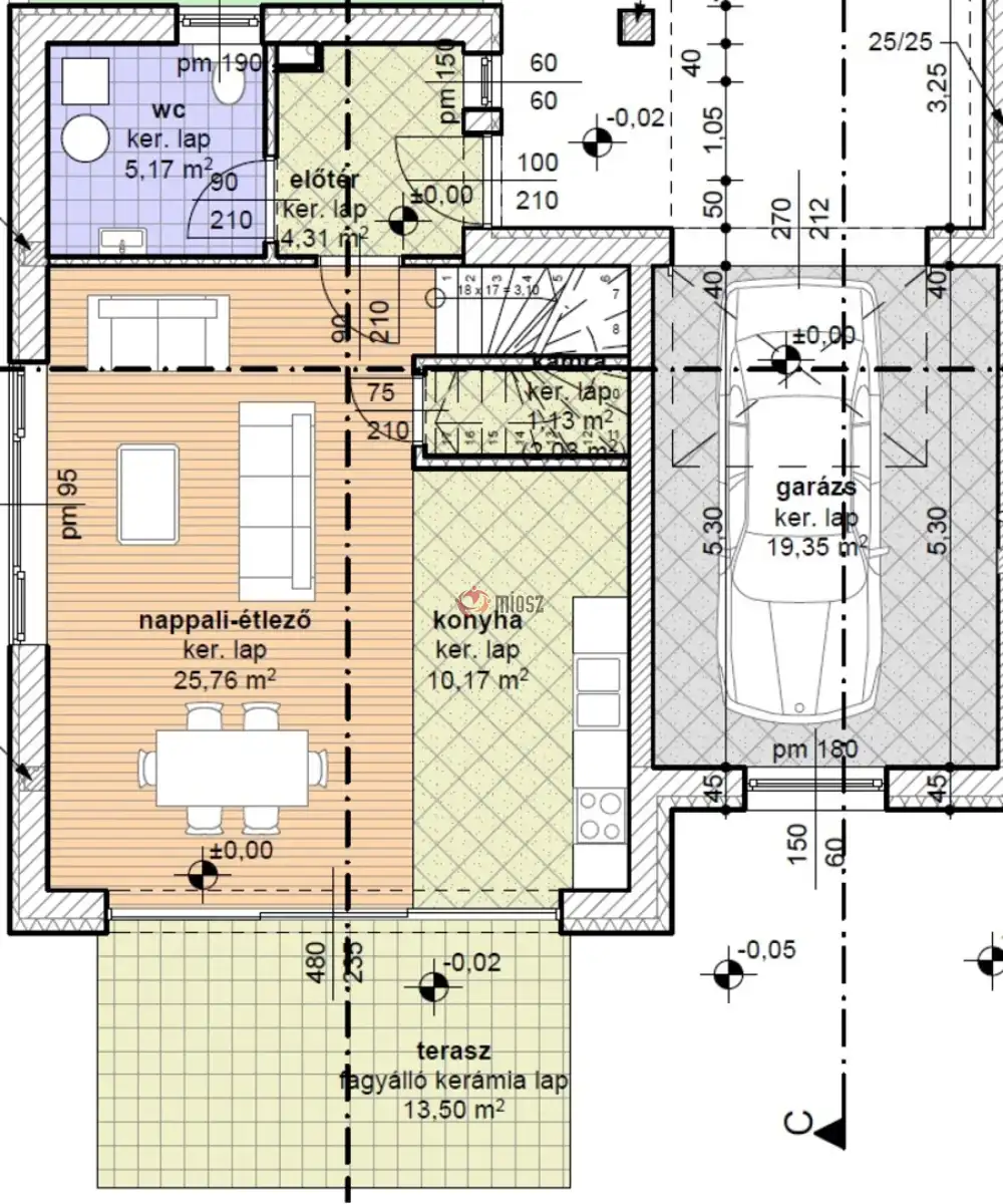
Paks, White Hill lakóparkban új építésű luxus minőségű családiház KIADÓ!

A 115 m2-es, kétszintes kertkapcsolatos ház a képeken látható új állapotában, teljesen bútorozva és gépesítve azonnal költözhető.

Az ingatlanba egy kényelmes méretű előtéren át érkezünk meg, melyből közvetlenül nyílik a tágas vendégmosdó/háztartási helyiség és a nagy és világos amerikai konyhás nappali.

A 36 m2-es nappali minden család számára elegendő helyet biztosít az otthoni kényelmes kikapcsolódásra.
Az életteret tovább növeli a nappaliból egy nagy elhúzható üvegajtó segítségével elérhető 13.5 m2-es részben fedett terasz és a kizárólagos használatú 173 m2-es saját kert.

A konyha minden igény szerint felszerelt állapotban, beépített hűtővel és mosogatógéppel kerül átadásra.

A lépcsőházon át az emeletre érve három tágas és világos hálószoba, gardrób és egy kényelmes fürdőszoba fürdőkáddal, zuhanyzóval és WC-vel várja leendő új lakóit.

A komfortérzetet növelve, az alaprajz szerinti kialakításban két hálószobából is elérhető a 6,75 m2-es terasz, plusz az egyik szobából egy 17 m2-es tetőterasz is garantálja a minőségi kikapcsolódás lehetőségét.

A fűtést és hűtést H tarifával kiépített hőszivattyú biztosítja padlófűtés és mennyezet hűtés segítségével.
A 15 cm grafitos hőszigetelésnek, a 3 rétegű üvegezéssel ellátott magas minőségű nyílászároknak, így az A+ energetikai besorolásnak köszönhetően az épület rezsije nagyon alacsony.

Parkolás a bejárat melletti saját garázsban és az épület előtt is közvetlenül, kényelmesen lehetséges.

INGATLAN ADATAI

Ingatlan jellege
családi ház
Belső terület
115 m²
Telek terület
173 m²
Tájolás
nyugat, északnyugat
Építési állapot
új
Építési mód
tégla
Szobák száma
4 szoba
Bútorozottság
igen
Erkély
7 m²
Terasz
13.5 m²
Épület szintje
2.
Épült
2026
Akadálymentes
igen
Ingatlan állapot
kívül: új
belül: új
Klíma
van
Szigetelés
15 cm
Fűtés
hőszivattyús
Komfort
összkomfort
Parkolás
van önálló garázs
Közműállapot
csatorna: bekötve
gáz: nincs
villany: bekötve
víz: bekötve
Energetika
A+:
Extrák
hőszivattyús padlófűtés és mennyezet hűtés. a+ energetrikai besorolás.
Háziállat hozható?
nem hozható
TÉRKÉP

Tolna megye, Paks, Ezüstfa

KAPCSOLAT
Görög Zoltán
Görög Zoltán


+36 30 517 2623

gorogzoltan@ingatlanpaks.hu

KAPCSOLAT
Görög Zoltán

+36 30 517

gorogzoltan@

Az időpont kérés naptár ikonja
IDŐPONTOT KÉREK
A visszahívás kérés telefon ikonja egy azt körbe ölelő nyíllal
VISSZAHÍVÁST KÉREK
Ajánlom egy ismerősömnek ikon
AJÁNLOM EGY ISMERŐSÖMNEK
Facebook megosztás ikon
MEGOSZTÁS

KAPCSOLATFELVÉTEL

Küldés

Az üzenetet sikeresen elküldtük!
Hiba történt!
INGATLAN ADATAI

Ingatlan jellege

családi ház

Belső terület

115 m²

Telek terület

173 m²

Tájolás

nyugat, északnyugat

Építési állapot

új

Építési mód

tégla

Szobák száma

4 szoba

Bútorozottság

igen

Erkély

7 m²

Terasz

13.5 m²

Épület szintje

2.

Épült

2026

Ingatlan állapot

kívül: új
belül: új

Klíma

van

Szigetelés

15 cm

Fűtés

hőszivattyús

Komfort

összkomfort

Parkolás

van önálló garázs

Közműállapot

csatorna: bekötve
gáz: nincs
villany: bekötve
víz: bekötve

Energetika

A+:

Extrák

hőszivattyús padlófűtés és mennyezet hűtés. a+ energetrikai besorolás.

Háziállat hozható?

nem hozható

Az időpont kérés naptár ikonja
HTML
Az időpont kérés naptár ikonja
PDF

Hasonló ingatlan hírdetések

Kiadó, bérelhető új építésű családi ház, vagy kertes ház hirdetést keres Paks területén?
Tekintse meg további ajánlatainkat!

kiadó családi ház, Paks

kiadó családi ház

Paks központi részén KIADÓ családi ház

Tolna megye, Paks, Vörösmarty utca
Paks központi részén KIADÓ családi ház HELYISÉGEK: Kettő hálószoba, nappali-étkező, konyha, fürdőszoba-WC AZ ÉPÜLET: – Tégla falazat. – Igényesen felújított, 80m2-es lakórész. – Teljesen be...
Belső terület
80 m²
Telek terület
1000 m²
Szobák
3

300 E Ft/hó

kiadó családi ház, Paks

kiadó családi ház

Paks központi részén KIADÓ családi ház, 3 szobával

Tolna megye, Paks
Paks központi részén KIADÓ családi ház, 3 szobával HELYISÉGEK: Előtér, 3 db szoba, 1db konyha-étkező, 2 db fürdőszoba, 2 db wc AZ ÉPÜLET: – Tégla falazat. – 100m2-es lakórész. – Teljesen b...
Belső terület
100 m²
Telek terület
1000 m²
Szobák
3

650 E Ft/hó

kiadó családi ház, Paks

kiadó családi ház

Stílusos berendezésű családi ház KIADÓ

Tolna megye, Paks
Stílusos berendezésű családi ház KIADÓ a városközpontban! MÉRETEK: – Ingatlan: 100m2 AZ ÉPÜLET: – Tégla falazat – 2+ 1 db fél szoba – Korszerű, műanyag nyílászárók HELYISÉGEK: – Közleked...
Belső terület
100 m²
Telek terület
1200 m²
Szobák
2+1

395 E Ft/hó

kiadó családi ház, Paks

kiadó családi ház

Bútorozott családi ház kiadó Pakson

Tolna megye, Paks
Bútorozott családi ház kiadó Pakson Pakson, az Öreghegyen 1000 nm-es telken helyezkedik el a kiadásra kínált 140 nm alapterületű, könnyűszerkezetes ingatlan. Az udvaron rendelkezésre áll fedett ko...
Belső terület
140 m²
Telek terület
1000 m²
Szobák
3

350 E Ft/hó

kiadó családi ház, Paks

kiadó családi ház

Paks, kedvelt családiházas utcályában felújított családiház KIADÓ!

Tolna megye, Paks, Óváros
Paks, kedvelt családiházas utcájában, felújított családiház KIADÓ! Az ingatlan a képeken látható állapotban, teljesen bútorozva és gépesítve azonnal költözhető. A jelenlegi kialakítás szerint egy t...
Belső terület
100 m²
Telek terület
500 m²
Szobák
3

400 E Ft/hó

azonnal költözhető
Azonnal költözhető
kiadó házrész, Paks

kiadó házrész

Tolna megye, Paks
Paks, ATOM Center és TESCO szomszédságában 6 szobás szálló KIADÓ! Az ingatlan a képeken látható állapotban, teljesen bútorozva és gépesítve azonnal költözhető. A jelenlegi kialakítás szerint 6 db kü...
Belső terület
230 m²
Telek terület
1 m²
Szobák
7

1 M Ft/hó

(1000 E Ft/hó)

kiadó családi ház, Paks

kiadó családi ház

Tolna megye, Paks, Óváros
Paks, óvárosi részén 4 szobás felújított családi ház, szállás céljára KIADÓ! A 130 m2-es ingatlan 2022-ben teljeskörű felújításon esett át. Jelenleg a képeken látható állapotban, 12 fő elszállásolásá...
Belső terület
130 m²
Telek terület
560 m²
Szobák
4

850 E Ft/hó

azonnal költözhető
Azonnal költözhető
kiadó családi ház, Paks

kiadó családi ház

Tolna megye, Paks
Paks, három szobás 60 m2-es kis családi ház KIADÓ! Az ingatlan a képeken látható állapotban teljesen bútorozva és gépesítve azonnal költözhető. Két hálószoba, nappali, konyha, fürdőszoba és külön WC ...
Belső terület
60 m²
Telek terület
300 m²
Szobák
3

400 E Ft/hó

azonnal költözhető
Azonnal költözhető
Tolna megye - Paks
Tolna megye - Paks
Tolna megye - Paks
Tolna megye - Paks
Tolna megye - Paks
Tolna megye - Paks
Tolna megye - Paks
Tolna megye - Paks
Tolna megye - Paks
Tolna megye - Paks
Tolna megye - Paks
Tolna megye - Paks
Tolna megye - Paks
Tolna megye - Paks
Tolna megye - Paks
Tolna megye - Paks
Tolna megye - Paks
Tolna megye - Paks
Tolna megye - Paks
Tolna megye - Paks
Tolna megye - Paks
Tolna megye - Paks
Tolna megye - Paks
Tolna megye - Paks
Tolna megye - Paks
Tolna megye - Paks
Tolna megye - Paks
Tolna megye - Paks
Tolna megye - Paks
Tolna megye - Paks
Tolna megye - Paks
Tolna megye - Paks
Tolna megye - Paks
Tolna megye - Paks
Tolna megye - Paks
Tolna megye - Paks
Tolna megye - Paks
Tolna megye - Paks
Tolna megye - Paks
Tolna megye - Paks
Tolna megye - Paks
Tolna megye - Paks
Tolna megye - Paks