Kiadó téglalakás - Budapest, II. kerület

KAPCSOLAT
Bakos Zsuzsanna


+36 20 974

zsuzsanna.bakos@

Az időpont kérés naptár ikonja
IDŐPONTOT KÉREK
A visszahívás kérés telefon ikonja egy azt körbe ölelő nyíllal
VISSZAHÍVÁST KÉREK
Ajánlom egy ismerősömnek ikon
AJÁNLOM EGY ISMERŐSÖMNEK
Facebook megosztás ikon
MEGOSZTÁS

KAPCSOLATFELVÉTEL

Küldés

Az üzenetet sikeresen elküldtük!
Hiba történt!
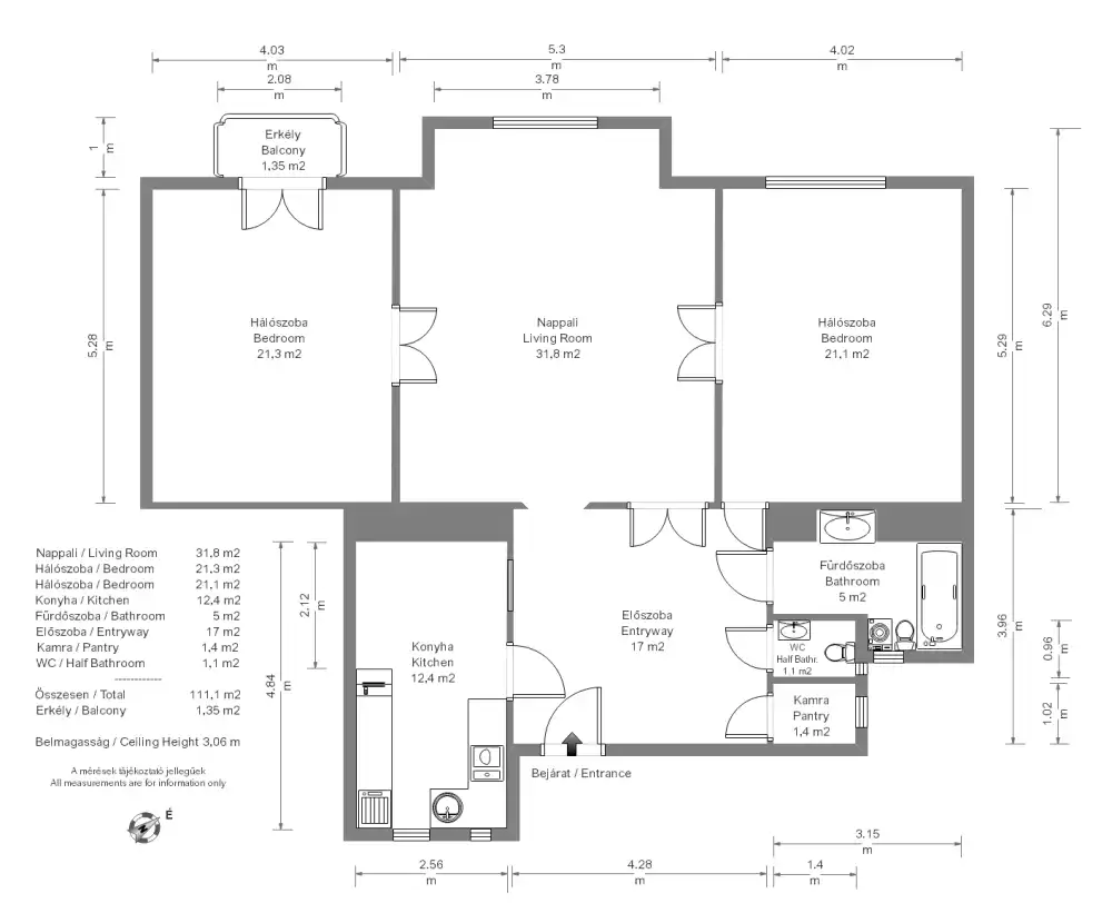
INGATLAN ADATAI

Ingatlan jellege

téglalakás

Belső terület

120 m²

Tájolás

északnyugat

Építési állapot

használt

Építési mód

tégla

Szobák száma

3 szoba

Szobák elhelyezkedése

egybenyílóak

Bútorozottság

igen

Erkély

3 m²

Emelet

2.

Épület szintje

4.

Épült

kb. 1950

Lift

van

Ingatlan állapot

kívül: felújított
belül: felújított

Fűtés

cirko

Komfort

duplakomfort

Kilátás

utcára

Energetika

nincs megadva

Háziállat hozható?

nem hozható

Az időpont kérés naptár ikonja
HTML
Az időpont kérés naptár ikonja
PDF
Kiadó téglalakás
Ingatlan azonosító:
1395_bl

Budapest, II. kerület, Országút, Buday László u.

Bérleti díj

461 E Ft/hó
(1,2 M €)
(3.84 E Ft/㎡)

Szobák

3 szoba

Emelet

2

Terület

120 m²
INGATLAN LEÍRÁSA
Rózsadomb Dunához közeli részén, Margit-szigettől néhány perc sétára, Mechwart ligetnél liftes ház első emeletén frissen, igényesen felújított, gépesített, tágas 3 szobás modern bútorokkal bútorozott lakás minimum egy évre kiadó. Külön étkezős konyha, kádas fürdőszoba wc-vel, vendég wc, kamra, 3 tágas szoba, melyből az egyikhez erkély tartozik. 2 havi kaució szükséges.

INGATLAN ADATAI

Ingatlan jellege
téglalakás
Belső terület
120 m²
Tájolás
északnyugat
Építési állapot
használt
Építési mód
tégla
Szobák száma
3 szoba
Szobák elhelyezkedése
egybenyílóak
Bútorozottság
igen
Erkély
3 m²
Emelet
2.
Épület szintje
4.
Épült
kb. 1950
Lift
van
Ingatlan állapot
kívül: felújított
belül: felújított
Fűtés
cirko
Komfort
duplakomfort
Kilátás
utcára
Energetika
nincs megadva
Háziállat hozható?
nem hozható
TÉRKÉP

Budapest, II. kerület, Országút, Buday László u.

KAPCSOLAT
Bakos Zsuzsanna
Bakos Zsuzsanna


+36 20 974 0571

zsuzsanna.bakos@t-online.hu

KAPCSOLAT
Bakos Zsuzsanna

+36 20 974

zsuzsanna.bakos@

Az időpont kérés naptár ikonja
IDŐPONTOT KÉREK
A visszahívás kérés telefon ikonja egy azt körbe ölelő nyíllal
VISSZAHÍVÁST KÉREK
Ajánlom egy ismerősömnek ikon
AJÁNLOM EGY ISMERŐSÖMNEK
Facebook megosztás ikon
MEGOSZTÁS

KAPCSOLATFELVÉTEL

Küldés

Az üzenetet sikeresen elküldtük!
Hiba történt!
INGATLAN ADATAI

Ingatlan jellege

téglalakás

Belső terület

120 m²

Tájolás

északnyugat

Építési állapot

használt

Építési mód

tégla

Szobák száma

3 szoba

Szobák elhelyezkedése

egybenyílóak

Bútorozottság

igen

Erkély

3 m²

Emelet

2.

Épület szintje

4.

Épült

kb. 1950

Lift

van

Ingatlan állapot

kívül: felújított
belül: felújított

Fűtés

cirko

Komfort

duplakomfort

Kilátás

utcára

Energetika

nincs megadva

Háziállat hozható?

nem hozható

Az időpont kérés naptár ikonja
HTML
Az időpont kérés naptár ikonja
PDF

Hasonló ingatlan hírdetések

Kiadó, bérelhető tégla-, vagy panellakás hirdetést keres Budapesten a II. kerületben?
Tekintse meg további ajánlatainkat!

kiadó téglalakás, Budapest, II. kerület

kiadó téglalakás

Budapest, II. kerület, Törökvész, Gábor Áron u.
Bp., 2. ker. PANORÁMÁS, ERKÉLYES lakás KIADÓ garázshellyel a RÓZSAKERT közelében For English, please, scroll down panorámás, erkélyes légkondi bútorozás megbeszélés szerint gépesített teremgaráz...
Belső terület
90 m²
Szobák
2
Emelet
2

495 E Ft/hó

kiadó téglalakás, Budapest, II. kerület

kiadó téglalakás

KIADÓ Városmajor parkra néző panorámás, 110 m2-es, egyedi stílusú, bútorozott lakás a Szilágyi Erzsébet fasorban!

Budapest, II. kerület, Országút
KIADÓ Városmajor parkra néző panorámás, 110 m2-es, egyedi stílusú, bútorozott lakás a Szilágyi Erzsébet fasorban! Az épület a Széll Kálmán tér közelében, a Városmajor parkkal szemben található. A h...
Belső terület
110 m²
Szobák
2+1
Emelet
4

400 E Ft/hó

350 E Ft/hó

Panorámás!
Panorámás
kiadó téglalakás, Budapest, II. kerület

kiadó téglalakás

Budapest, II. kerület, Országút, Bimbó út
Rózsadomb alján, Bimbó úton, 6 emeletes villaház 5. emeletén minimum egy évre kiadó felújított 130 nm-es, 4 szoba hallos, erkélyes, PANORÁMÁS lakás, akár iroda céljára is. Napfényes, tágas nappali pan...
Belső terület
130 m²
Szobák
4
Emelet
5

750 E Ft/hó

kiadó téglalakás, Budapest, II. kerület

kiadó téglalakás

Budapest, II. kerület, Törökvész
II. Vöröstorony utca felső részéhez közeli utcában, 2015-ben épült luxus családi villa földszinti 140 nm-es, nappali + 3 hálószobás szuper panorámás lakás minimum 2 évre kiadó. Amerikai stílusú hatalm...
Belső terület
140 m²
Szobák
4
Emelet
földszint

960 E Ft/hó

(2,5 M €)

kiadó téglalakás, Budapest, II. kerület

kiadó téglalakás

Budapest, II. kerület,
II. kerületben -Kuruc utcánál- FELÚJÍTOTT lakás kiadó! Nézze meg a videót! KERTRE néző, 34 m2-es, földszinti lakás RÉSZBEN BÚTOROZVA, GÉPESÍTVE. - 1 szoba (bútorokkal) - konyha (bútorokkal, gépe...
Belső terület
34 m²
Szobák
1
Emelet
földszint

205 E Ft/hó

kiadó téglalakás, Budapest, II. kerület

kiadó téglalakás

Budapest, II. kerület, Szépilona
Budakeszi úton luxus lakás kiadó! A nemzetközi díjat is nyert, öko lakópark Buda egyik legszebb lakóparkja, mely minden igényt kielégít szolgáltatásaival. A lakópark egy 2,3 hektárnyi ősfás terület...
Belső terület
241 m²
Szobák
6
Emelet
9

1.34 M Ft/hó

(3,5 M €)

kiadó téglalakás, Budapest, II. kerület

kiadó téglalakás

Budapest, II. kerület, Nagybányai út
Bp., 2. ker. PANORÁMÁS, felújított, ERKÉLYES, berendezett lakás kiadó For English, please, scroll down Szeretne a Pasaréti tér és a Törökvész út közelében gyönyörű, felújított lakást bérelni? Főbb...
Belső terület
110 m²
Szobák
4
Emelet
2

590 E Ft/hó

kiadó téglalakás, Budapest, II. kerület

kiadó téglalakás

Budapest, II. kerület, Szemlőhegy
Szemlőhegyi zöldövezetben luxus lakóparkban minimum egy évre kiadó 110 nm-es, első emeleti 4 szobás lakás. Amerikai konyhás nappali étkezővel és teraszkapcsolattal, 3 külön nyíló hálószoba, 2 fürdőszo...
Belső terület
110 m²
Szobák
4
Emelet
1

998 E Ft/hó

(2.6 M €)

Budapest, II. kerület - Országút
Budapest, II. kerület - Országút
Budapest, II. kerület - Országút
Budapest, II. kerület - Országút
Budapest, II. kerület - Országút
Budapest, II. kerület - Országút
Budapest, II. kerület - Országút
Budapest, II. kerület - Országút
Budapest, II. kerület - Országút
Budapest, II. kerület - Országút
Budapest, II. kerület - Országút
Budapest, II. kerület - Országút
Budapest, II. kerület - Országút
Budapest, II. kerület - Országút
Budapest, II. kerület - Országút
Budapest, II. kerület - Országút
Budapest, II. kerület - Országút