KAPCSOLATFELVÉTEL
Ingatlan jellege
téglalakás
Belső terület
68 m²
Tájolás
észak, kelet
Építési állapot
új
Építési mód
tégla
Szobák száma
3 szoba
Kert
(közös kerthasználat)
Emelet
földszint.
Épület szintje
földszintes.
Épült
2026
Akadálymentes
igen
Lift
nincs
Ingatlan állapot
kívül: új
belül: új
Klíma
van
Szigetelés
15 cm
Ablak szerkezete
3 rétegű thermoplan
Fűtés
hőszivattyús
Komfort
összkomfort
Parkolás
van önálló garázs
Kilátás
utcára
Energetika
nincs megadva
Tolna megye, Paks
Irányár
(1.1 M Ft/㎡)
Szobák
Emelet
Terület
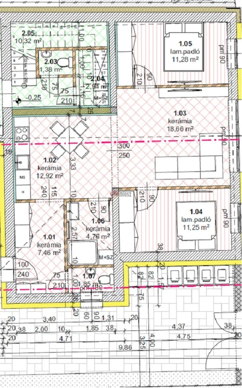
Az ingatlan egy új építésű 4 lakásos társasház utcafrontján található.
A lakást az alaprajzon látható elrendezés szerint a mai igényeknek megfelelően minőségi alapanyagokból, jó referenciával rendelkező szakemberek építik.
A lakásba egy tágas előtéren keresztül érkezünk meg, innen nyílik az amerikai konyhás nappali és vendég WC, majd a nappaliból megközelíthető az egymástól jól elkülönített két hálószoba.
A fűtést és hűtést egy központi hőszivattyú fogja biztosítani padlófűtés és mennyezet hűtés segítségével.
Az energiahatékony gépészetnek, a 15 cm homlokzati szigetelésnek és a 3 rétegű üvegezéssel szerelt nyílászáróknak köszönhetően a lakás rezsije minimális lesz.
A kiváló elhelyezkedésnek köszönhetően minden a főutcán található szolgáltatás és a Dunapart adta lehetőségek is sétáló távolságon belül elérhető.
Így ideális választás új otthonának és befektetési szándék esetén is.
Parkolás az automata kapun át megközelíthető, zárt belső udvarban lehetséges.
Továbbá zárt garázs megvásárlására is van lehetőség.
A beruházás 2025 végén kezdődik.
Az ingatlanok tervezett átadása 2026. vége.
Az értékesítés kezdeti szakaszában, a vevők egyedi igényeit is figyelembe tudjuk venni.
A finanszírozásban bankfüggetlen, ingyenes hitel tanácsadással segítjük vevőinket.
Otthon Start programban 3%-os hitellel finanszírozható az ingatlan.
belül: új

+36 30 517 2623
gorogzoltan@ingatlanpaks.hu
KAPCSOLATFELVÉTEL
Ingatlan jellege
téglalakás
Belső terület
68 m²
Tájolás
észak, kelet
Építési állapot
új
Építési mód
tégla
Szobák száma
3 szoba
Kert
(közös kerthasználat)
Emelet
földszint.
Épület szintje
földszintes.
Épült
2026
Lift
nincs
Ingatlan állapot
kívül: új
belül: új
Klíma
van
Szigetelés
15 cm
Ablak szerkezete
3 rétegű thermoplan
Fűtés
hőszivattyús
Komfort
összkomfort
Parkolás
van önálló garázs
Kilátás
utcára
Energetika
nincs megadva