KAPCSOLATFELVÉTEL
Ingatlan jellege
téglalakás
Belső terület
85 m²
Tájolás
kelet, délkelet
Építési állapot
új
Építési mód
tégla
Szobák száma
3 szoba
Kert
21 m² (saját kert)
Terasz
12.31 m²
Emelet
földszint.
Épület szintje
földszint + tetőteres.
Épült
2025
Lift
nincs
Ingatlan állapot
kívül: új
belül: új
Klíma
van
Szigetelés
15 cm
Ablak szerkezete
3 rétegű thermoplan
Fűtés
hőszivattyús
Komfort
összkomfort
Parkolás
van önálló garázs
Kilátás
udvarra
Energetika
nincs megadva
Tolna megye, Paks, Szent János utca
Irányár
(1.06 M Ft/㎡)
Szobák
Emelet
Terület
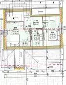
Az ingatlan egy új építésű 4 lakásos társasház belső udvarra néző kertkapcsolatos lakása.
A lakást az alaprajzon látható elrendezés szerint a mai igényeknek megfelelően minőségi alapanyagokból, jó referenciával rendelkező szakemberek építik.
A lakásba a saját kis előkerten és teraszon át érkezünk meg a tágas és világos nappaliba, melyből a lépcsőházon át elérhető a vendég WC és egy kamra.
Az emeletre érkezve két kényelmes méretű hálószoba és egy fürdőszoba fogad minket.
A fűtést és hűtést egy központi hőszivattyú fogja biztosítani padlófűtés és mennyezet hűtés segítségével.
Az energiahatékony gépészetnek, a 15 cm homlokzati szigetelésnek és a 3 rétegű üvegezéssel szerelt nyílászáróknak köszönhetően a lakás rezsije minimális lesz.
A kiváló elhelyezkedésnek köszönhetően minden a főutcán található szolgáltatás és a Dunapart adta lehetőségek is sétáló távolságon belül elérhető.
Így ideális választás új otthonának és befektetési szándék esetén is.
Parkolás az automata kapun át megközelíthető, zárt belső udvarban lehetséges.
Továbbá zárt garázs megvásárlására is van lehetőség.
A beruházás 2025 végén kezdődik.
Az ingatlanok tervezett átadása 2026 vége.
Az értékesítés kezdeti szakaszában, a vevők egyedi igényeit is figyelembe tudjuk venni.
A finanszírozásban bankfüggetlen, ingyenes hitel tanácsadással segítjük vevőinket.
Otthon Start programban 3%-os hitellel finanszírozható az ingatlan.
belül: új
Tolna megye, Paks, Szent János utca

+36 30 517 2623
gorogzoltan@ingatlanpaks.hu
KAPCSOLATFELVÉTEL
Ingatlan jellege
téglalakás
Belső terület
85 m²
Tájolás
kelet, délkelet
Építési állapot
új
Építési mód
tégla
Szobák száma
3 szoba
Kert
21 m² (saját kert)
Terasz
12.31 m²
Emelet
földszint.
Épület szintje
földszint + tetőteres.
Épült
2025
Lift
nincs
Ingatlan állapot
kívül: új
belül: új
Klíma
van
Szigetelés
15 cm
Ablak szerkezete
3 rétegű thermoplan
Fűtés
hőszivattyús
Komfort
összkomfort
Parkolás
van önálló garázs
Kilátás
udvarra
Energetika
nincs megadva