Eladó új építésű sorház - Budapest, XX. kerület

CSOK igényelhető
CSOK igényelhető
KAPCSOLAT
Peszlegné Gál Ildikó


+36 70 209

peszleg.ildiko@

Az időpont kérés naptár ikonja
IDŐPONTOT KÉREK
A visszahívás kérés telefon ikonja egy azt körbe ölelő nyíllal
VISSZAHÍVÁST KÉREK
Ajánlom egy ismerősömnek ikon
AJÁNLOM EGY ISMERŐSÖMNEK
Facebook megosztás ikon
MEGOSZTÁS

KAPCSOLATFELVÉTEL

Küldés

Az üzenetet sikeresen elküldtük!
Hiba történt!
INGATLAN ADATAI

Ingatlan jellege

sorház

Belső terület

68 m²

Telek terület

120 m²

Tájolás

dél

Építési állapot

új

Építési mód

tégla

Szobák száma

4 szoba

Terasz

10 m²

Épület szintje

2.

Épült

2026

Ingatlan állapot

kívül: új
belül: új

Ablak szerkezete

3 rétegű thermoplan

Fűtés

hőszivattyús

Komfort

duplakomfort

Parkolás

van fedetlen felszíni beálló

Közműállapot

csatorna: bekötve
gáz: nincs
villany: bekötve
víz: bekötve

Energetika

A++:

Az időpont kérés naptár ikonja
HTML
Az időpont kérés naptár ikonja
PDF
Eladó új építésű sorház
Ingatlan azonosító:
2618_rid

Budapest, XX. kerület, Kossuthfalva

Irányár

84.5 M Ft
(1.24 M Ft/㎡)

Szobák

4 szoba

Terület

68 m²

Telek terület

120 m²
INGATLAN LEÍRÁSA
KIZÁRÓLAG CSAK NÁLUNK!

Új építésű sorházi lakások már leköthetők Pesterzsébeten kedvelt utcájában!
OTTHON START 3% hitel, CSOK, illetékmentesség igénybevehető!
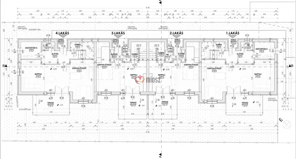
A 4 lakás árai, m2 és a telek méret a következő:
1. számú lakás: Hasznos alapterülete 105,62 m2 - Telekrész: 122 m2, melyből kert: 54 m2. Ára: 109.000.000ft
2. számú lakás: Hasznos alapterülete 68 m2 - Telekrész: 82 m2, melyből kert: 36 m2. Ára: 84.500.000ft Foglalózva!
3. számú lakás: Hasznos alapterülete 68 m2 - Telekrész: 82 m2, melyből kert: 36 m2. Ára: 84.500.000ft
4. sz. lakás: Hasznos alapterülete 105,62 m2 - Telekrész: 232 m2, melyből kert: 168 m2. Ára: 116.000.000ft

Budapest XX. kerületének közkedvelt részén, Pesterzsébet – Kossuthfalva, Dessewffy utca környékén kínálunk eladásra új építésű sorházi lakásokat megbízható, referenciákkal rendelkező kivitelezőtől. Az építés hamarosan kezdődik.

Az ingatlanok korszerű, energiahatékony műszaki tartalommal készülnek. A hűtés–fűtést modern hőszivattyús rendszer biztosítja, amely egész évben alacsony rezsiköltségeket eredményez.

Dessewffy utca környéke Pesterzsébet zöld, családias részén található, jó közlekedéssel.
Tömegközlekedés: a környéken villamos és buszjáratok is elérhetők, a közeli megállók néhány perc sétára vannak, így könnyen elérhető a város más része is.
A környéken több óvoda és iskola működik (például általános és művészeti iskolák, gimnáziumok is a kerületben).
Bevásárlási lehetőségek, kis boltok, játszóterek és szolgáltatások rövid autó- vagy BKK-utatávon belül elérhetők, így a mindennapi élet egyszerű és kényelmes. Interspar, Lidl, Aldi, pár percre autóval.

Autóval a Kopaszi-gát, a Duna partján fekvő népszerű park és sétány nagyjából 10 perc alatt érhető el a XX. kerületből (forgalomtól függően), ideális helyszín sétákhoz, sportoláshoz, családi programokhoz és vízparti kikapcsolódáshoz. Valint a Pesterzsébeti uszoda, Dunaparti sétány és 2 percre.

Az építés jelenlegi szakaszában még lehetőség van az ingatlan belső kialakításának személyre szabására: burkolatok, szaniterek, beltéri ajtók, gépészeti és villamos kiállások választhatók az Ön ízlése szerint.

Finanszírozás – teljes körű segítség

Az ingatlan CSOK-ra alkalmas, és igényelhető hozzá az Otthon Start 3%-os lakáshitel.

Már 10 % önerővel megvásárolható.

Ingyenes hitel- és CSOK-ügyintézést biztosítunk, nem kizárólag az általunk értékesített ingatlanokra.

Igény esetén személyre szabott kalkulációt és hitel-előbírálatot készítünk.

Cégünk ügyvédje jogi tanácsadással is rendelkezésre áll az adásvétel teljes folyamata során.

A részletes műszaki tartalom kérésre e-mailben megküldésre kerül.

Amennyiben felkeltette érdeklődését, várom megkeresését, emailen küldök nagyítható rajzokat, és műszaki tartalmat.

Várom megtisztelő érdeklődését.

A lakásról a látványképek csak inspirációk.

INGATLAN ADATAI

Ingatlan jellege
sorház
Belső terület
68 m²
Telek terület
120 m²
Tájolás
dél
Építési állapot
új
Építési mód
tégla
Szobák száma
4 szoba
Terasz
10 m²
Épület szintje
2.
Épült
2026
Ingatlan állapot
kívül: új
belül: új
Ablak szerkezete
3 rétegű thermoplan
Fűtés
hőszivattyús
Komfort
duplakomfort
Parkolás
van fedetlen felszíni beálló
Közműállapot
csatorna: bekötve
gáz: nincs
villany: bekötve
víz: bekötve
Energetika
A++:
TÉRKÉP

Budapest, XX. kerület, Kossuthfalva

KAPCSOLAT
Peszlegné Gál Ildikó
Peszlegné Gál Ildikó


+36 70 209 2650

peszleg.ildiko@ridom.hu

KAPCSOLAT
Peszlegné Gál Ildikó

+36 70 209

peszleg.ildiko@

Az időpont kérés naptár ikonja
IDŐPONTOT KÉREK
A visszahívás kérés telefon ikonja egy azt körbe ölelő nyíllal
VISSZAHÍVÁST KÉREK
Ajánlom egy ismerősömnek ikon
AJÁNLOM EGY ISMERŐSÖMNEK
Facebook megosztás ikon
MEGOSZTÁS

KAPCSOLATFELVÉTEL

Küldés

Az üzenetet sikeresen elküldtük!
Hiba történt!
INGATLAN ADATAI

Ingatlan jellege

sorház

Belső terület

68 m²

Telek terület

120 m²

Tájolás

dél

Építési állapot

új

Építési mód

tégla

Szobák száma

4 szoba

Terasz

10 m²

Épület szintje

2.

Épült

2026

Ingatlan állapot

kívül: új
belül: új

Ablak szerkezete

3 rétegű thermoplan

Fűtés

hőszivattyús

Komfort

duplakomfort

Parkolás

van fedetlen felszíni beálló

Közműállapot

csatorna: bekötve
gáz: nincs
villany: bekötve
víz: bekötve

Energetika

A++:

Az időpont kérés naptár ikonja
HTML
Az időpont kérés naptár ikonja
PDF

Hasonló ingatlan hírdetések

Eladó új építésű családi ház, vagy kertes ház hirdetést keres Budapesten a XX. kerületben?
Tekintse meg további ajánlatainkat!

eladó ikerház, Budapest, XX. kerület

eladó ikerház

Budapest, XX. kerület, Gubacsipuszta
Teljes körűen felújított ikerház – két különálló lakás egy telken. 2025-ben teljes körűen felújított ikerház, amely két, egyenként 38 m² alapterületű, önálló lakásból áll, 150 m²-es telken. Ára: 59...
Belső terület
38 m²
Telek terület
150 m²
Szobák
1

59 M Ft

eladó sorház, Budapest, XX. kerület

eladó sorház

Budapest, XX. kerület, Pesterzsébet ltp.
....???? Ritka lehetőség Budapest XX. kerületben – kertes sorházi ingatlan eladó lakhatásra vagy vállalkozásra is! Kertes sorházi ingatlan eladó Budapest XX. kerületében – lakhatásra vagy üzleti célr...
Belső terület
48 m²
Telek terület
80 m²
Szobák
2

27 M Ft

eladó házrész, Budapest, XX. kerület

eladó házrész

NAPPALI + 2 SZOBÁS, BELSŐ KÉTSZINTES HÁZRÉSZ!

Budapest, XX. kerület, Kossuthfalva
NAPPALI + 2 SZOBÁS, BELSŐ KÉTSZINTES HÁZRÉSZ! A XX. kerületben, Pesterzsébet Kossuthfalva városrészében kínálunk eladásra egy 92 m2-es, nappali + 2 szoba, konyha, fürdő, 2 WC, 2 tároló elosztású, B...
Belső terület
92 m²
Telek terület
402 m²
Szobák
3

84.9 M Ft

Felújított!
Felújított
eladó családi ház, Budapest, XX. kerület

eladó családi ház

Budapest, XX. kerület, Pesterzsébet ltp.
Családi háznak, és BEFEKTETÉS céljára is kiváló lehetőség! Eladó a XX. kerület központjának csendes és kulturált, kis forgalmú utcájában egy felújítandó, tégla építésű, cseréppel fedett, jelenleg h...
Belső terület
150 m²
Telek terület
604 m²
Szobák
4

97.9 M Ft

kétgenerációs!
Kétgenerációs
eladó házrész, Budapest, XX. kerület

eladó házrész

Budapest, XX. kerület, Szabótelep
Még mindig keresi álmai otthonát? Ha igen, jöjjön el, nézze meg ezt a teljesen felújított 3 szobás házrészt. A 622 m2-es telken két tulajdonos osztozik fele-fele arányban. Használati megosztás v...
Belső terület
73 m²
Telek terület
311 m²
Szobák
3+1

79.9 M Ft

eladó családi ház, Budapest, XX. kerület

eladó családi ház

Budapest, XX. kerület, Pesterzsébet ltp.
Eladó a XX. kerületben egy 540 nm-es telken elhelyezkedő kétgenerációs családiház. A ház alapterülete 84 nm, tetőtere beépített 80 nm-es külön bejáratú. Alsó szinten két bejáraton mehetünk be, a ter...
Belső terület
160 m²
Telek terület
540 m²
Szobák
3+2

107 M Ft

eladó házrész, Budapest, XX. kerület

eladó házrész

Budapest, XX. kerület, Pesterzsébet ltp.
Még mindig keresi álmai otthonát? Ha igen, jöjjön el, nézze meg ezt a 46 m2-es, kellemes hangulatú házrészt. Az ingatlan Pesterzsébet kertvárosi részén található, rendezett, kulturált lakóközösségg...
Belső terület
46 m²
Telek terület
120 m²
Szobák
1

35.9 M Ft

eladó családi ház, Budapest, XX. kerület

eladó családi ház

Budapest, XX. kerület, Pesterzsébet ltp.
Pesterzsébet központ közeli részén kínálom megvételre ezt az egy telken található, 2 ingatlanból álló épületegyüttest. Az első ház ( mely 95 nm ) 4 szobából áll. Három szoba, egy konyha és egy mosd...
Belső terület
310 m²
Telek terület
500 m²
Szobák
7

168.8 M Ft

akciós ár
Akciós
Budapest, XX. kerület - Kossuthfalva
Budapest, XX. kerület - Kossuthfalva
Budapest, XX. kerület - Kossuthfalva
Budapest, XX. kerület - Kossuthfalva
Budapest, XX. kerület - Kossuthfalva
Budapest, XX. kerület - Kossuthfalva
Budapest, XX. kerület - Kossuthfalva
Budapest, XX. kerület - Kossuthfalva