Eladó új építésű ikerház - Kiskunlacháza

KAPCSOLAT
Belák Ilona Kinga


+36 20 227

b.ilonakinga@

Az időpont kérés naptár ikonja
IDŐPONTOT KÉREK
A visszahívás kérés telefon ikonja egy azt körbe ölelő nyíllal
VISSZAHÍVÁST KÉREK
Ajánlom egy ismerősömnek ikon
AJÁNLOM EGY ISMERŐSÖMNEK
Facebook megosztás ikon
MEGOSZTÁS

KAPCSOLATFELVÉTEL

Küldés

Az üzenetet sikeresen elküldtük!
Hiba történt!
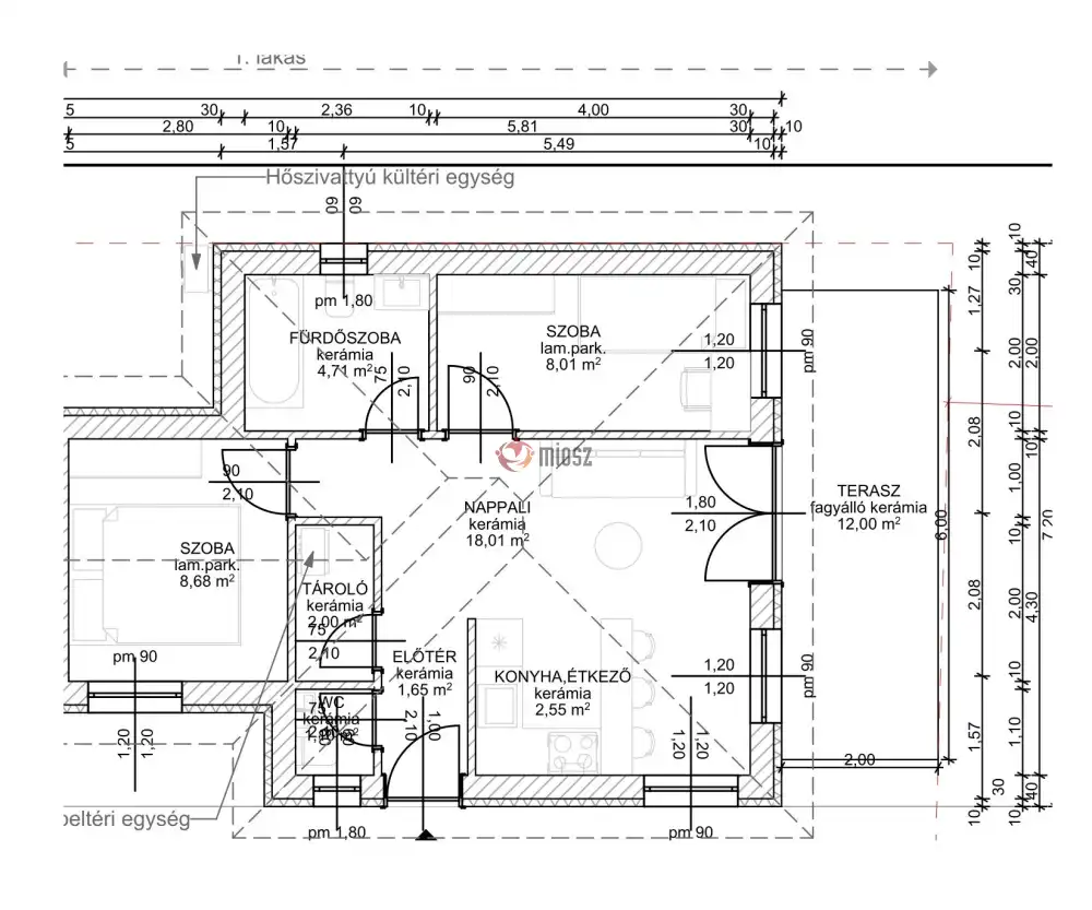
INGATLAN ADATAI

Ingatlan jellege

ikerház

Belső terület

47 m²

Telek terület

200 m²

Tájolás

délkelet

Építési állapot

új

Építési mód

tégla

Szobák száma

2 szoba

Terasz

12 m²

Épület szintje

1.

Épült

2026

Ingatlan állapot

kívül: új
belül: új

Szigetelés

10 cm

Ablak szerkezete

3 rétegű thermoplan

Fűtés

padlófűtés

Komfort

összkomfort

Parkolás

van fedetlen felszíni beálló

Közműállapot

csatorna: bekötve
gáz: utcában
villany: bekötve
víz: bekötve

Energetika

nincs megadva

Az időpont kérés naptár ikonja
HTML
Az időpont kérés naptár ikonja
PDF
Eladó új építésű ikerház
Ingatlan azonosító:
366_isz

Pest megye, Kiskunlacháza

Irányár

52.9 M Ft
(1.13 M Ft/㎡)

Szobák

2 szoba

Terület

47 m²

Telek terület

200 m²
INGATLAN LEÍRÁSA
Modern otthon, ahol a nyugalom találkozik a minőséggel – Kiskunlacháza

Ha egy olyan helyet keres, ahol a város zaja már csak távoli emlék, de a főváros mégis könnyen elérhető, akkor ez az új építésű ikerház tökéletes választás lehet.
Itt minden részletet a kényelmes, energiatakarékos és hosszú távon fenntartható élet jegyében terveztek.

Főbb jellemzők:
- Falazat: 30 N+F Porotherm tégla
- Szigetelés:
-homlokzat: 10 cm
-födém: 30 cm
-lábazat: 10 cm
-padló: 10 cm
- Bramac Betoncserép
- 47 m² gondosan megtervezett lakótér
- 12 m² terasz, ahol reggelente jól esik megállni egy kávéra
- Világos, amerikai konyhás nappali + 2 külön nyíló szoba
- Hőszivattyús padlófűtés – korszerű és környezetbarát megoldás
- 3 rétegű üvegezés, modern szigetelés – alacsony fenntartási költség
- 200 m² saját, parkosított telekrész


Megbízható, tapasztalt kivitelezőtől, referenciákkal

Az otthon minden részlete a praktikum és letisztultság harmóniáját tükrözi.
A tágas, napfényes terek és a modern anyaghasználat igazi melegséget visznek az új élettérbe – ahol minden nap jó lesz hazaérni.

Ideális választás családoknak, fiatal pároknak vagy azoknak, akik szeretnének egy csendes, biztonságos környéken élni, kompromisszumok nélkül.

Kiskunlacháza – nyugodt kertvárosi környezet, Budapest közelségével.
Vegye fel velünk a kapcsolatot, és ismerje meg személyesen ezt a hangulatos, új otthont!

INGATLAN ADATAI

Ingatlan jellege
ikerház
Belső terület
47 m²
Telek terület
200 m²
Tájolás
délkelet
Építési állapot
új
Építési mód
tégla
Szobák száma
2 szoba
Terasz
12 m²
Épület szintje
1.
Épült
2026
Ingatlan állapot
kívül: új
belül: új
Szigetelés
10 cm
Ablak szerkezete
3 rétegű thermoplan
Fűtés
padlófűtés
Komfort
összkomfort
Parkolás
van fedetlen felszíni beálló
Közműállapot
csatorna: bekötve
gáz: utcában
villany: bekötve
víz: bekötve
Energetika
nincs megadva
TÉRKÉP

Pest megye, Kiskunlacháza

KAPCSOLAT
Belák Ilona Kinga
Belák Ilona Kinga


+36 20 227 7335

b.ilonakinga@gmail.com

KAPCSOLAT
Belák Ilona Kinga

+36 20 227

b.ilonakinga@

Az időpont kérés naptár ikonja
IDŐPONTOT KÉREK
A visszahívás kérés telefon ikonja egy azt körbe ölelő nyíllal
VISSZAHÍVÁST KÉREK
Ajánlom egy ismerősömnek ikon
AJÁNLOM EGY ISMERŐSÖMNEK
Facebook megosztás ikon
MEGOSZTÁS

KAPCSOLATFELVÉTEL

Küldés

Az üzenetet sikeresen elküldtük!
Hiba történt!
INGATLAN ADATAI

Ingatlan jellege

ikerház

Belső terület

47 m²

Telek terület

200 m²

Tájolás

délkelet

Építési állapot

új

Építési mód

tégla

Szobák száma

2 szoba

Terasz

12 m²

Épület szintje

1.

Épült

2026

Ingatlan állapot

kívül: új
belül: új

Szigetelés

10 cm

Ablak szerkezete

3 rétegű thermoplan

Fűtés

padlófűtés

Komfort

összkomfort

Parkolás

van fedetlen felszíni beálló

Közműállapot

csatorna: bekötve
gáz: utcában
villany: bekötve
víz: bekötve

Energetika

nincs megadva

Az időpont kérés naptár ikonja
HTML
Az időpont kérés naptár ikonja
PDF

Hasonló ingatlan hírdetések

Eladó új építésű családi ház, vagy kertes ház hirdetést keres Kiskunlacháza területén?
Tekintse meg további ajánlatainkat!

eladó családi ház, Kiskunlacháza

eladó családi ház

Pest megye, Kiskunlacháza, (Lacháza), Bajcsy-Zsilinszky utca
Eladó felújított családi ház Pest megye déli részén Budapesttől 38 km-re, Kiskunlacháza nyugodt, rendezett részén kínálunk megvételre egy 100 m²-es, 3 szobás, összkomfortos családi házat, amely egy...
Belső terület
100 m²
Telek terület
900 m²
Szobák
3

79.9 M Ft

eladó új építésű családi ház, Kiskunlacháza

eladó új építésű családi ház

Pest megye, Kiskunlacháza, Dunaparti üdülő
Pár percre a Dunától, önálló ház, akár 3% Otthon Start hitelre! Ha életérzést keres, akkor ez az ingatlan az Öné. Nyugalom, természet, vízpart egy helyen! Kiskunlacházán, a Dunától 100 méterre, cs...
Belső terület
112 m²
Telek terület
456 m²
Szobák
4

94.9 M Ft

eladó új építésű családi ház, Kiskunlacháza

eladó új építésű családi ház

Pest megye, Kiskunlacháza
Új építésű családi házak eladóak Kiskunlacháza csendes részén – modern otthon nagy telekkel! Kiskunlacháza nyugodt, madárcsicsergős környezetében kínálunk megvételre 2026-ban épült, földszintes csa...
Belső terület
99 m²
Telek terület
681 m²
Szobák
4+1

92.9 M Ft

eladó új építésű családi ház, Kiskunlacháza

eladó új építésű családi ház

Pest megye, Kiskunlacháza, Központ
Új építésű, önálló családi ház Kiskunlacházán – választható burkolatokkal Kiskunlacháza csendes, kis forgalmú utcájában eladó egy 90 m²-es, modern technológiával készülő, körbejárható családi ház. Az...
Belső terület
90 m²
Telek terület
366 m²
Szobák
4

87.7 M Ft

Új építésű!
Új építésű
eladó új építésű sorház, Kiskunlacháza

eladó új építésű sorház

Azonnal költözhető, energiatakarékos lakás várja saját kerttel.

Pest megye, Kiskunlacháza
Újszerű, azonnal költözhető társasházi lakások eladók Kiskunlacházán – Budapest vonzáskörzetében! Kiskunlacházán, Budapest gyorsan elérhető vonzáskörzetében kínálunk eladásra teljes körűen felújíto...
Belső terület
36 m²
Telek terület
1 m²
Szobák
1+1

36 M Ft

36 M Ft

azonnal költözhető
Azonnal költözhető
eladó ikerház, Kiskunlacháza

eladó ikerház

Pest megye, Kiskunlacháza, Központ
Eladó felújított lakás tornácos ikerházban Kiskunlacháza központjában – akár befektetésnek is! Az ingatlan 2 ingatlanból áll,melyből az egyik már gazdára talált.Az épület vegyes falazatú és minden ...
Belső terület
39 m²
Telek terület
300 m²
Szobák
1+2

38.7 M Ft

eladó családi ház, Kiskunlacháza

eladó családi ház

Pest megye, Kiskunlacháza
Eladó kétgenerációs családi ház Kiskunlacházán – két külön lakrésszel, kiváló elhelyezkedéssel! Kiskunlacháza csendes, rendezett kertvárosi részén, remek tömegközlekedési adottságokkal kínálunk meg...
Belső terület
121 m²
Telek terület
846 m²
Szobák
4

59.9 M Ft

eladó új építésű családi ház, Kiskunlacháza

eladó új építésű családi ház

Újépítésű önálló családi ház Kiskunlacházán!

Pest megye, Kiskunlacháza
Új építésű otthon Kiskunlacházán – költözz be azonnal, élvezd a kényelmet! CSOK PLUSZRA, 3% HITELRE IS ALKALMAS! Eladó Kiskunlacházán egy nettó 106 m²-es, tégla építésű, 2024-ben elkészült csalá...
Belső terület
106 m²
Telek terület
500 m²
Szobák
4

87.9 M Ft

Pest megye - Kiskunlacháza
Pest megye - Kiskunlacháza
Pest megye - Kiskunlacháza
Pest megye - Kiskunlacháza