Eladó új építésű ikerház - Dunaharaszti

KAPCSOLAT
Lukovics Vilmos


+36 20 941

lukovics.vilmos.leeb@

Az időpont kérés naptár ikonja
IDŐPONTOT KÉREK
A visszahívás kérés telefon ikonja egy azt körbe ölelő nyíllal
VISSZAHÍVÁST KÉREK
Ajánlom egy ismerősömnek ikon
AJÁNLOM EGY ISMERŐSÖMNEK
Facebook megosztás ikon
MEGOSZTÁS

KAPCSOLATFELVÉTEL

Küldés

Az üzenetet sikeresen elküldtük!
Hiba történt!
INGATLAN ADATAI

Ingatlan jellege

ikerház

Belső terület

150 m²

Telek terület

612 m²

Tájolás

dél, nyugat

Építési állapot

új

Építési mód

tégla

Szobák száma

6 szoba

Terasz

23 m²

Épület szintje

2.

Épült

2026

Ingatlan állapot

kívül: új
belül: új

Klíma

van

Szigetelés

15 cm

Ablak szerkezete

3 rétegű thermoplan

Napelem

3.00 kW

Fűtés

cirko

Komfort

összkomfort

Közműállapot

csatorna: bekötve
gáz: bekötve
villany: bekötve
víz: bekötve

Energetika

A:

Az időpont kérés naptár ikonja
HTML
Az időpont kérés naptár ikonja
PDF
Eladó új építésű ikerház
Ingatlan azonosító:
8208_leebesfia

Pest megye, Dunaharaszti, Óváros

Irányár

169.9 M Ft
(1.13 M Ft/㎡)

Szobák

6 szoba

Terület

150 m²

Telek terület

612 m²
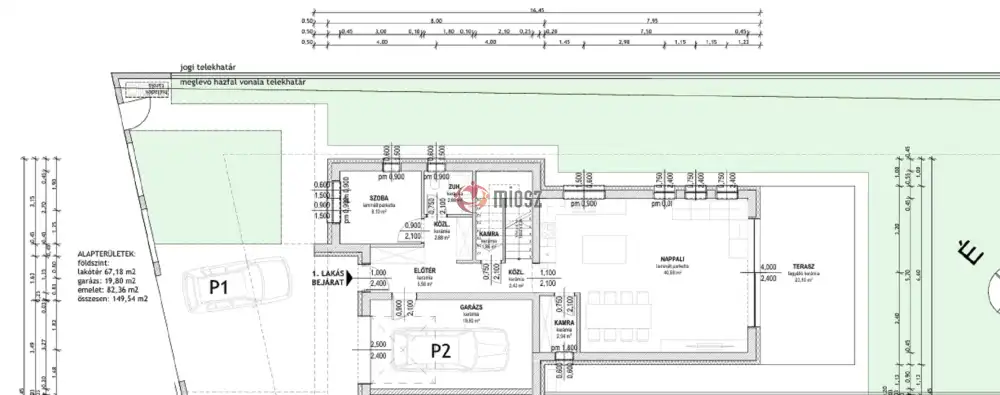
INGATLAN LEÍRÁSA
Dunaharaszti – Új építésű ikerház, ahol végre mindenkinek jut saját tér!

Ha fontos a tágas közösségi tér, akkor végre egy ház, ahol nem kell sakkozni a szobákkal.

600 m2-es telken épül ez a nettó 150 m²-es, kétszintes ikerház ami jól átgondolt, családbarát elosztással épül.

A földszint központja a 40,5 m²-es nappali–étkező–konyha, amely valódi élettér: nagy kanapé, étkezőasztal, konyhasziget – minden kényelmesen elfér.

Innen közvetlen kijárat nyílik a 23 m²-es teraszra.

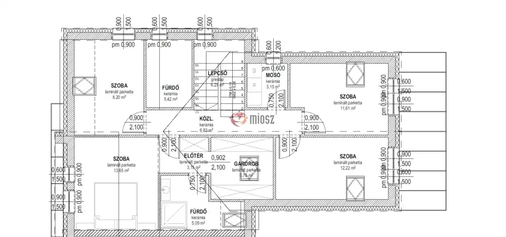
A felső szint a nyugalomé:

4 külön nyíló hálószoba, gardrób, mosóhelyiség és 2 fürdőszoba – így reggelente nem kell sorban állni.

A ház saját 20 m2 méretű garázzsal rendelkezik, belső kapcsolattal.

Műszaki tartalom, ami ma elvárható:

• 15 cm homlokzati hőszigetelés
• 3 rétegű, 6 légkamrás, antracit nyílászárók
• Padlófűtés a lakótérben
• 24 kW-os IMMERGAS kondenzációs kazán
• 3×16 A elektromos hálózat
• 3 kW napelem alapszerelés
• 1 db klíma beépítve, további 3 előkészítve
• Redőnyök szúnyoghálóval
• Hörmann motoros garázskapu
• Riasztó előkészítés

Iskola, óvoda , szupermarket és tömegközlekedés gyalogos távolságban, pár perc járásra található.

Élhető méretek, jól szeparált terek, modern műszaki tartalom:

Ez az otthon azoknak szól, akik új építésű házat keresnek Dunaharasztin, praktikus elosztással, külön szintekre tagolt élettérrel és kényelmes szobaszámmal.


INGATLAN ADATAI

Ingatlan jellege
ikerház
Belső terület
150 m²
Telek terület
612 m²
Tájolás
dél, nyugat
Építési állapot
új
Építési mód
tégla
Szobák száma
6 szoba
Terasz
23 m²
Épület szintje
2.
Épült
2026
Ingatlan állapot
kívül: új
belül: új
Klíma
van
Szigetelés
15 cm
Ablak szerkezete
3 rétegű thermoplan
Napelem
3.00 kW
Fűtés
cirko
Komfort
összkomfort
Közműállapot
csatorna: bekötve
gáz: bekötve
villany: bekötve
víz: bekötve
Energetika
A:
TÉRKÉP

Pest megye, Dunaharaszti, Óváros

KAPCSOLAT
Lukovics Vilmos
Lukovics Vilmos


+36 20 941 4374

lukovics.vilmos.leeb@gmail.com

KAPCSOLAT
Lukovics Vilmos

+36 20 941

lukovics.vilmos.leeb@

Az időpont kérés naptár ikonja
IDŐPONTOT KÉREK
A visszahívás kérés telefon ikonja egy azt körbe ölelő nyíllal
VISSZAHÍVÁST KÉREK
Ajánlom egy ismerősömnek ikon
AJÁNLOM EGY ISMERŐSÖMNEK
Facebook megosztás ikon
MEGOSZTÁS

KAPCSOLATFELVÉTEL

Küldés

Az üzenetet sikeresen elküldtük!
Hiba történt!
INGATLAN ADATAI

Ingatlan jellege

ikerház

Belső terület

150 m²

Telek terület

612 m²

Tájolás

dél, nyugat

Építési állapot

új

Építési mód

tégla

Szobák száma

6 szoba

Terasz

23 m²

Épület szintje

2.

Épült

2026

Ingatlan állapot

kívül: új
belül: új

Klíma

van

Szigetelés

15 cm

Ablak szerkezete

3 rétegű thermoplan

Napelem

3.00 kW

Fűtés

cirko

Komfort

összkomfort

Közműállapot

csatorna: bekötve
gáz: bekötve
villany: bekötve
víz: bekötve

Energetika

A:

Az időpont kérés naptár ikonja
HTML
Az időpont kérés naptár ikonja
PDF

Hasonló ingatlan hírdetések

Eladó új építésű családi ház, vagy kertes ház hirdetést keres Dunaharaszti területén?
Tekintse meg további ajánlatainkat!

eladó családi ház, Dunaharaszti

eladó családi ház

Pest megye, Dunaharaszti
Kiváló lehetőség Dunaharaszti óvárosában – alakítsd saját ízlésedre! Dunaharaszti hangulatos óvárosi részén kínálunk megvételre egy kb. 105 m²-es családi házat, 620 m²-es telken, önálló 50m2-es gar...
Belső terület
106 m²
Telek terület
619 m²
Szobák
3

69.9 M Ft

eladó családi ház, Dunaharaszti

eladó családi ház

Pest megye, Dunaharaszti, Óváros
PRÉMIUM CSALÁDI HÁZ DUNAHARASZTI RÓZSADOMBJÁN Dunaharaszti egyik legkeresettebb részén, a Rózsadombon, csendes, forgalommentes zsákutcában kínálunk eladásra egy 2002-ben épült, körülbelül 300 m²-e...
Belső terület
300 m²
Telek terület
762 m²
Szobák
7

149.9 M Ft

eladó családi ház, Dunaharaszti

eladó családi ház

Pest megye, Dunaharaszti, Óváros
Nyugodt családi otthon Dunaharaszti Óvárosában – ahová jó hazatérni Dunaharaszti csendes, óvárosi részén, Budapest közvetlen határában kínálunk eladásra egy barátságos, tágas családi házat, amely i...
Belső terület
150 m²
Telek terület
907 m²
Szobák
4

129 M Ft

eladó új építésű sorház, Dunaharaszti

eladó új építésű sorház

Pest megye, Dunaharaszti
Eladó új építésű sorházi lakások Dunaharasztiban – modern dizájn, kiemelkedő műszaki tartalommal! Régóta keresed az otthonod a budapesti agglomerációban de eddig nem találtad még meg az igazit? Ak...
Belső terület
80 m²
Telek terület
62 m²
Szobák
4

106.9 M Ft

Új építésű!
Új építésű
eladó új építésű sorház, Dunaharaszti

eladó új építésű sorház

Pest megye, Dunaharaszti
Eladó új építésű sorházi lakások Dunaharasztiban – modern dizájn, kiemelkedő műszaki tartalommal! Régóta keresed az otthonod a budapesti agglomerációban de eddig nem találtad még meg az igazit? Ak...
Belső terület
82 m²
Telek terület
122 m²
Szobák
4

117.9 M Ft

Új építésű!
Új építésű
eladó új építésű sorház, Dunaharaszti

eladó új építésű sorház

Pest megye, Dunaharaszti
Eladó új építésű sorházi lakások Dunaharasztiban – modern dizájn, kiemelkedő műszaki tartalommal! Régóta keresed az otthonod a budapesti agglomerációban de eddig nem találtad még meg az igazit? Ak...
Belső terület
85 m²
Telek terület
18 m²
Szobák
4

105.9 M Ft

eladó új építésű sorház, Dunaharaszti

eladó új építésű sorház

Pest megye, Dunaharaszti
Eladó új építésű sorházi lakások Dunaharasztiban – modern dizájn, kiemelkedő műszaki tartalommal! Régóta keresed az otthonod a budapesti agglomerációban de eddig nem találtad még meg az igazit? Ak...
Belső terület
85 m²
Telek terület
17 m²
Szobák
4

102.9 M Ft

Új építésű!
Új építésű
eladó új építésű sorház, Dunaharaszti

eladó új építésű sorház

Pest megye, Dunaharaszti
Eladó új építésű sorházi lakások Dunaharasztiban – modern dizájn, kiemelkedő műszaki tartalommal! Régóta keresed az otthonod a budapesti agglomerációban de eddig nem találtad még meg az igazit? Ak...
Belső terület
80 m²
Telek terület
116 m²
Szobák
4

114.9 M Ft

Pest megye - Dunaharaszti
Pest megye - Dunaharaszti
Pest megye - Dunaharaszti
Pest megye - Dunaharaszti
Pest megye - Dunaharaszti
Pest megye - Dunaharaszti