Eladó új építésű ház - Tatabánya

KAPCSOLAT
Békefi Andrea


+36 20 250

bekefi.andrea@

Az időpont kérés naptár ikonja
IDŐPONTOT KÉREK
A visszahívás kérés telefon ikonja egy azt körbe ölelő nyíllal
VISSZAHÍVÁST KÉREK
Ajánlom egy ismerősömnek ikon
AJÁNLOM EGY ISMERŐSÖMNEK
Facebook megosztás ikon
MEGOSZTÁS

KAPCSOLATFELVÉTEL

Küldés

Az üzenetet sikeresen elküldtük!
Hiba történt!
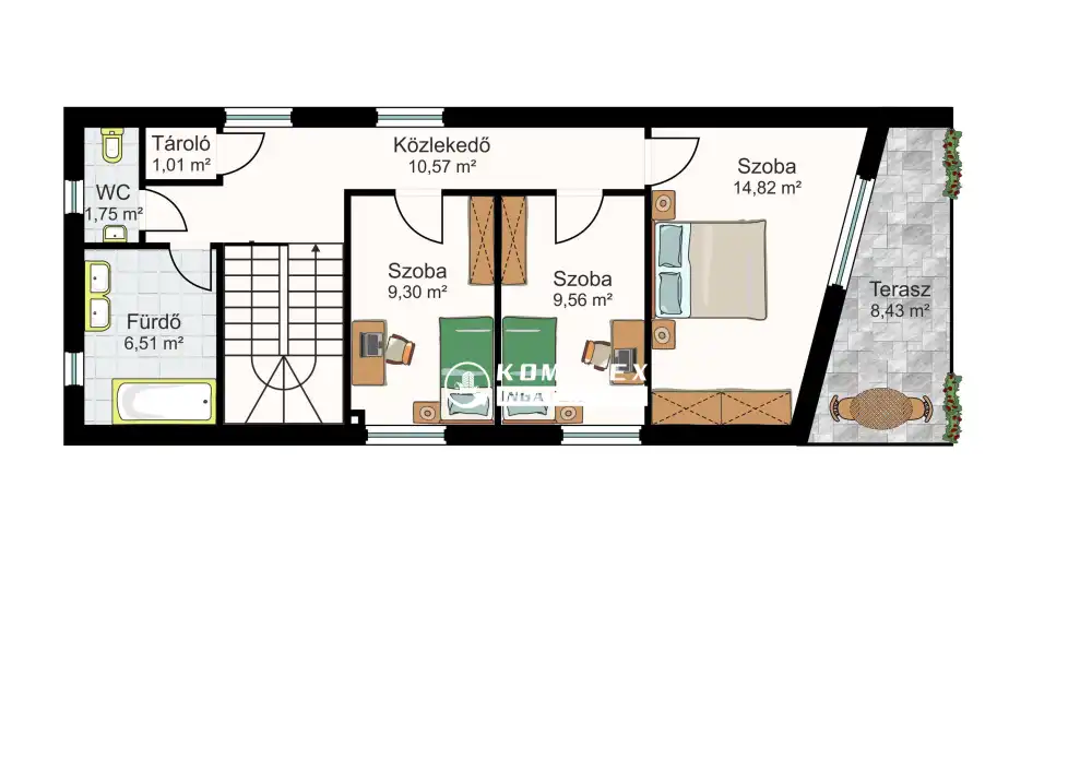
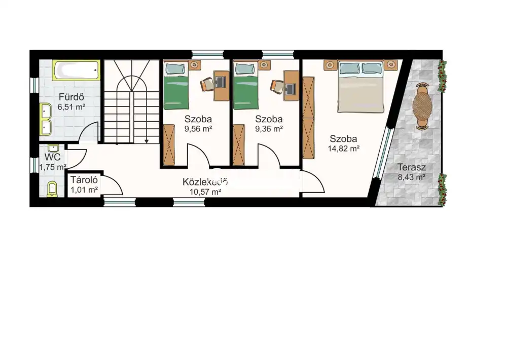
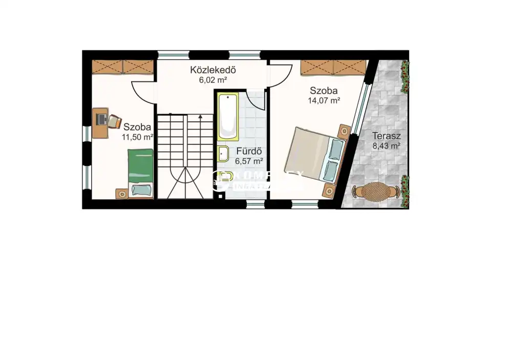
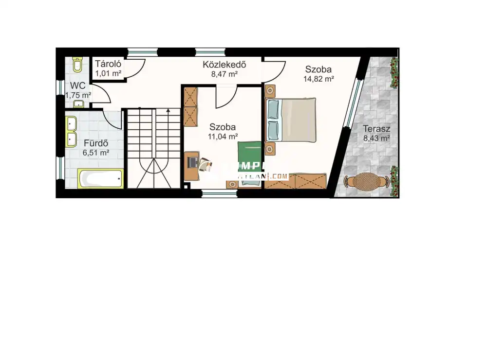
INGATLAN ADATAI

Ingatlan jellege

családi ház

Belső terület

84 m²

Telek terület

217 m²

Tájolás

délkelet

Építési állapot

új

Építési mód

tégla

Szobák száma

3 szoba

Épület szintje

2.

Épült

2026

Ingatlan állapot

kívül: új
belül: új

Fűtés

hőszivattyús

Komfort

összkomfort

Közműállapot

csatorna: bekötve
gáz: bekötve
villany: bekötve
víz: bekötve

Energetika

nincs megadva

Az időpont kérés naptár ikonja
HTML
Az időpont kérés naptár ikonja
PDF
Eladó új építésű ház
Ingatlan azonosító:
4135_ko

Komárom-Esztergom megye, Tatabánya, (Panoráma lakópark), Boróka

Irányár

89.9 M Ft
(1.07 M Ft/㎡)

Szobák

3 szoba

Terület

84 m²

Telek terület

217 m²
INGATLAN LEÍRÁSA
Csak a Komplex Ingatlan kínálatában:
Tatabányán, a Panoráma lakóparkban, családi házas környezetben, 4 db új építésű, modern, energiatakarékos lakóingatlan kerül megépítésre, melyek közül most még lehet választani.
Az építkezés 2026. január-február hónapban kezdődik, az ingatlanok kulcsrakész átadásának várható időpontja 2027. harmadik negyedéve.
Az ingatlanok különböző méretűek, eltérő telekhányaddal rendelkeznek, ezáltal az áruk is változó:
L1 ház: 83,46 m2 nettó lakótér + terasz + erkély, 217 m2 kert: 89,9 M Ft
L2 ház: 114,66 m2 nettó lakótér + terasz + erkély, fedett parkoló, garázs, tároló, 219 m2 kert: 129,75 M Ft
L3 ház: 94,24 m2 nettó lakótér + terasz + erkély, fedett parkoló, garázs, tároló, 259 m2 kert: 105,9 M Ft
L4 ház: 114,78 m2 nettó lakótér + terasz + erkély, fedett parkoló, garázs, tároló, 580 m2 kert: 137 M Ft
Jelen hirdetési ár az L1 sz. ingatlanra vonatkozik.
A házak kétszintesek, egymástól elkülönülnek, csak a garázs köti össze őket, így nincs közös fal.
Hőszivattyús fűtési rendszer, 5 légkamrás műanyag nyílászárók, átgondolt tervezés jellemzi a lakásokat. Pontos műszaki tartalmat személyes találkozó keretében tudok átadni, illetve kérésre küldeni.
Megbízható, referenciával rendelkező beruházó/kivitelező.
Keressen bizalommal, kösse le most az Ön számára legmegfelelőbb ingatlant, hogy jövő évben beköltözhessen álmai otthonába!

INGATLAN ADATAI

Ingatlan jellege
családi ház
Belső terület
84 m²
Telek terület
217 m²
Tájolás
délkelet
Építési állapot
új
Építési mód
tégla
Szobák száma
3 szoba
Épület szintje
2.
Épült
2026
Ingatlan állapot
kívül: új
belül: új
Fűtés
hőszivattyús
Komfort
összkomfort
Közműállapot
csatorna: bekötve
gáz: bekötve
villany: bekötve
víz: bekötve
Energetika
nincs megadva
TÉRKÉP

Komárom-Esztergom megye, Tatabánya, Boróka

KAPCSOLAT
Békefi Andrea
Békefi Andrea


+36 20 250 3208

bekefi.andrea@komplexingatlan.com

KAPCSOLAT
Békefi Andrea

+36 20 250

bekefi.andrea@

Az időpont kérés naptár ikonja
IDŐPONTOT KÉREK
A visszahívás kérés telefon ikonja egy azt körbe ölelő nyíllal
VISSZAHÍVÁST KÉREK
Ajánlom egy ismerősömnek ikon
AJÁNLOM EGY ISMERŐSÖMNEK
Facebook megosztás ikon
MEGOSZTÁS

KAPCSOLATFELVÉTEL

Küldés

Az üzenetet sikeresen elküldtük!
Hiba történt!
INGATLAN ADATAI

Ingatlan jellege

családi ház

Belső terület

84 m²

Telek terület

217 m²

Tájolás

délkelet

Építési állapot

új

Építési mód

tégla

Szobák száma

3 szoba

Épület szintje

2.

Épült

2026

Ingatlan állapot

kívül: új
belül: új

Fűtés

hőszivattyús

Komfort

összkomfort

Közműállapot

csatorna: bekötve
gáz: bekötve
villany: bekötve
víz: bekötve

Energetika

nincs megadva

Az időpont kérés naptár ikonja
HTML
Az időpont kérés naptár ikonja
PDF

Hasonló ingatlan hírdetések

Eladó új építésű családi ház, vagy kertes ház hirdetést keres Tatabánya területén?
Tekintse meg további ajánlatainkat!

eladó ikerház, Tatabánya

eladó ikerház

Komárom-Esztergom megye, Tatabánya, (Felsőgalla), Régi Vásártér sor
Leírás Eladó felújított családi ház Tatabányán, Felsőgallán Tatabánya közkedvelt részén, Felsőgallán, a régi városrészben kínálunk megvételre egy 75 m²-es, kiváló állapotú családi házat. Az ingatla...
Belső terület
75 m²
Telek terület
300 m²
Szobák
3

54.99 M Ft

azonnal költözhető
Azonnal költözhető
eladó ikerház, Tatabánya

eladó ikerház

Komárom-Esztergom megye, Tatabánya, Felsőgalla
Tatabánya Felsőgalla, régi városrész csendes zsákutcájában eladó egy 300 m2-es telken álló, 68 m2-es, összközműves iker ház. Az ingatlan három éve teljes felújításon esett át, melynek során a víz- és ...
Belső terület
73 m²
Telek terület
300 m²
Szobák
2

29.99 M Ft + Áfa

azonnal költözhető
Azonnal költözhető
eladó új építésű családi ház, Tatabánya

eladó új építésű családi ház

Komárom-Esztergom megye, Tatabánya, (Panoráma lakópark), Boróka utca
KIZÁRÓLAG IRODÁNKNÁL! Kulcsrakész, modern, kétszintes új építésű sorházi lakás Tatabányán – ideális befektetésnek és első otthonnak! Tatabánya kedvelt részén, a Panoráma lakóparkban, a Boróka utcá...
Belső terület
83 m²
Telek terület
217 m²
Szobák
3

89.9 M Ft

Új építésű!
Új építésű
eladó családi ház, Tatabánya

eladó családi ház

Komárom-Esztergom megye, Tatabánya, (Kertvárosi lakótelep), Petőfi Sándor utca
Eladó exkluzív családi ház Tatabánya kertvárosi részén – prémium életérzés és értékálló otthon Fedezze fel ennek a kiemelkedő minőségű, gondosan kialakított családi háznak a páratlan lehetőségeit T...
Belső terület
156 m²
Telek terület
576 m²
Szobák
3

117 M Ft

eladó új építésű sorház, Tatabánya

eladó új építésű sorház

KIZÁRÓLAG IRODÁNKNÁL! Kulcsrakész, modern, kétszintes új építésű sorházi lakás Tatabányán – ideális otthonnak!

Komárom-Esztergom megye, Tatabánya, (Panoráma lakópark), Boróka utca
KIZÁRÓLAG IRODÁNKNÁL! Kulcsrakész, modern, kétszintes új építésű sorházi lakás Tatabányán – ideális befektetésnek és első otthonnak! Tatabánya kedvelt részén, a Panoráma lakóparkban, a Boróka utcá...
Belső terület
114 m²
Telek terület
218 m²
Szobák
4

129.75 M Ft

Új építésű!
Új építésű
eladó családi ház, Tatabánya

eladó családi ház

Komárom-Esztergom megye, Tatabánya, (Panoráma lakópark), Boróka utca
„Az élet túl hosszú otthon, de túl rövid ahhoz, hogy az ember otthonra leljen máshol.”  Csak a Komplexnél! Komárom-Esztergom Vármegyében Tatabányán, a Panoráma-lakóparkban, új, 4 családi házas b...
Belső terület
94 m²
Telek terület
260 m²
Szobák
3

105.9 M Ft

Új építésű!
Új építésű
eladó családi ház, Tatabánya

eladó családi ház

Kertvárosi Luxus!

Komárom-Esztergom megye, Tatabánya, Kertváros
Eladó prémium családi ház Tatabánya kertvárosában – relax terasz, tökéletes nyugalom Kivételes lehetőség Tatabánya egyik legkedveltebb kertvárosi részén: 2020 ban teljesen felújított, 108 m²-es, ...
Belső terület
108 m²
Telek terület
576 m²
Szobák
2

106.99 M Ft

CSOK igényelhető
CSOK igényelhető
eladó nyaraló, Tatabánya

eladó nyaraló

Modulház a város szélén nem csak Rockereknek!????

Komárom-Esztergom megye, Tatabánya, (Turuloldal), csülök utca
Eladó Tatabányán, a szanatórium környékén állandó lakhatásra is alkalmas 1504 m² telken egy 90 m² es szigetelt modulház amely a következő helységeket tartalmazza: 2 szoba,konyha,fürdőszoba toalett...
Belső terület
90 m²
Telek terület
1504 m²
Szobák
2+2

24.99 M Ft

garázzsal
Garázzsal
Komárom-Esztergom megye - Tatabánya
Komárom-Esztergom megye - Tatabánya
Komárom-Esztergom megye - Tatabánya
Komárom-Esztergom megye - Tatabánya
Komárom-Esztergom megye - Tatabánya
Komárom-Esztergom megye - Tatabánya
Komárom-Esztergom megye - Tatabánya
Komárom-Esztergom megye - Tatabánya
Komárom-Esztergom megye - Tatabánya
Komárom-Esztergom megye - Tatabánya
Komárom-Esztergom megye - Tatabánya
Komárom-Esztergom megye - Tatabánya
Komárom-Esztergom megye - Tatabánya
Komárom-Esztergom megye - Tatabánya
Komárom-Esztergom megye - Tatabánya
Komárom-Esztergom megye - Tatabánya