Eladó új építésű ház - Pécs

KAPCSOLAT
Boros Linda


+36 70 521

blhomeandfinance@

Az időpont kérés naptár ikonja
IDŐPONTOT KÉREK
A visszahívás kérés telefon ikonja egy azt körbe ölelő nyíllal
VISSZAHÍVÁST KÉREK
Ajánlom egy ismerősömnek ikon
AJÁNLOM EGY ISMERŐSÖMNEK
Facebook megosztás ikon
MEGOSZTÁS

KAPCSOLATFELVÉTEL

Küldés

Az üzenetet sikeresen elküldtük!
Hiba történt!
INGATLAN ADATAI

Ingatlan jellege

családi ház

Belső terület

108 m²

Telek terület

700 m²

Tájolás

kelet, nyugat

Építési állapot

új

Építési mód

tégla

Szobák száma

4 szoba

Terasz

16 m²

Épület szintje

2.

Épült

2026

Ingatlan állapot

kívül: új
belül: új

Ablak szerkezete

3 rétegű thermoplan

Fűtés

hőszivattyús

Komfort

összkomfort

Közműállapot

csatorna: bekötve
gáz: nincs
villany: bekötve
víz: bekötve

Energetika

A:

Az időpont kérés naptár ikonja
HTML
Az időpont kérés naptár ikonja
PDF
Eladó új építésű ház
Ingatlan azonosító:
50_tw

Baranya megye, Pécs, (Donátus), Varjú dűlő

Irányár

149.9 M Ft
(1.39 M Ft/㎡)

Szobák

4 szoba

Terület

108 m²

Telek terület

700 m²
INGATLAN LEÍRÁSA
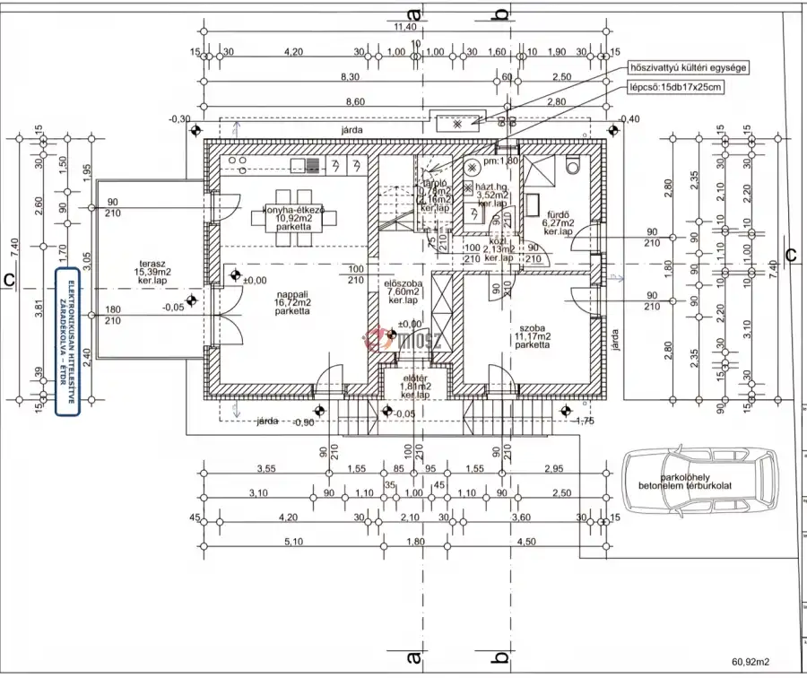
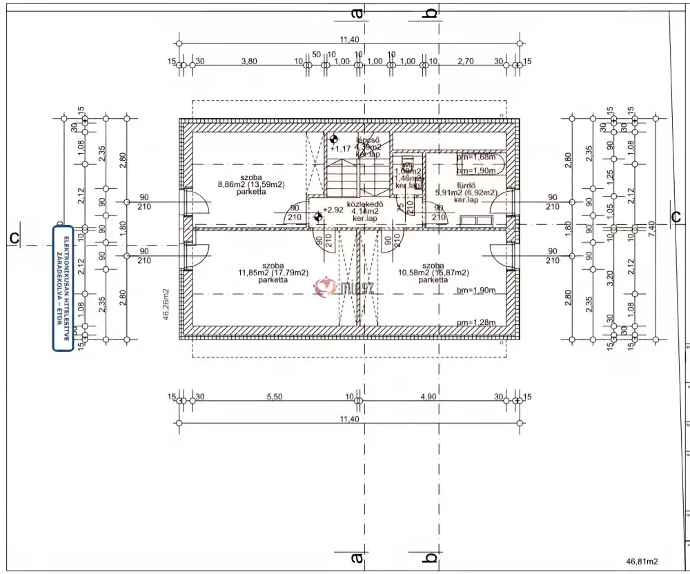
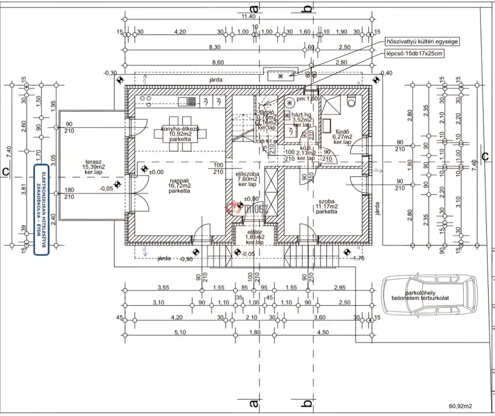
Eladásra kínálok Pécs-Donátuson, a Varjú dülőben egy újépítésű családi házat.

Az ingatlan építés alatt áll, tervezett átadás:
2026.12.31

Paraméterek:

Telek mérete 700 m2,
Ingatlan mérete 108 m2, mely az alábbi elosztást tartalmazza: földszint + emelet kialakítású.
4 db hálószoba ( 3db 11 m2-es, és 1db 9 m2-es), nappali-konyha-étkező (28 m2), zuhanyzós fürdőszoba illemhelyiséggel a földszinten, és egy kádas fürdő, külön illemhelyiséggel, az emeleten.
3 db szoba az emeleten, 1 db szoba a földszinten kerül kialakításra.
A házhoz tartozik egy 16 m2-es terasz, valamint autóbeálló is.
Az ingatlan téglából épül, 3 rétegű nyílászárókkal, fűtése, hőszivattyúval megoldott.

Az ingatlan megfelel a CSOK-Plusz, és Otthon Start hiteleknek is. Amennyiben hitel is szükséges a megvásárláshoz, állok renddelkezésre, mint független pénzügyi szakértő.

További információ esetén a megadott telefonszámon várom hívását.

INGATLAN ADATAI

Ingatlan jellege
családi ház
Belső terület
108 m²
Telek terület
700 m²
Tájolás
kelet, nyugat
Építési állapot
új
Építési mód
tégla
Szobák száma
4 szoba
Terasz
16 m²
Épület szintje
2.
Épült
2026
Ingatlan állapot
kívül: új
belül: új
Ablak szerkezete
3 rétegű thermoplan
Fűtés
hőszivattyús
Komfort
összkomfort
Közműállapot
csatorna: bekötve
gáz: nincs
villany: bekötve
víz: bekötve
Energetika
A:
TÉRKÉP

Baranya megye, Pécs, Varjú dűlő

KAPCSOLAT
Boros Linda
Boros Linda


+36 70 521 0521

blhomeandfinance@gmail.com

KAPCSOLAT
Boros Linda

+36 70 521

blhomeandfinance@

Az időpont kérés naptár ikonja
IDŐPONTOT KÉREK
A visszahívás kérés telefon ikonja egy azt körbe ölelő nyíllal
VISSZAHÍVÁST KÉREK
Ajánlom egy ismerősömnek ikon
AJÁNLOM EGY ISMERŐSÖMNEK
Facebook megosztás ikon
MEGOSZTÁS

KAPCSOLATFELVÉTEL

Küldés

Az üzenetet sikeresen elküldtük!
Hiba történt!
INGATLAN ADATAI

Ingatlan jellege

családi ház

Belső terület

108 m²

Telek terület

700 m²

Tájolás

kelet, nyugat

Építési állapot

új

Építési mód

tégla

Szobák száma

4 szoba

Terasz

16 m²

Épület szintje

2.

Épült

2026

Ingatlan állapot

kívül: új
belül: új

Ablak szerkezete

3 rétegű thermoplan

Fűtés

hőszivattyús

Komfort

összkomfort

Közműállapot

csatorna: bekötve
gáz: nincs
villany: bekötve
víz: bekötve

Energetika

A:

Az időpont kérés naptár ikonja
HTML
Az időpont kérés naptár ikonja
PDF

Hasonló ingatlan hírdetések

Eladó új építésű családi ház, vagy kertes ház hirdetést keres Pécs területén?
Tekintse meg további ajánlatainkat!

eladó új építésű ikerház, Pécs

eladó új építésű ikerház

Baranya megye, Pécs, (Balokány), Ditz-malom utca
Modern ikerházi lakás eladó Pécs belvárosának közvetlen szomszédságában! Eladásra kínálunk egy kiváló elrendezésű, 72 m²-es ikerházat, amely Pécs egyik legkedveltebb, csendes, mégis központi részén...
Belső terület
72 m²
Telek terület
100 m²
Szobák
4

79.9 M Ft

eladó családi ház, Pécs

eladó családi ház

Baranya megye, Pécs, Újhegy
Eladásra kínálok Pécs-Újhegyen, egy akár 2 generáció számára is ideális családi házat. Az ingatlan földszint + emelet + tetőtérből áll, valamint egy pince szint is helyet kapott a ház aljában. S...
Belső terület
221 m²
Telek terület
737 m²
Szobák
7

114.9 M Ft

Baranya megye - Pécs
Baranya megye - Pécs
Baranya megye - Pécs
Baranya megye - Pécs