Eladó új építésű ház - Nagymaros

KAPCSOLAT
Kovács Barbara


+36 30 915

proluxingatlaniroda@

Az időpont kérés naptár ikonja
IDŐPONTOT KÉREK
A visszahívás kérés telefon ikonja egy azt körbe ölelő nyíllal
VISSZAHÍVÁST KÉREK
Ajánlom egy ismerősömnek ikon
AJÁNLOM EGY ISMERŐSÖMNEK
Facebook megosztás ikon
MEGOSZTÁS

KAPCSOLATFELVÉTEL

Küldés

Az üzenetet sikeresen elküldtük!
Hiba történt!
INGATLAN ADATAI

Ingatlan jellege

családi ház

Belső terület

167 m²

Telek terület

1800 m²

Tájolás

délnyugat

Építési állapot

új

Építési mód

tégla

Szobák száma

5 szoba

Szobák elhelyezkedése

külön nyílik min. 2 szoba

Épület szintje

3.

Épült

2025

Ingatlan állapot

kívül: szerkezetkész
belül: szerkezetkész

Komfort

komfort nélkül

Parkolás

van fedetlen felszíni beálló

Közműállapot

csatorna: bekötve
gáz: telken
villany: bekötve
víz: bekötve

Energetika

nincs megadva

Az időpont kérés naptár ikonja
HTML
Az időpont kérés naptár ikonja
PDF
Eladó új építésű ház
Ingatlan azonosító:
1887_pl

Pest megye, Nagymaros

Irányár

114.9 M Ft
(688.02 E Ft/㎡)

Szobák

5 szoba

Terület

167 m²

Telek terület

1800 m²
INGATLAN LEÍRÁSA
Nagymaroson kivételes adottságú, panorámás telkek két épülettel – több lakásos hasznosításra is alkalmas!

Eladásra kínálunk két egymás mellett fekvő nagymarosi telket, összesen közel 1 900 m² területtel, melyeken két különálló épület található.

Telekadatok
Üres telek: kb. 622 m², közművesítetlen
Beépített telek: kb. 1 247 m², két épülettel

Épületek jellemzői:
I. épület – Vendégház
2 szobás, 30 m²
30 cm téglafalazat + 15 cm hőszigetelés
Összkomfortos
Részben felújított, lakható, gépesített
Ideális vendégházként, apartmanként vagy irodának
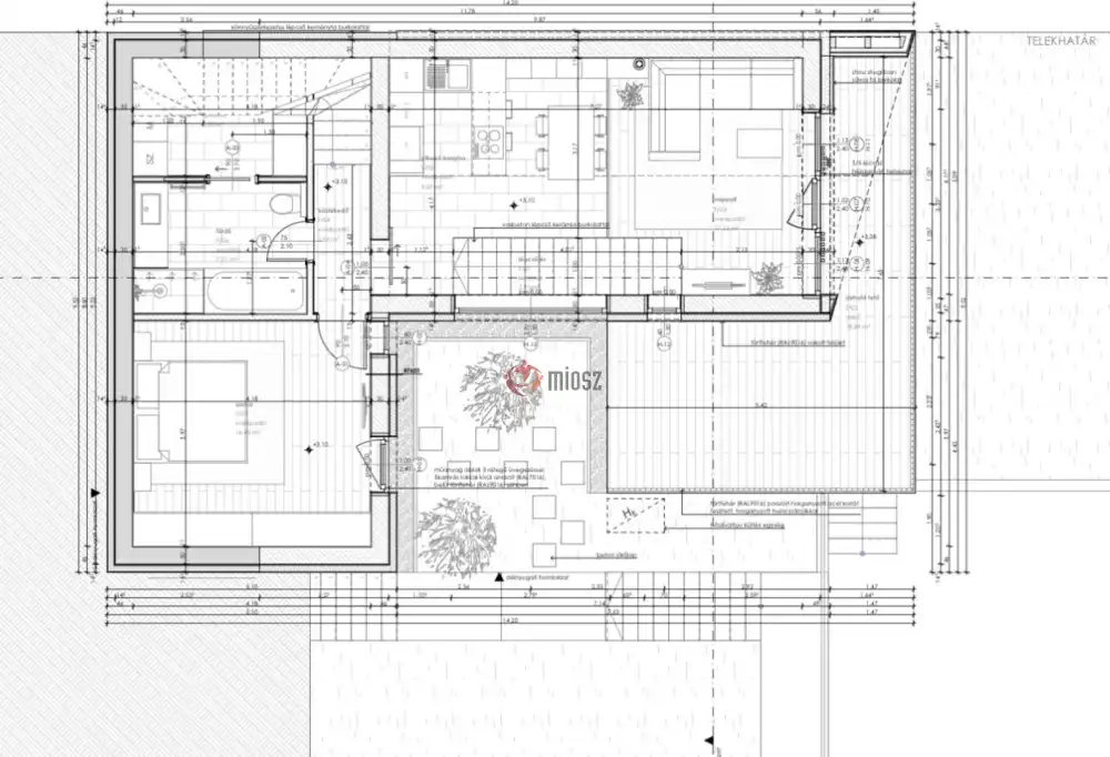
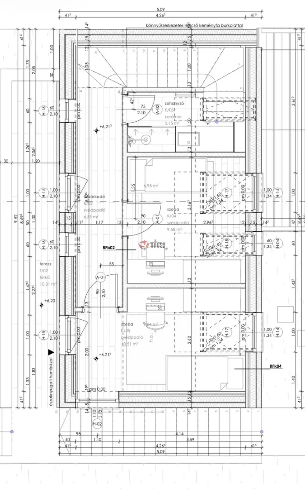
II. épület – Újépítésű családi ház
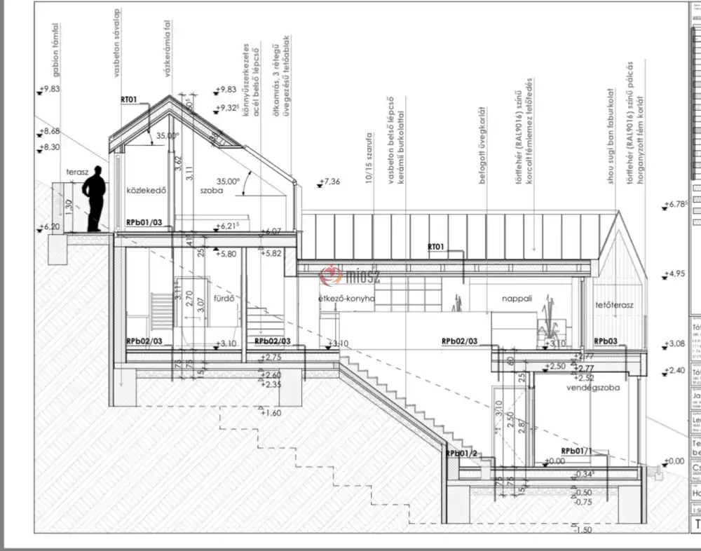
5 szoba, 3 szint, összesen 137 m²
ebből 11 m² pince / gépészeti tér
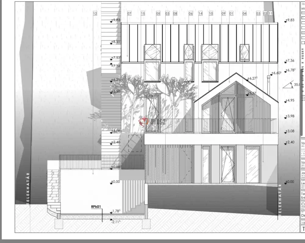
Tájolás: DDK
Szerkezet:
30 cm beton zsalukő
30 cm Porotherm tégla
acél gerendaváz (120×120×5 zártszelvény)
Födémek: monolit és E-gerendás vasbeton
Tető:
0,7 mm vastag, poliamid bevonatos korcolt alumínium lemez
3 rétegű, kriptongázos tetőablakok
10 év garancia a tetőre
Szigetelés:
15 cm EPS a téglafalakon
12 cm XPS a föld alatti beton szerkezeteken
Gépészet:
Elektromos és víz előkészítés
Szennyvíz gerinc
Padlófűtés a vasbeton lépcsőszerkezetben
Víz és villany telken belül
Jelenleg emésztő, csatornacsatlakozási lehetőség adott.

Ingatlan koncepció:
A hegyoldali fekvés különleges adottsága, hogy az épület minden szintje kertkapcsolatos, gyakorlatilag mind földszintként funkcionál.
Ennek köszönhetően akár:
4 egymástól független, teljes értékű lakás/apartman, vagy
többgenerációs családi komplexum
is kialakítható.
Minden helyiség 0 cm parapetes nyílászárókkal készült, a panoráma zavartalan élvezete érdekében.
A tördelt tömegformálás és a fekvés miatt a terek több irányból benapozottak, egész nap világosak.

Megközelíthetőség:
Vasút: kiváló, Nagymaros megálló 7 perc sétára
Autóval: 12-es úttól 1 perc, végig szilárd burkolatú úton
Kerékpár: kerékpárút 2 perc
Környezet, szabadidő
Dunai strand 10 perc sétára
A telkek északi oldala közvetlenül turistaúttal határos
Természetközeli, mégis jól megközelíthető elhelyezkedés.

További kivitelezési munkák külön megállapodás szerint.

További információért vagy megtekintésért hívjon bizalommal!
Néhány adat a megbízó által közölt információ alapján került feltüntetésre, így a tévedés jogát fenntartjuk!

Egyéb információért hívjon bizalommal.
Amiben segítjük Önöket:
- hitel ügyintézés
- CSOK ügyintézés
- energetikai tanúsítvány
- földhivatali háttér
- földmérés
- értékbecslés
- ingyenes ajánlatküldés országos rendszerből, e-mail cím megadásával.

INGATLAN ADATAI

Ingatlan jellege
családi ház
Belső terület
167 m²
Telek terület
1800 m²
Tájolás
délnyugat
Építési állapot
új
Építési mód
tégla
Szobák száma
5 szoba
Szobák elhelyezkedése
külön nyílik min. 2 szoba
Épület szintje
3.
Épült
2025
Ingatlan állapot
kívül: szerkezetkész
belül: szerkezetkész
Komfort
komfort nélkül
Parkolás
van fedetlen felszíni beálló
Közműállapot
csatorna: bekötve
gáz: telken
villany: bekötve
víz: bekötve
Energetika
nincs megadva
TÉRKÉP

Pest megye, Nagymaros

KAPCSOLAT
Kovács Barbara
Kovács Barbara


+36 30 915 2942

proluxingatlaniroda@gmail.com

KAPCSOLAT
Kovács Barbara

+36 30 915

proluxingatlaniroda@

Az időpont kérés naptár ikonja
IDŐPONTOT KÉREK
A visszahívás kérés telefon ikonja egy azt körbe ölelő nyíllal
VISSZAHÍVÁST KÉREK
Ajánlom egy ismerősömnek ikon
AJÁNLOM EGY ISMERŐSÖMNEK
Facebook megosztás ikon
MEGOSZTÁS

KAPCSOLATFELVÉTEL

Küldés

Az üzenetet sikeresen elküldtük!
Hiba történt!
INGATLAN ADATAI

Ingatlan jellege

családi ház

Belső terület

167 m²

Telek terület

1800 m²

Tájolás

délnyugat

Építési állapot

új

Építési mód

tégla

Szobák száma

5 szoba

Szobák elhelyezkedése

külön nyílik min. 2 szoba

Épület szintje

3.

Épült

2025

Ingatlan állapot

kívül: szerkezetkész
belül: szerkezetkész

Komfort

komfort nélkül

Parkolás

van fedetlen felszíni beálló

Közműállapot

csatorna: bekötve
gáz: telken
villany: bekötve
víz: bekötve

Energetika

nincs megadva

Az időpont kérés naptár ikonja
HTML
Az időpont kérés naptár ikonja
PDF

Hasonló ingatlan hírdetések

Eladó új építésű családi ház, vagy kertes ház hirdetést keres Nagymaros területén?
Tekintse meg további ajánlatainkat!

eladó új építésű családi ház, Nagymaros

eladó új építésű családi ház

Befektetésnek biztos haszon, saját célra generációs kincs

Pest megye, Nagymaros, Aranyos utca
Nagymaros egyik kiemelkedő fekvésű, hegyoldali részén kínálunk eladásra egy komplex, sokoldalúan hasznosítható ingatlant, amely ideális választás nagycsaládosok, több generáció együttélését tervezők v...
Belső terület
126 m²
Telek terület
1700 m²
Szobák
5

114.9 M Ft

eladó nyaraló, Nagymaros

eladó nyaraló

Zen nyugalom és inspiráció a Dunakanyarban.

Pest megye, Nagymaros, Mihályhegyi utca
Nettó 83m2-es Dunára panorámás családi ház 1170m2-es telken, Nagymaros Mihályhegyen. A hangulatos előtéren keresztül a házba lépve az alsó szinten egy étkezős konyhát, egy nappalit, egy tárolásra i...
Belső terület
83 m²
Telek terület
1170 m²
Szobák
3

75 M Ft

eladó családi ház, Nagymaros

eladó családi ház

Bővíthető családi ház és melléképület a Dunakanyarban

Pest megye, Nagymaros, Diófa utca
Nagymaroson a Diófa utcában eladó egy bruttó 56m2-es, 2 szobás, igény esetén tovább bővíthető családi ház. A ház 2023-ban részleges felújításon esett át, melynek keretein belül megtörtént az áramhá...
Belső terület
56 m²
Telek terület
187 m²
Szobák
2

59.9 M Ft + Áfa

eladó nyaraló, Nagymaros

eladó nyaraló

Pest megye, Nagymaros
Eladó Nagymaroson a 12-es főúttól mintegy 200 m-re egy szinte teljesen sík úton megközelíthető hangulatos patakparti ház 372 nm telekkel. Az épület földszintjén nappali, konyha és fürdőszoba; tetőt...
Belső terület
44 m²
Telek terület
372 m²
Szobák
1+2

29.9 M Ft

azonnal költözhető
Azonnal költözhető
eladó családi ház, Nagymaros

eladó családi ház

DUNAKANYARBAN LUXUS HÁZ ELADÓ!

Pest megye, Nagymaros
A Dunakanyar szívében eladó luxus ház! Nagymaros egyedi bájjal rendelkező város, a hagyományőrzés és a vidéki stílus köszön vissza minden épületben, utcában egészen egy kis kávézótól a tágas Duna- ...
Belső terület
317 m²
Telek terület
1000 m²
Szobák
4+1

279 M Ft

Panorámás!
Panorámás
eladó nyaraló, Nagymaros

eladó nyaraló

ÖRÖKPANORÁMÁS ház eladó!

Pest megye, Nagymaros
A Dunakanyarban PANORÁMÁS házikó eladó! A masszív kőalappal rendelkező téglaház kívülről felújított, szigetelt, viszont a belső felújítás új tulajdonosára vár. Ön ízlése és igénye szerint alakíthat...
Belső terület
36 m²
Telek terület
865 m²
Szobák
1

55 M Ft

alkalmi vétel
Alkalmi vétel
eladó nyaraló, Nagymaros

eladó nyaraló

Pest megye, Nagymaros, Sóhegy
Eladó Nagymaros külterületén egy nettó 80 négyzetméteres nyaraló 640 nm-es telken, amihez tartozik több kocsi beálló, és egy 12nm-es faház amiből akár szauna is alakítható. Az ingatlan 2022-ben újjá ...
Belső terület
80 m²
Telek terület
640 m²
Szobák
3

68 M Ft

eladó nyaraló, Nagymaros

eladó nyaraló

Pest megye, Nagymaros
Elbújnál a világ elől? Megtaláltad a helyed! Eladó egy különleges hangulatú, lakhatásra is alkalmas nyaraló Nagymaros zöld szívében! Ha eleged van a városi nyüzsgésből, és egy helyet keresel, aho...
Belső terület
109 m²
Telek terület
2242 m²
Szobák
3

85 M Ft

Pest megye - Nagymaros
Pest megye - Nagymaros
Pest megye - Nagymaros
Pest megye - Nagymaros
Pest megye - Nagymaros
Pest megye - Nagymaros
Pest megye - Nagymaros
Pest megye - Nagymaros
Pest megye - Nagymaros
Pest megye - Nagymaros
Pest megye - Nagymaros
Pest megye - Nagymaros
Pest megye - Nagymaros
Pest megye - Nagymaros
Pest megye - Nagymaros
Pest megye - Nagymaros
Pest megye - Nagymaros
Pest megye - Nagymaros
Pest megye - Nagymaros
Pest megye - Nagymaros