Eladó új építésű ház - Gyál

Új építésű!
Új építésű
KAPCSOLAT
Feketéné Gyöngyösi Ildikó


+36 20 517

gyongyosi.ildiko@

Az időpont kérés naptár ikonja
IDŐPONTOT KÉREK
A visszahívás kérés telefon ikonja egy azt körbe ölelő nyíllal
VISSZAHÍVÁST KÉREK
Ajánlom egy ismerősömnek ikon
AJÁNLOM EGY ISMERŐSÖMNEK
Facebook megosztás ikon
MEGOSZTÁS

KAPCSOLATFELVÉTEL

Küldés

Az üzenetet sikeresen elküldtük!
Hiba történt!
INGATLAN ADATAI

Ingatlan jellege

családi ház

Belső terület

161 m²

Telek terület

449 m²

Tájolás

délkelet

Panoráma

kertre néző

Építési állapot

új

Építési mód

tégla

Szobák száma

5 szoba

Terasz

13.82 m²

Épület szintje

2.

Épült

2025

Ingatlan állapot

kívül: új
belül: új

Klíma

van

Ablak szerkezete

3 rétegű thermoplan

Fűtés

hőszivattyús

Komfort

duplakomfort

Parkolás

van önálló garázs

Közműállapot

csatorna: bekötve
gáz: bekötve
villany: bekötve
víz: bekötve

Energetika

A+++:

Extrák

napelem előkészítés, hálószobákban klíma előkészítés

Az időpont kérés naptár ikonja
HTML
Az időpont kérés naptár ikonja
PDF
Eladó új építésű ház
Ingatlan azonosító:
42_gl

Pest megye, Gyál

Irányár

144.9 M Ft
(900 E Ft/㎡)

Szobák

5 szoba

Terület

161 m²

Telek terület

449 m²
INGATLAN LEÍRÁSA
ÚJ ÉPÍTÉSŰ CSALÁDI HÁZ, NAPPALI + 4 SZOBA, BELSŐ KÉT SZINT

Gyál kedvelt részén, a központhoz közel kínáljuk eladásra ezt a 449 m2-es telekre, oldalhatárra épült 161 m2-es belső kétszintes nappali + 4 szobás CSALÁDI HÁZat.

Az épületet a merész, SZEMET GYÖNYÖRKÖDTETŐ FORMÁK, az esztétika, a praktikus megoldások MAGAS MŰSZAKI TARTALOM és minőség jellemzik.
A törtfehér, és az antracitszürke színű homlokzat az antracit tetőcserép, a hatalmas ablakok igazi XXI. századi, MODERN KÜLSŐt kölcsönöznek az épületnek.

A földszinten az étkezős konyha, és a nappali egy légtérben kapott helyet. Ezen kívül egy szobát, egy zuhanyzós fürdőt, és két db tárolóhelyiséget alakítottak ki.
A nappali KERTKAPCSOLATOS, hatalmas ablakainak köszönhetően fürdik a napfényben.

Az egy gépkocsi beállására alkalmas ZÁRT GARÁZSból egyből az előszobába is be tudunk lépni.

A felső szintre KÉNYELMES LÉPCSŐ vezet. Itt három db szobát, közlekedőt, gardróbot, kádas fürdő + WC-t, külön WC-t, valamint egy gardrób helyiséget találunk.

A képek a valós állapotot tükrözik. Burkolatok, szaniterek, belső ajtók ízlés szerint választhatók.

Szívből ajánlom ezt az ingatlant olyan családoknak, akik kifejezetten csendes, nyugodt, környezetben szeretnék a mindennapi életüket élni, akik értékelik az eleganciát és a magas minőséget. A ház mérete és elosztása, öt szobája, teljes kényelmet biztosít a család minden tagja számára.

A környék ellátottsága kiváló, oktatási intézmények, bevásárlási és sportolási lehetőségek, buszmegálló sétatávolságon belül elérhetők.

MŰSZAKI ADATOK:
 Porotherm 30-as falazat, 15 cm szigetelés, 12 cm XPS szigetelés a lábazatnál 10cm-es tégla válaszfalak
 három rétegű nyílászárók, kívül antracit belül fehér színben
 elektromos redőnyök, szúnyogháló
 hőszivattyús padlófűtés
 nappaliban 1 db klíma, minden további szobában klíma előkészítés
 hideg-, meleg burkolatok, szaniterek választhatók
 elektromos garázsajtó és két db elektromos kapu
 autóbeálló viacolorral burkolva
 riasztó- és kamerarendszer
 külső homlokzati világítás
 3x25 amperes villamoshálózat
 napelem előkészítés

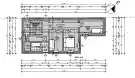
HELYISÉGLISTA
Földszint
Konyha-étkező: 13,2 m2
Nappali: 27,37 m2
Szoba: 9,92 m2
Előszoba: 6,67 m2
Zuhanyzó + WC: 2,35 m2
Tároló: 1,98 m2
Kamra: 3,36 m2
Közlekedő: 1,87 m2
Lépcsőtér: 5,74 m2

Terasz: 13,82 m2
Garázs: 27,44 m2
Előlépcső: 4,28 m2

Felső szint:
Szoba: 10,46 m2
Szoba: 9,92 m2
Szoba: 9,47 m2
Közlekedő: 8,01 m2
Közlekedő: 9,53 m2
Fürdő + WC: 5,02 m2
WC: 2,62 m2
Gardrób: 1,76 m2
Lépcsőtér: 4,02 m2

Szeretettel várom megtisztelő hívását a hét minden napján.


INGATLAN ADATAI

Ingatlan jellege
családi ház
Belső terület
161 m²
Telek terület
449 m²
Tájolás
délkelet
Panoráma
kertre néző
Építési állapot
új
Építési mód
tégla
Szobák száma
5 szoba
Terasz
13.82 m²
Épület szintje
2.
Épült
2025
Ingatlan állapot
kívül: új
belül: új
Klíma
van
Ablak szerkezete
3 rétegű thermoplan
Fűtés
hőszivattyús
Komfort
duplakomfort
Parkolás
van önálló garázs
Közműállapot
csatorna: bekötve
gáz: bekötve
villany: bekötve
víz: bekötve
Energetika
A+++:
Extrák
napelem előkészítés, hálószobákban klíma előkészítés
TÉRKÉP

Pest megye, Gyál

KAPCSOLAT
Feketéné Gyöngyösi Ildikó
Feketéné Gyöngyösi Ildikó


+36 20 517 6939

gyongyosi.ildiko@globeingatlan.hu

KAPCSOLAT
Feketéné Gyöngyösi Ildikó

+36 20 517

gyongyosi.ildiko@

Az időpont kérés naptár ikonja
IDŐPONTOT KÉREK
A visszahívás kérés telefon ikonja egy azt körbe ölelő nyíllal
VISSZAHÍVÁST KÉREK
Ajánlom egy ismerősömnek ikon
AJÁNLOM EGY ISMERŐSÖMNEK
Facebook megosztás ikon
MEGOSZTÁS

KAPCSOLATFELVÉTEL

Küldés

Az üzenetet sikeresen elküldtük!
Hiba történt!
INGATLAN ADATAI

Ingatlan jellege

családi ház

Belső terület

161 m²

Telek terület

449 m²

Tájolás

délkelet

Panoráma

kertre néző

Építési állapot

új

Építési mód

tégla

Szobák száma

5 szoba

Terasz

13.82 m²

Épület szintje

2.

Épült

2025

Ingatlan állapot

kívül: új
belül: új

Klíma

van

Ablak szerkezete

3 rétegű thermoplan

Fűtés

hőszivattyús

Komfort

duplakomfort

Parkolás

van önálló garázs

Közműállapot

csatorna: bekötve
gáz: bekötve
villany: bekötve
víz: bekötve

Energetika

A+++:

Extrák

napelem előkészítés, hálószobákban klíma előkészítés

Az időpont kérés naptár ikonja
HTML
Az időpont kérés naptár ikonja
PDF

Hasonló ingatlan hírdetések

Eladó új építésű családi ház, vagy kertes ház hirdetést keres Gyál területén?
Tekintse meg további ajánlatainkat!

eladó családi ház, Gyál

eladó családi ház

Pest megye, Gyál, Városközpont
SZÉPEN FELÚJÍTOTT CSALÁDI HÁZ GYÁL LEGJOBB RÉSZÉN 80 M2 ALAPTERÜLET+ 20 M2 KIS LAKRÉSZ 688 M2 TELEK, FEDETT TERASZ, TÁROLÓ ÖNÁLLÓ, KÖRBEJÁRHATÓ, TEHERMENTES PADLÓFŰTÉS+RADIÁTOR, KLÍMA Eladó Gyá...
Belső terület
100 m²
Telek terület
688 m²
Szobák
3

115.9 M Ft

eladó családi ház, Gyál

eladó családi ház

NAPPALI + TÁRSALGÓ + 6 SZOBA, AKÁR KÉT GENERÁCIÓ RÉSZÉRE!

Pest megye, Gyál
NAPPALI + TÁRSALGÓ + 6 SZOBA, AKÁR KÉT GENERÁCIÓ RÉSZÉRE! Gyálon, kiváló közlekedés és ellátottság mellett kínálunk eladásra egy 227m2-es (258 m2-es) belső kétszintes, nappali, társalgó + 6 szobás,...
Belső terület
284 m²
Telek terület
1113 m²
Szobák
7

213.75 M Ft

eladó új építésű ikerház, Gyál

eladó új építésű ikerház

Pest megye, Gyál
Eladó ÚJ ÉPÍTÉSŰ, ENERGIATAKARÉKOS ikerház Gyálon. A BEÉPÍTETT KONYHABÚTOR, indukciós főzőlap, elektromos sütő a vételár részét képezi! BERUHÁZÓI ÁRON! Eladó Gyálon, új építésű, energiatakaré...
Belső terület
101 m²
Telek terület
201 m²
Szobák
5

113.99 M Ft

Új építésű!
Új építésű
eladó új építésű ikerház, Gyál

eladó új építésű ikerház

Pest megye, Gyál
Eladó ÚJ ÉPÍTÉSŰ, ENERGIATAKARÉKOS ikerház Gyálon. BEÉPÍTETT KONYHABÚTOR indukciós főzőlappal, elektromos sütővel, melyek a vételár részét képezik. BERUHÁZÓI ÁRON! Eladó Gyálon, új építésű, e...
Belső terület
116 m²
Telek terület
201 m²
Szobák
5

127.99 M Ft

Új építésű!
Új építésű
eladó családi ház, Gyál

eladó családi ház

Pest megye, Gyál, Városközpont
KÉTGENERÁCIÓS, KÉT LAKÁSOS CSALÁDI HÁZ GYÁLON KÜLÖN BEJÁRATOK, 2 KOMPLETT LAKÁS BOROSPINCE KLIMATIZÁLT SZINTEK TEHERMENTES, KIVÁLÓ HELYEN! Eladó Gyál kedvelt és keresett, csendes mellékutcáinak ...
Belső terület
180 m²
Telek terület
459 m²
Szobák
7

94 M Ft

kétgenerációs!
Kétgenerációs
eladó családi ház, Gyál

eladó családi ház

Pest megye, Gyál
OTTHON START HITELLEL IS MEGVÁSÁROLHATÓ! ÚJSZERŰ, IGÉNYES, 4 HÁLÓSZOBÁS CSALÁDI HÁZ GYÁLON! RENDEZETT, CSENDES KÖRNYÉK FIATALOS, MODERN, 120 M2- ES HÁZ TERASSZAL GYÖNYÖRŰ BURKOLATOK, AJTÓK ENERGI...
Belső terület
120 m²
Telek terület
500 m²
Szobák
5

125 M Ft

Újszerű!
Újszerű
eladó ikerház, Gyál

eladó ikerház

Pest megye, Gyál
PEST MEGYÉBEN GYÁLON IKERHÁZFÉL ELADÓ! TÉGLÁBÓL ÉPÜLT! CSALÁDI HÁZAS KÖRNYEZETBEN ASZFALTOS ÚT MELLETT ELADÓ. A HÁZBAN 2 SZOBA, ÉTKEZŐ- KONYHA, FÜRDŐSZOBA, KAMRA, ELŐTÉR TALÁLHATÓ. Villany: 3X16 Am...
Belső terület
65 m²
Telek terület
200 m²
Szobák
2

52.5 M Ft

eladó családi ház, Gyál

eladó családi ház

Pest megye, Gyál, Tóth Árpád utca
171nm-es, 2 generációs, külön bejárattal! Gyálon, jó közlekedéssel, központi helyen 2 generációs részben felújított családi ház eladó! A közelben minden elérhető, ami a mindennapi életben szükséges, ...
Belső terület
160 m²
Telek terület
380 m²
Szobák
7

114 M Ft

Pest megye - Gyál
Pest megye - Gyál
Pest megye - Gyál
Pest megye - Gyál
Pest megye - Gyál
Pest megye - Gyál
Pest megye - Gyál
Pest megye - Gyál
Pest megye - Gyál
Pest megye - Gyál
Pest megye - Gyál
Pest megye - Gyál
Pest megye - Gyál
Pest megye - Gyál
Pest megye - Gyál
Pest megye - Gyál
Pest megye - Gyál
Pest megye - Gyál
Pest megye - Gyál
Pest megye - Gyál
Pest megye - Gyál
Pest megye - Gyál
Pest megye - Gyál
Pest megye - Gyál
Pest megye - Gyál
Pest megye - Gyál
Pest megye - Gyál
Pest megye - Gyál
Pest megye - Gyál
Pest megye - Gyál