Eladó új építésű ház - Erdőkertes

Új építésű!
Új építésű
KAPCSOLAT
Kiss Jutka


+36 20 334

arenaingatlanok@

Az időpont kérés naptár ikonja
IDŐPONTOT KÉREK
A visszahívás kérés telefon ikonja egy azt körbe ölelő nyíllal
VISSZAHÍVÁST KÉREK
Ajánlom egy ismerősömnek ikon
AJÁNLOM EGY ISMERŐSÖMNEK
Facebook megosztás ikon
MEGOSZTÁS

KAPCSOLATFELVÉTEL

Küldés

Az üzenetet sikeresen elküldtük!
Hiba történt!
INGATLAN ADATAI

Ingatlan jellege

családi ház

Belső terület

119 m²

Telek terület

881 m²

Tájolás

délkelet

Építési állapot

új

Építési mód

tégla

Szobák száma

5 szoba

Terasz

15 m²

Épület szintje

1.

Épült

2026

Ingatlan állapot

kívül: új
belül: új

Klíma

van

Szigetelés

15 cm

Ablak szerkezete

3 rétegű thermoplan

Fűtés

gázkazán

Komfort

duplakomfort

Parkolás

van fedett felszíni beálló

Közműállapot

csatorna: bekötve
gáz: bekötve
villany: bekötve
víz: bekötve

Energetika

nincs megadva

Az időpont kérés naptár ikonja
HTML
Az időpont kérés naptár ikonja
PDF
Eladó új építésű ház
Ingatlan azonosító:
1355_ar

Pest megye, Erdőkertes, Háromház

Irányár

92.9 M Ft
(780.67 E Ft/㎡)

Szobák

5 szoba

Terület

119 m²

Telek terület

881 m²
INGATLAN LEÍRÁSA
Eladó Erdőkertesen ÚJ ÉPÍTÉSŰ családi ház!

Dupla komfort, padlófűtés, klíma!

MÁR CSAK A BALOLDALI HÁZ SZABAD!

BERUHÁZÓI ÁRON!

Kiváló lehetőség Erdőkertesen: új építésű, amerikai konyhás nappali + 4 szobás, dupla komfortos családi ház várja új lakóit.

Az előszobából nyílik az amerikai konyhás nappali, amely közvetlenül kapcsolódik a teraszhoz. Négy kényelmes hálószoba—mindegyik külön nyíló—teremti meg a család személyes tereit. Két fürdőszoba, háztartási helyiség, kamra és tároló gondoskodik a mindennapok praktikumáról.

A 881 m²-es telek önállóságot és szabad teret kínál, az egyszintes ház minden korosztály számára ideális választás.

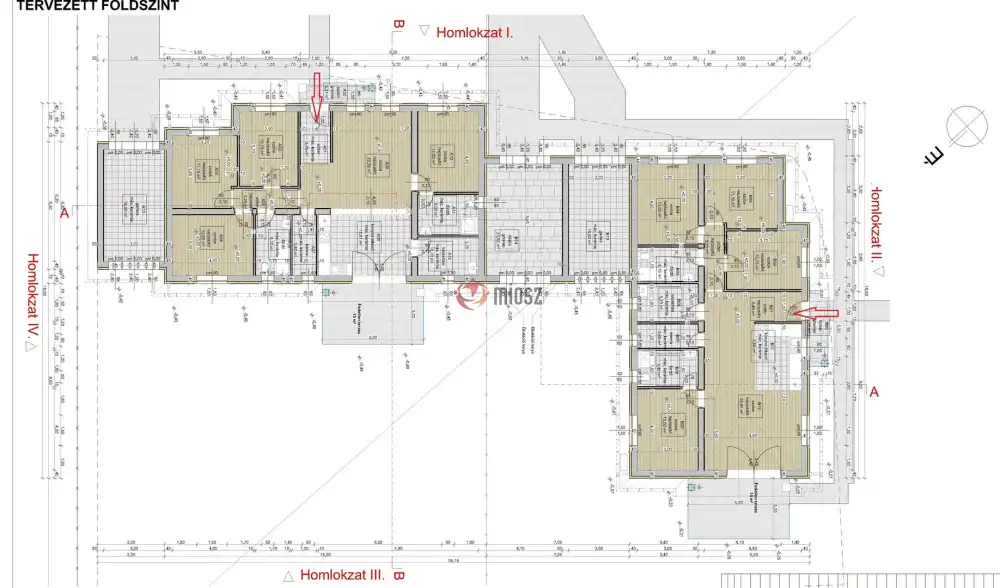
A BELSŐ TEREK KIALAKÍTÁSA – válaszfalak elhelyezése – JELENLEG MÉG MÓDOSÍTHATÓ!

Az 1762 nm-es telekre két ház épül, melyek csak a garázsoknál érintkeznek, nincs közös fal, önálló házként funkcionálnak.

„A” lakás:
- nettó 110 nm + 15 nm terasz + 3.4 nm tornác + 15 nm terasz + 16.5 nm garázs,
- amerikai konyhás nappali terasz kapcsolattal, 4 szoba, 2 fürdőszoba, háztartási helyiség, kamra, előszoba-közlekedő helyiségekből áll.

„B” lakás elrendezése:
- nettó 111 nm + 15 nm terasz + 3.4 nm tornác + 16.5 nm garázs + 23.6 nm gk. beálló,
- amerikai konyhás nappali, 4 hálószoba, 2 fürdőszoba, háztartási helyiség, kamra, előszoba-közlekedő.

Az ingatlan korszerű technikai megoldásokat kínál:
- főfalak 30 cm-es Porotherm téglából, 15 cm-es szigeteléssel,
- a tető beton cserépfedés,
- fűtés kondenzációs kazánnal, padlófűtéssel, értékegyeztetéssel hőszivattyús fűtéssel,
-2 db klíma,
- 3 rétegű, hőszigetelt üvegezésű műanyag nyílászárók, bukó-nyíló kivitelben, igény esetén redőnnyel, szúnyoghálóval felszerelve,
-a szobák burkolata laminált padló, a vizes helyiségekbe kerámia burkolatok kerülnek,
- választható burkolatok, szaniterek, belső ajtók.

A kivitelező számos referencia munkával rendelkezik Erdőkertesen és Veresegyházon egyaránt.

A csatolt fotók egy közelmúltban átadott ingatlanban készültek.

Közlekedés: buszmegálló gyalogosan pár perc alatt elérhető.

Hívjon a részletekért, a részletes műszaki tartalomért.

Irodánk ÚJ ÉPÍTÉSŰ ingatlanok specialistája, felkészült értékesítőkkel!
Jogi háttérrel (kedvező díjazással) és az egyik legjobb, bank semleges HITELKÖZVETÍTŐVEL segítjük vásárlását.

Új építésű ingatlanjainkat BERUHÁZÓI ÁRON értékesítjük!

Amennyiben értékesíteni kívánja ingatlanát, irodánk egyedi, kedvező ajánlattal áll rendelkezésére!


INGATLAN ADATAI

Ingatlan jellege
családi ház
Belső terület
119 m²
Telek terület
881 m²
Tájolás
délkelet
Építési állapot
új
Építési mód
tégla
Szobák száma
5 szoba
Terasz
15 m²
Épület szintje
1.
Épült
2026
Ingatlan állapot
kívül: új
belül: új
Klíma
van
Szigetelés
15 cm
Ablak szerkezete
3 rétegű thermoplan
Fűtés
gázkazán
Komfort
duplakomfort
Parkolás
van fedett felszíni beálló
Közműállapot
csatorna: bekötve
gáz: bekötve
villany: bekötve
víz: bekötve
Energetika
nincs megadva
TÉRKÉP

Pest megye, Erdőkertes, Háromház

KAPCSOLAT
Kiss Jutka
Kiss Jutka


+36 20 334 3328

arenaingatlanok@gmail.com

KAPCSOLAT
Kiss Jutka

+36 20 334

arenaingatlanok@

Az időpont kérés naptár ikonja
IDŐPONTOT KÉREK
A visszahívás kérés telefon ikonja egy azt körbe ölelő nyíllal
VISSZAHÍVÁST KÉREK
Ajánlom egy ismerősömnek ikon
AJÁNLOM EGY ISMERŐSÖMNEK
Facebook megosztás ikon
MEGOSZTÁS

KAPCSOLATFELVÉTEL

Küldés

Az üzenetet sikeresen elküldtük!
Hiba történt!
INGATLAN ADATAI

Ingatlan jellege

családi ház

Belső terület

119 m²

Telek terület

881 m²

Tájolás

délkelet

Építési állapot

új

Építési mód

tégla

Szobák száma

5 szoba

Terasz

15 m²

Épület szintje

1.

Épült

2026

Ingatlan állapot

kívül: új
belül: új

Klíma

van

Szigetelés

15 cm

Ablak szerkezete

3 rétegű thermoplan

Fűtés

gázkazán

Komfort

duplakomfort

Parkolás

van fedett felszíni beálló

Közműállapot

csatorna: bekötve
gáz: bekötve
villany: bekötve
víz: bekötve

Energetika

nincs megadva

Az időpont kérés naptár ikonja
HTML
Az időpont kérés naptár ikonja
PDF

Hasonló ingatlan hírdetések

Eladó új építésű családi ház, vagy kertes ház hirdetést keres Erdőkertes területén?
Tekintse meg további ajánlatainkat!

eladó családi ház, Erdőkertes

eladó családi ház

Pest megye, Erdőkertes, Nyíres
Erdőkertes egyik kellemes, csendes utcájában kínálunk megvételre egy kiváló adottságokkal rendelkező, rendezett családi házat, amely ideális választás lehet mindazok számára, akik nyugodt környezetben...
Belső terület
124 m²
Telek terület
992 m²
Szobák
3

81.9 M Ft

eladó családi ház, Erdőkertes

eladó családi ház

Pest megye, Erdőkertes
Erdőkertes legjobb részén eladó családi ház Erdőkertes – amikor az otthon már nem kompromisszum Szeretnél egy olyan házba költözni, ahol nem a felújításon, hanem az életeden van a fókusz? Ahol ...
Belső terület
200 m²
Telek terület
560 m²
Szobák
4

97.9 M Ft

eladó új építésű családi ház, Erdőkertes

eladó új építésű családi ház

Pest megye, Erdőkertes, Szentsarok
***KÖZPONTHOZ KÖZEL*** ***ÁTADÁS 3 HÓNAP*** ***ÜGYVÉDI KÖLTSÉGET BERUHÁZÓ ÁLLJA*** Eladó Erdőkertesen 1112 nm-es telekre épülő, önálló, egyszintes, nettó 122 nm-es, nappali + 4 szobás, dupla ...
Belső terület
122 m²
Telek terület
1116 m²
Szobák
5

109.9 M Ft

eladó családi ház, Erdőkertes

eladó családi ház

Pest megye, Erdőkertes
ELADÓ családi ház Erdőkertes csendes utcájában. Erdőkertes nyugodt, csendes utcájában, mégis a központhoz közel kínálunk megvételre egy 992 m2 telken elhelyezkedő 83 m2 alapterületű, részben felújí...
Belső terület
83 m²
Telek terület
992 m²
Szobák
3

81.9 M Ft

kiemelt
Kiemelt
eladó családi ház, Erdőkertes

eladó családi ház

Pest megye, Erdőkertes
Erdőkertes csendes, nyugodt utcájában 83 m² alapterületű, téglaépítésű családi ház eladó, amely kiváló elrendezésének és tágas telkének köszönhetően ideális választás lehet családok számára vagy azokn...
Belső terület
83 m²
Telek terület
990 m²
Szobák
2+1

81.9 M Ft

alkalmi vétel
Alkalmi vétel
eladó új építésű családi ház, Erdőkertes

eladó új építésű családi ház

Pest megye, Erdőkertes, Topolyos
ERDŐKERTES CSENDES RÉSZÉN, 740 NM-ES TELEKRE ÉPÜLŐ, EGYSZINTES, BRUTTÓ 170, NETTÓ 114 NM-ES, NAPPALI + 4 SZOBÁS, DUPLA KOMFORTOS, 18 NM-ES FEDETT TERASSZAL, FELSZÍNI GÉPKOCSI BEÁLLÓVAL RENDELKEZŐ, DÉL...
Belső terület
114 m²
Telek terület
740 m²
Szobák
5

104.9 M Ft

eladó új építésű ikerház, Erdőkertes

eladó új építésű ikerház

Pest megye, Erdőkertes, Kincstáriligetek
Eladó ÚJ ÉPÍTÉSŰ, ENERGIATAKARÉKOS ikerház Erdőkertesen. BERUHÁZÓI ÁRON! Eladó Erdőkertesen, a Kincstári ligetekben, nettó 112 nm-es, praktikus belső kialakítású ikerház, gépkocsi beállóval, saj...
Belső terület
116 m²
Telek terület
578 m²
Szobák
5

104.9 M Ft

Új építésű!
Új építésű
eladó családi ház, Erdőkertes

eladó családi ház

Pest megye, Erdőkertes, Topolyos
Falusi idill Erdőkertesen – felújított otthon, ahol megáll az idő. Képzelje el, ahogy reggel a teraszon kortyolja a kávéját, a kertben madarak csicseregnek, a kemencében ropog a tűz, este pedig a ...
Belső terület
60 m²
Telek terület
860 m²
Szobák
2

54.5 M Ft

sürgős!
Sürgős
Pest megye - Erdőkertes
Pest megye - Erdőkertes
Pest megye - Erdőkertes
Pest megye - Erdőkertes
Pest megye - Erdőkertes
Pest megye - Erdőkertes
Pest megye - Erdőkertes