KAPCSOLATFELVÉTEL
Ingatlan jellege
családi ház
Belső terület
126 m²
Telek terület
1100 m²
Tájolás
délnyugat
Építési állapot
új
Építési mód
tégla
Szobák száma
5 szoba
Terasz
19 m²
Épület szintje
1.
Épült
2025
Ingatlan állapot
 
										kívül: új
belül: új									
Klíma
előkészítve
Szigetelés
15 cm
Ablak szerkezete
3 rétegű thermoplan
Fűtés
gázkazán
Komfort
duplakomfort
Parkolás
van fedetlen felszíni beálló
Közműállapot
 
								csatorna: bekötve										
								gáz: bekötve										
								villany: bekötve										
								víz: bekötve										
									
Energetika
nincs megadva
Pest megye, Erdőkertes, Háromház
Irányár
(753.17 E Ft/㎡)
Szobák
Terület
Telek terület
BERUHÁZÓI ÁRON!
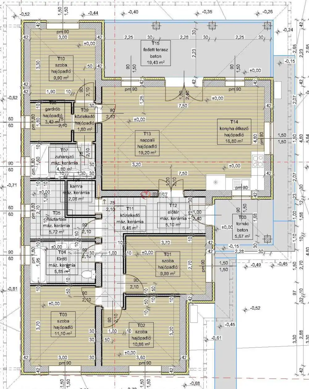
Eladó Erdőkertes Háromház részén nettó 113 nm-es, amerikai konyhás nappali + 4 szobás földszintes családi ház 1100 nm-es telekkel.
Jelenleg a telek tekinthető meg, így a BELSŐ TEREK KIALAKÍTÁSA – válaszfalak elhelyezése – igény szerint MÓDOSÍTHATÓ!
Az ingatlan térkialakítása kiváló, kényelmes életteret biztosít a mindennapokhoz:
- tágas amerikai konyhás nappali terasz (19 nm) kapcsolattal, 4 hálószoba, gardrób, 2 fürdőszoba, háztartási helyiség, kamra, előtér, közlekedő.
Az épület korszerű, a mai kor igényeinek megfelelő minőségi anyagokból és technológiával készül:
- a teherhordó falak 30-as Porotherm téglából, 15 cm-es hőszigeteléssel,
- betongerendás födém,
- 3 rétegű, hőszigetelt üvegezésű műanyag nyílászárók,
- fűtés gázkazán, padlófűtéssel, igény esetén – értékegyeztetéssel – hőszivattyús fűtés,
- 3 db klíma előkészítése,
- választható burkolatok, szaniterek, belső ajtók.
A vételár tartalmazza az utcafronti kerítést is.
Az alaprajz tájékoztató jellegű!
Az ingatlan aszfaltos utcából nyíló kis utcában, buszmegállótól egy perc sétányira fog épülni.
Ideális lehetőséget biztosít mindazok számára, akik a város közelségét és a nyugodt, zöld környezetet egyszerre szeretnék élvezni.
Hívjon a részletekért, a részletes műszaki tartalomért.
Irodánk ÚJ ÉPÍTÉSŰ ingatlanok specialistája, felkészült értékesítőkkel!
Jogi háttérrel (kedvező díjazással) és az egyik legjobb, bank semleges HITELKÖZVETÍTŐVEL segítjük vásárlását.
Hitelszakértőnk teljes körű ügyintézéssel áll Vevőink rendelkezésére, legyen szó OTTHON START, CSOK+, BABAVÁRÓ vagy a legjobb piaci hitelről.
Új építésű ingatlanjainkat BERUHÁZÓI ÁRON értékesítjük!
Amennyiben értékesíteni kívánja ingatlanát, irodánk egyedi, kedvező ajánlattal áll rendelkezésére!
Erdőkertes Veresegyház közvetlen szomszédságában fekvő, dinamikusan fejlődő, kellemes, nyugodt település. A mindennapi élethez szükséges bevásárlási lehetőség, iskola, óvoda, orvosi rendelő, gyógyszertár mind megtalálható, de a jó ellátottságot biztosítja még Veresegyház közelsége, ahol számos bevásárlási és kikapcsolódási lehetőség (üzletházak, piac, színház, horgásztó, medvepark, termálfürdő stb.) található.
belül: új
gáz: bekötve
villany: bekötve
víz: bekötve
Pest megye, Erdőkertes, Háromház
 
							+36 20 334 3328
arenaingatlanok@gmail.com
KAPCSOLATFELVÉTEL
Ingatlan jellege
családi ház
Belső terület
126 m²
Telek terület
1100 m²
Tájolás
délnyugat
Építési állapot
új
Építési mód
tégla
Szobák száma
5 szoba
Terasz
19 m²
Épület szintje
1.
Épült
2025
Ingatlan állapot
 
									kívül: új
belül: új								
Klíma
előkészítve
Szigetelés
15 cm
Ablak szerkezete
3 rétegű thermoplan
Fűtés
gázkazán
Komfort
duplakomfort
Parkolás
van fedetlen felszíni beálló
Közműállapot
 
							csatorna: bekötve									
							gáz: bekötve									
							villany: bekötve									
							víz: bekötve									
								
Energetika
nincs megadva
 
								 
											 
																 
										 
										 
										 
										 
										 
										 
										 
										 
						
					