Eladó téglalakás - Pécs

KAPCSOLAT
Boros Linda


+36 70 521

blhomeandfinance@

Az időpont kérés naptár ikonja
IDŐPONTOT KÉREK
A visszahívás kérés telefon ikonja egy azt körbe ölelő nyíllal
VISSZAHÍVÁST KÉREK
Ajánlom egy ismerősömnek ikon
AJÁNLOM EGY ISMERŐSÖMNEK
Facebook megosztás ikon
MEGOSZTÁS

KAPCSOLATFELVÉTEL

Küldés

Az üzenetet sikeresen elküldtük!
Hiba történt!
INGATLAN ADATAI

Ingatlan jellege

téglalakás

Belső terület

80 m²

Tájolás

dél

Építési állapot

használt

Építési mód

tégla

Szobák száma

3 szoba

Kert

(saját kert)

Emelet

földszint.

Épület szintje

2.

Épült

kb. 1890

Lift

nincs

Ingatlan állapot

kívül: átlagos
belül: átlagos

Ablak szerkezete

hagyományos

Fűtés

gázkazán

Komfort

összkomfort

Kilátás

utcára, udvarra

Energetika

nincs

Az időpont kérés naptár ikonja
HTML
Az időpont kérés naptár ikonja
PDF
Eladó téglalakás
Ingatlan azonosító:
47_tw

Baranya megye, Pécs, (Belváros), Dischka Győző utca

Irányár

94.9 M Ft
(1.19 M Ft/㎡)

Szobák

3 szoba

Emelet

földszint

Terület

80 m²
INGATLAN LEÍRÁSA
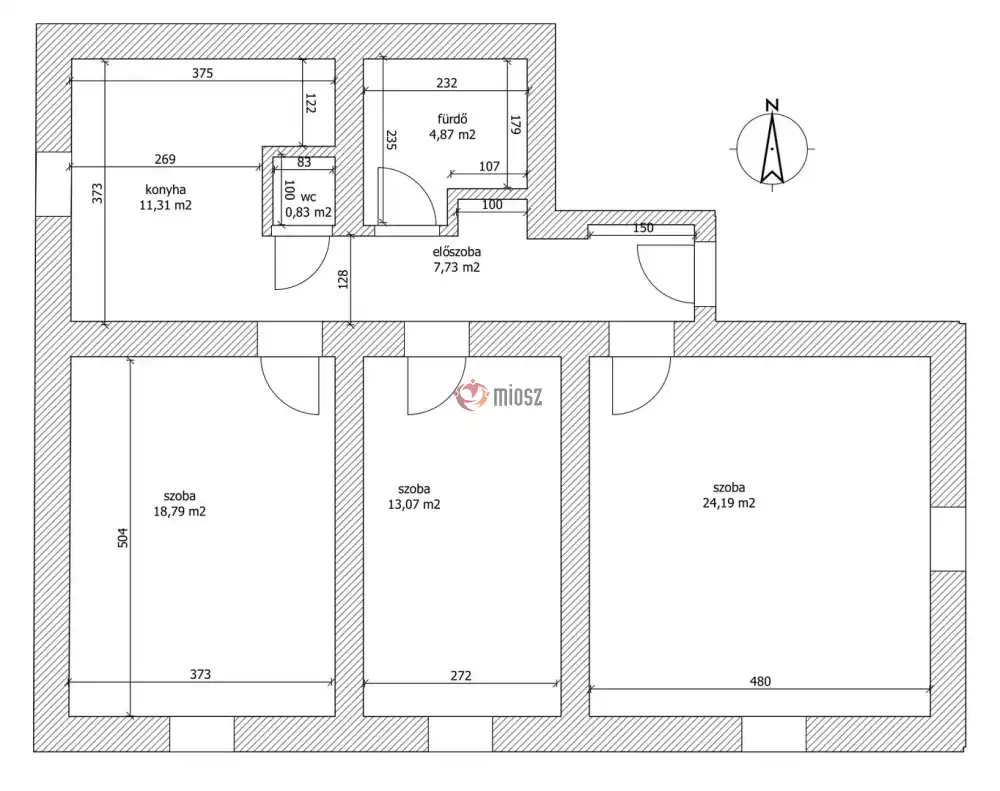
Eladásra kínálok Pécs belvárosban, a Dischka Győző utcában egy 3 szobás tégla lakást.

Az ingatlan egy 4 lakásos társasház földszintjén helyezkedik el. A lakás 80 m2, 3,5 méteres belmagassággal, és tágas szobákkal lett kialakítva.

Minden helyiség a folyosóról nyílik. A lakásba belépve a bal oldalon egymás után kapott helyet a 3, különnyíló szoba. A folyósó végén található a konyha-étkező, és balról a fürdő és illemhelyiség.

Az ingatlan műemlék jellegű, fa nyílászárókkal ellátott.
Fűtése gázkazánnal megoldott.

A társasházhoz tartozik továbbá egy nagy udvar, melyben kialakításra került fedett autóbeálló is.

Saját tároló, közös pince és közös, beépítetlen tetőtér is rendelkezésre áll.

Lakásbeszámítás max. 50 m ft-ig.

Amennyiben hitelre lenne szüksége a megvásárláshoz, állok rendelkezésre, mint független pénzügyi szakértő.

További kérdés,megtekintés esetén várom hívását a megadott telefonszámon.

INGATLAN ADATAI

Ingatlan jellege
téglalakás
Belső terület
80 m²
Tájolás
dél
Építési állapot
használt
Építési mód
tégla
Szobák száma
3 szoba
Kert
(saját kert)
Emelet
földszint.
Épület szintje
2.
Épült
kb. 1890
Lift
nincs
Ingatlan állapot
kívül: átlagos
belül: átlagos
Ablak szerkezete
hagyományos
Fűtés
gázkazán
Komfort
összkomfort
Kilátás
utcára, udvarra
Energetika
nincs
TÉRKÉP

Baranya megye, Pécs, Dischka Győző utca

KAPCSOLAT
Boros Linda
Boros Linda


+36 70 521 0521

blhomeandfinance@gmail.com

KAPCSOLAT
Boros Linda

+36 70 521

blhomeandfinance@

Az időpont kérés naptár ikonja
IDŐPONTOT KÉREK
A visszahívás kérés telefon ikonja egy azt körbe ölelő nyíllal
VISSZAHÍVÁST KÉREK
Ajánlom egy ismerősömnek ikon
AJÁNLOM EGY ISMERŐSÖMNEK
Facebook megosztás ikon
MEGOSZTÁS

KAPCSOLATFELVÉTEL

Küldés

Az üzenetet sikeresen elküldtük!
Hiba történt!
INGATLAN ADATAI

Ingatlan jellege

téglalakás

Belső terület

80 m²

Tájolás

dél

Építési állapot

használt

Építési mód

tégla

Szobák száma

3 szoba

Kert

(saját kert)

Emelet

földszint.

Épület szintje

2.

Épült

kb. 1890

Lift

nincs

Ingatlan állapot

kívül: átlagos
belül: átlagos

Ablak szerkezete

hagyományos

Fűtés

gázkazán

Komfort

összkomfort

Kilátás

utcára, udvarra

Energetika

nincs

Az időpont kérés naptár ikonja
HTML
Az időpont kérés naptár ikonja
PDF

Hasonló ingatlan hírdetések

Eladó tégla-, vagy panellakás hirdetést keres Pécs területén?
Tekintse meg további ajánlatainkat!

eladó téglalakás, Pécs

eladó téglalakás

Baranya megye, Pécs, (Bálics), Boszorkány utca
BEFEKTETŐK figyelmébe! Eladó Pécs frekventált, Egyetemvárosi részében, közvetlen a Pécsi Tudományegyetem Műszaki Karának szomszédságában található, új építésű lakóparkban egy kiadási célra, de akár ...
Belső terület
60 m²
Szobák
3
Emelet
2

80 M Ft

kiemelt
Kiemelt
eladó téglalakás, Pécs

eladó téglalakás

Baranya megye, Pécs, (Bálics), Boszorkány utca
Befektetők figyelmébe! Pécsett, Egyetemvárosi lokációban a Golden Corner Lakóparkban kínálunk eladásra egy világos, új építésű, teljesen berendezett és gépesített lakást. Jelenleg a lakásban bérlő l...
Belső terület
41 m²
Szobák
2
Emelet
3

59.9 M Ft

Új építésű!
Új építésű
eladó téglalakás, Pécs

eladó téglalakás

Baranya megye, Pécs, Pákolitz István utca
Eladásra kínálok Pécsen, a Pákolitz utcában egy 2 szobás, mélyföldszinti lakást. Az ingatlan friss felújításon esett át, mely érintette az ablakokat, bejárati ajtót, beltéri ajtókat, meleg burkola...
Belső terület
52 m²
Szobák
2
Emelet
földszint

26.99 M Ft

eladó téglalakás, Pécs

eladó téglalakás

Baranya megye, Pécs, Belváros
Befektetési lehetőség Pécs belvárosában! Pécsett, az Árkád és a Pécsi Tudományegyetem több karának közvetlen szomszédságában eladó egy felújított, földszinti lakás. Két külön helyrajzi számon ny...
Belső terület
110 m²
Szobák
3
Emelet
földszint

65 M Ft

eladó téglalakás, Pécs

eladó téglalakás

Baranya megye, Pécs, Belváros
Pécs történelmi belvárosában, a Széchenyi tér közvetlen szomszédságában eladó egy sokoldalúan használható, kifogástalan műszaki és esztétikai állapotú, nagyteraszos, háromszintes ingatlan, négy szobáv...
Belső terület
115 m²
Szobák
4
Emelet
földszint

85.9 M Ft

alkalmi vétel
Alkalmi vétel
eladó téglalakás, Pécs

eladó téglalakás

Baranya megye, Pécs, (Belváros), Könyök utca
ÁRCSÖKKENÉS!! Tégla lakás Pécs történelmi belvárosában, udvarkapcsolattal eladó. A földszinti, 55 m²-es, két hálószobás lakás a Könyök utcában, csendes környezetben ,akadálymentesített ingatlan, ame...
Belső terület
55 m²
Szobák
2+1
Emelet
földszint

26 M Ft

eladó téglalakás, Pécs

eladó téglalakás

Baranya megye, Pécs, (Belváros), Munkácsy Mihály utca
Eladó belváros központjában új építésű modern lakóparkban a Centrál Ligetben parkosított telken fekvő 2021 ben átadott szigetelt társasházban, liftes épületben2 hálószoba+ amerikai konyhás nappalis la...
Belső terület
71 m²
Szobák
3
Emelet
1

104.9 M Ft

Baranya megye - Pécs
Baranya megye - Pécs
Baranya megye - Pécs
Baranya megye - Pécs
Baranya megye - Pécs
Baranya megye - Pécs
Baranya megye - Pécs
Baranya megye - Pécs
Baranya megye - Pécs
Baranya megye - Pécs
Baranya megye - Pécs
Baranya megye - Pécs
Baranya megye - Pécs
Baranya megye - Pécs
Baranya megye - Pécs
Baranya megye - Pécs
Baranya megye - Pécs