Eladó téglalakás - Miskolc

KAPCSOLAT
Fróna Rita


+36 20 505

frona.rita@

Az időpont kérés naptár ikonja
IDŐPONTOT KÉREK
A visszahívás kérés telefon ikonja egy azt körbe ölelő nyíllal
VISSZAHÍVÁST KÉREK
Ajánlom egy ismerősömnek ikon
AJÁNLOM EGY ISMERŐSÖMNEK
Facebook megosztás ikon
MEGOSZTÁS

KAPCSOLATFELVÉTEL

Küldés

Az üzenetet sikeresen elküldtük!
Hiba történt!
INGATLAN ADATAI

Ingatlan jellege

téglalakás

Belső terület

58 m²

Tájolás

kelet

Építési állapot

használt

Építési mód

csúsztatott zsalu

Szobák száma

3 szoba

Szobák elhelyezkedése

külön nyílik min. 2 szoba

Erkély

8 m²

Emelet

9.

Épület szintje

10.

Épült

1979

Akadálymentes

igen

Lift

van

Ingatlan állapot

kívül: jó
belül: felújított

Klíma

előkészítve

Szigetelés

5 cm

Ablak szerkezete

2 rétegű thermoplan

Fűtés

gázkonvektor

Komfort

összkomfort

Kilátás

utcára

Energetika

nincs megadva

Az időpont kérés naptár ikonja
HTML
Az időpont kérés naptár ikonja
PDF
Eladó téglalakás
Ingatlan azonosító:
206_idin

Borsod-Abaúj-Zemplén megye, Miskolc

Irányár

32.9 M Ft
(567.24 E Ft/㎡)

Szobák

3 szoba

Emelet

9

Terület

58 m²
INGATLAN LEÍRÁSA
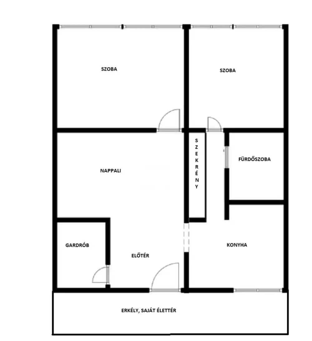
Miskolcon, a MÁV rendelő melletti társasházban eladó egy magas emeleti, panorámás, teljes körűen felújított és átalakított 58 nm-es lakás. Az elmúlt időszakban, a házban több lakás is gazdát cserélt, fiatalok költöznek az épületbe, a környezet rendezett. A közlekedés kiváló, a belváros és a főbb csomópontok gyorsan elérhetők.
Az ingatlan műszaki és esztétikai felújításon esett át: a villany- és vízhálózat megújult, a fürdőszoba átalakításra került, minden burkolat és szaniter új. A meleg vizet gázüzemű bojler biztosítja, a fűtés gázkonvektoros.
Az ablakok műanyag nyílászárókra lettek cserélve, a padlóburkolat laminált parketta. A világos, nagy ablakos konyhaétkezésre is alkalmas, beépített gázfőzőlappal, villanysütővel és szellőzőcsőbe kivezetett szagelszívóval.
Két teljes értékű szoba került kialakításra, így külön nappali is helyet kapott. A lakásból nyílik egy 4 m²-es tároló vagy gardrób helyiség, valamint a lakás része egy 2 méter hosszú, 60 cm mély, felújított beépített gardróbszekrény is. A fürdőszobában zuhanyzó, WC, kézmosó és elektromos törölközőszárító található, a mosógép kiállása megoldott. Klímának az elektromos vezeték kiépítésre került mindkét szobában.
A lakáshoz egy 8 m²-es erkély is tartozik.
A közös költség 13 000 Ft havonta.
Hitelképes, tehermentes ingatlan. Nézze meg, és tegyen ajánlatot!


INGATLAN ADATAI

Ingatlan jellege
téglalakás
Belső terület
58 m²
Tájolás
kelet
Építési állapot
használt
Építési mód
csúsztatott zsalu
Szobák száma
3 szoba
Szobák elhelyezkedése
külön nyílik min. 2 szoba
Erkély
8 m²
Emelet
9.
Épület szintje
10.
Épült
1979
Akadálymentes
igen
Lift
van
Ingatlan állapot
kívül: jó
belül: felújított
Klíma
előkészítve
Szigetelés
5 cm
Ablak szerkezete
2 rétegű thermoplan
Fűtés
gázkonvektor
Komfort
összkomfort
Kilátás
utcára
Energetika
nincs megadva
TÉRKÉP

Borsod-Abaúj-Zemplén megye, Miskolc

KAPCSOLAT
Fróna Rita
Fróna Rita


+36 20 505 7400

frona.rita@3ingatlan.hu

KAPCSOLAT
Fróna Rita

+36 20 505

frona.rita@

Az időpont kérés naptár ikonja
IDŐPONTOT KÉREK
A visszahívás kérés telefon ikonja egy azt körbe ölelő nyíllal
VISSZAHÍVÁST KÉREK
Ajánlom egy ismerősömnek ikon
AJÁNLOM EGY ISMERŐSÖMNEK
Facebook megosztás ikon
MEGOSZTÁS

KAPCSOLATFELVÉTEL

Küldés

Az üzenetet sikeresen elküldtük!
Hiba történt!
INGATLAN ADATAI

Ingatlan jellege

téglalakás

Belső terület

58 m²

Tájolás

kelet

Építési állapot

használt

Építési mód

csúsztatott zsalu

Szobák száma

3 szoba

Szobák elhelyezkedése

külön nyílik min. 2 szoba

Erkély

8 m²

Emelet

9.

Épület szintje

10.

Épült

1979

Lift

van

Ingatlan állapot

kívül: jó
belül: felújított

Klíma

előkészítve

Szigetelés

5 cm

Ablak szerkezete

2 rétegű thermoplan

Fűtés

gázkonvektor

Komfort

összkomfort

Kilátás

utcára

Energetika

nincs megadva

Az időpont kérés naptár ikonja
HTML
Az időpont kérés naptár ikonja
PDF

Hasonló ingatlan hírdetések

Eladó tégla-, vagy panellakás hirdetést keres Miskolc területén?
Tekintse meg további ajánlatainkat!

eladó panellakás, Miskolc

eladó panellakás

Borsod-Abaúj-Zemplén megye, Miskolc, (Avas II. ütem), Nyíri Dániel utca
Világos, erkélyes lakás eladó Miskolcon – az Egyetem közelében! Miskolcon, az Egyetem közvetlen közelében kínálunk megvételre egy 5. emeleti, 2 szobás, nagy erkélyes társasházi lakást, amely ideáli...
Belső terület
55 m²
Szobák
2
Emelet
5

26.9 M Ft

eladó panellakás, Miskolc

eladó panellakás

Borsod-Abaúj-Zemplén megye, Miskolc, (Diósgyőr), Kuruc utca
Miskolc–Diósgyőr egyik legszebb részén, a diósgyőri várra és a Bükkre néző örök panorámával, tehermentesen kínálok megvételre egy teljes körűen felújított, belsőépítész által megálmodott, exkluzív lak...
Belső terület
37 m²
Szobák
1+1
Emelet
6

45.5 M Ft

eladó panellakás, Miskolc

eladó panellakás

Borsod-Abaúj-Zemplén megye, Miskolc, Belváros
Miskolc belvárosában, a Városháztértől mindössze öt perc sétára kínálok megvételre egy teljes körűen felújított, belsőépítész által megálmodott, valóban egyedi hangulatú lakást, amely nemcsak minőségé...
Belső terület
35 m²
Szobák
1+1
Emelet
3

49.5 M Ft

eladó téglalakás, Miskolc

eladó téglalakás

Borsod-Abaúj-Zemplén megye, Miskolc, (Kilián Észak), Csortos Gyula utca
Miskolc Észak-Kilián városrészében, parkos környezetben, kiváló lakóközösségben eladó egy első emeleti, teljes körűen felújított és átalakított, háromszobás lakás. Az ingatlan modern elrendezésű: ...
Belső terület
50 m²
Szobák
3
Emelet
1

46.9 M Ft

eladó téglalakás, Miskolc

eladó téglalakás

Borsod-Abaúj-Zemplén megye, Miskolc, (Bodótető), Dóczy József utca
Örökpanorámás, mégis zöldövezeti otthon eladó Miskolc egyik legkedveltebb részén, a Bodótetőn. Ez az 59 nm-es, földszinti, jó állapotú téglalakás csendes, rendezett környezetben található, előkertt...
Belső terület
59 m²
Szobák
3
Emelet
magasföldszint

47.8 M Ft

eladó téglalakás, Miskolc

eladó téglalakás

Borsod-Abaúj-Zemplén megye, Miskolc, (Győri kapu Észak), Gálffy Ignác utca
Zöld környezet és nyugalom kedvelőinek ajánlom ezt a kivételesen világos, két irányba tájolt lakást, amely kellemes kilátással és egész nap érezhető természetes fénnyel várja új tulajdonosát. A dé...
Belső terület
63 m²
Szobák
3
Emelet
4

32.5 M Ft

eladó panellakás, Miskolc

eladó panellakás

Borsod-Abaúj-Zemplén megye, Miskolc, (Avas I. ütem), Testvérvárosok útja
Miskolc frekventált részén, az Avason, a Testvérvárosok útján eladó egy 53 nm-es, két éve teljes körűen felújított, rendkívül élhető lakás. A felújítás során megújult a víz- és elektromos hálózat,...
Belső terület
53 m²
Szobák
2
Emelet
7

33.4 M Ft

eladó téglalakás, Miskolc

eladó téglalakás

Borsod-Abaúj-Zemplén megye, Miskolc
Befektetőknek, illetve együtt, mégis külön költözőknek ideális lehetőség Miskolcon. A MÁV rendelő melletti épület 9. emeletén eladó két, azonos szinten elhelyezkedő, de nem egymás melletti lakás. Mind...
Belső terület
116 m²
Szobák
6
Emelet
9

65 M Ft

Borsod-Abaúj-Zemplén megye - Miskolc
Borsod-Abaúj-Zemplén megye - Miskolc
Borsod-Abaúj-Zemplén megye - Miskolc
Borsod-Abaúj-Zemplén megye - Miskolc
Borsod-Abaúj-Zemplén megye - Miskolc
Borsod-Abaúj-Zemplén megye - Miskolc
Borsod-Abaúj-Zemplén megye - Miskolc
Borsod-Abaúj-Zemplén megye - Miskolc
Borsod-Abaúj-Zemplén megye - Miskolc
Borsod-Abaúj-Zemplén megye - Miskolc
Borsod-Abaúj-Zemplén megye - Miskolc
Borsod-Abaúj-Zemplén megye - Miskolc
Borsod-Abaúj-Zemplén megye - Miskolc
Borsod-Abaúj-Zemplén megye - Miskolc
Borsod-Abaúj-Zemplén megye - Miskolc
Borsod-Abaúj-Zemplén megye - Miskolc
Borsod-Abaúj-Zemplén megye - Miskolc