KAPCSOLATFELVÉTEL
Ingatlan jellege
téglalakás
Belső terület
58 m²
Tájolás
délkelet
Építési állapot
újszerű
Építési mód
tégla
Szobák száma
2 szoba
Emelet
földszint.
Épület szintje
1.
Épült
1970
Akadálymentes
részlegesen
Lift
van
Ingatlan állapot
kívül: felújított
belül: felújított
Klíma
van
Ablak szerkezete
3 rétegű thermoplan
Fűtés
cirko
Komfort
összkomfort
Parkolás
van fedetlen felszíni beálló
Kilátás
kertre
Energetika
A++ 2024:
Heves megye, Hatvan, Óhatvan
Irányár
(750 E Ft/㎡)
Szobák
Emelet
Terület
A 10 lakásos társasház egy teljes körű felújításon fog átesni, ami tartalmazza:
-15 cm szigetelés
-Tetőcsere
-új nyílászárók
-Elektromos hallózat felújítása
-vakolás
-szaniterek
-burkolás
-fűtés (lakásonként 1 kondenzációs gázkazán hőleadás padlófűtés)
-klíma (lakásonként 1 db)
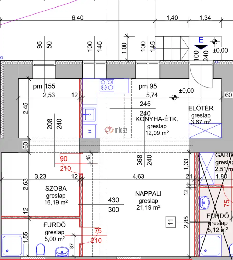
Lakás helyiségei: előtér, konyha/étkező, nappali, szoba és fürdőszoba.
Bővebb műszaki tartalmat e-mailen küldök.
ZÁRT LAKÓPARK, mindegyik lakáshoz 1 parkolóhelyet biztosítunk.
Az lakások befektetőknek is ajánlom, hiszen Hatvan folyamatosan fejlődő város, sokan keresik a jó minőségű felújított ingatlanokat bérlés céljára.
A referencialakásokat illetve az új lakóparkot rugalmasan akár hétvégén is megtekinthetők, előre egyeztetett időpontban.
belül: felújított
Heves megye, Hatvan, Óhatvan

+36 70 396 5533
almaestatekft@gmail.com
KAPCSOLATFELVÉTEL
Ingatlan jellege
téglalakás
Belső terület
58 m²
Tájolás
délkelet
Építési állapot
újszerű
Építési mód
tégla
Szobák száma
2 szoba
Emelet
földszint.
Épület szintje
1.
Épült
1970
Lift
van
Ingatlan állapot
kívül: felújított
belül: felújított
Klíma
van
Ablak szerkezete
3 rétegű thermoplan
Fűtés
cirko
Komfort
összkomfort
Parkolás
van fedetlen felszíni beálló
Kilátás
kertre
Energetika
A++ 2024: