Eladó téglalakás - Dunakeszi

KAPCSOLAT
Erdősi Tamás


+36 30 518

erdosi.tamas.rds@

Az időpont kérés naptár ikonja
IDŐPONTOT KÉREK
A visszahívás kérés telefon ikonja egy azt körbe ölelő nyíllal
VISSZAHÍVÁST KÉREK
Ajánlom egy ismerősömnek ikon
AJÁNLOM EGY ISMERŐSÖMNEK
Facebook megosztás ikon
MEGOSZTÁS

KAPCSOLATFELVÉTEL

Küldés

Az üzenetet sikeresen elküldtük!
Hiba történt!
INGATLAN ADATAI

Ingatlan jellege

téglalakás

Belső terület

303 m²

Tájolás

délnyugat

Építési állapot

használt

Építési mód

tégla

Szobák száma

7 szoba

Szobák elhelyezkedése

külön nyílik min. 2 szoba

Kert

(saját kert)

Terasz

23.7 m²

Emelet

nincs emelet.

Épület szintje

3.

Épült

1985

Lift

nincs

Ingatlan állapot

kívül: jó
belül: jó

Fűtés

gázkazán

Komfort

duplakomfort

Parkolás

van önálló garázs

Kilátás

kertre

Energetika

nincs megadva

Az időpont kérés naptár ikonja
HTML
Az időpont kérés naptár ikonja
PDF
Eladó téglalakás
Ingatlan azonosító:
12654_rds

Pest megye, Dunakeszi, Tábor utca

Irányár

139.9 M Ft
(461.72 E Ft/㎡)

Szobák

7 szoba

Terület

303 m²
INGATLAN LEÍRÁSA
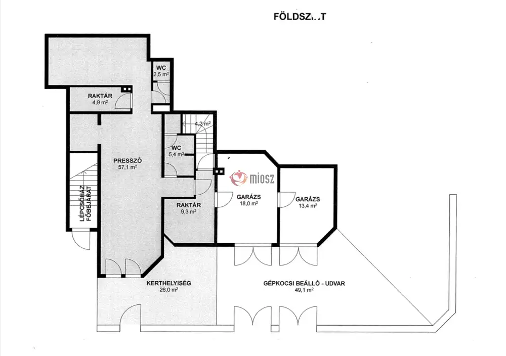
Dunakeszi kellemes, kertvárosias részén eladó egy többgenerációssá alakítható, az épület kialakításának és a nappali légtérének köszönhetően kuriózumnak számító kertkapcsolatos ingatlan garázsokkal, üzlethelyiséggel és az épület előtt több parkolási lehetőséggel.

A számtalan lehetőséget magában rejtő ingatlan három szinten helyezkedik el, belső hasznos alapterülete összesen 303 négyzetméter. Ennek elosztását tekintve, az alsó szinten 95.5 négyzetméteren található egy vendéglátó helyiség a hozzá kapcsolódó terekkel, valamint 31.4 négyzetméteren két darab garázs, a lakótér belső két szintes, kiváló megközelítésű, a földszintről is külön bejárattal rendelkezik, de a szomszéd lakással közös társasházi bejárata is rendelkezésre áll, így igény szerint a földszintről teljes mértékben elszeparálható. A lakótér 176.1 négyzetméter, tartozik még hozzá 2 db összesen 23.7 négyzetméteres kellemes terasz. Elrendezésénél a tágas terek mellett a kényelmes méretű, intim szobák kialakítása volt a legfőbb szempont, ennek köszönhetően kialakításra került egy tágas belmagasságú étkező és nappali, három hálószoba, konyha, két fürdőszoba, két külön mellékhelyiség, különleges hangulatú galéria, közlekedő, lépcsőház és gardrób.

Az épület beton falazattal és részben hőszigeteléssel ellátva épült 1985-ben. A nyílászárói részben fa, részben műanyag típusúak, a fűtésről pedig gázcirkó gondoskodik padlófűtéssel és radiátorokkal. Az ingatlanhoz tartozik még egy 75 négyzetméteres területen elhelyezkedő előkert és autóbeálló. Az épület hátsó kertje a társasház osztatlan közös tulajdona, szépen rendezett és rendszeresen karbantartott.

Az ingatlan a város központi részén, kiváló megközelítéssel helyezkedik el, az M2-es autópálya 3 perc alatt elérhető autóval, a gyártelepi vasútállomás pedig sétatávolságon belül található.

Vételára: 139.900.000 Ft.

Dunakeszi kiváló infrastruktúrájú, folyamatosan bővülő és fejlődő város. Az északi agglomerációban, a Duna bal partján helyezkedik el. A város mellett húzódó Duna parton kövezett, hangulatos sétányt építettek ki kávézókkal, éttermekkel és szabadstanddal.
Egyik fő vonzereje, hogy nagyon könnyen megközelíthető, és mindössze 15 percre található a fővárostól. Az M2-es autóút pár perc alatt elérhető az ingatlantól. A Megyeri-híd miatt jó összeköttetésben van a budai oldallal is. Tömegközlekedése is kiváló, vonattal a Nyugati Pályaudvar negyed óra alatt elérhető, ezen kívül autóbusz és távolsági busz is rendelkezésre áll.

INGATLAN ADATAI

Ingatlan jellege
téglalakás
Belső terület
303 m²
Tájolás
délnyugat
Építési állapot
használt
Építési mód
tégla
Szobák száma
7 szoba
Szobák elhelyezkedése
külön nyílik min. 2 szoba
Kert
(saját kert)
Terasz
23.7 m²
Emelet
nincs emelet.
Épület szintje
3.
Épült
1985
Lift
nincs
Ingatlan állapot
kívül: jó
belül: jó
Fűtés
gázkazán
Komfort
duplakomfort
Parkolás
van önálló garázs
Kilátás
kertre
Energetika
nincs megadva
TÉRKÉP

Pest megye, Dunakeszi, Tábor utca

KAPCSOLAT
Erdősi Tamás
Erdősi Tamás


+36 30 518 2620

erdosi.tamas.rds@gmail.com

KAPCSOLAT
Erdősi Tamás

+36 30 518

erdosi.tamas.rds@

Az időpont kérés naptár ikonja
IDŐPONTOT KÉREK
A visszahívás kérés telefon ikonja egy azt körbe ölelő nyíllal
VISSZAHÍVÁST KÉREK
Ajánlom egy ismerősömnek ikon
AJÁNLOM EGY ISMERŐSÖMNEK
Facebook megosztás ikon
MEGOSZTÁS

KAPCSOLATFELVÉTEL

Küldés

Az üzenetet sikeresen elküldtük!
Hiba történt!
INGATLAN ADATAI

Ingatlan jellege

téglalakás

Belső terület

303 m²

Tájolás

délnyugat

Építési állapot

használt

Építési mód

tégla

Szobák száma

7 szoba

Szobák elhelyezkedése

külön nyílik min. 2 szoba

Kert

(saját kert)

Terasz

23.7 m²

Emelet

nincs emelet.

Épület szintje

3.

Épült

1985

Lift

nincs

Ingatlan állapot

kívül: jó
belül: jó

Fűtés

gázkazán

Komfort

duplakomfort

Parkolás

van önálló garázs

Kilátás

kertre

Energetika

nincs megadva

Az időpont kérés naptár ikonja
HTML
Az időpont kérés naptár ikonja
PDF

Hasonló ingatlan hírdetések

Eladó tégla-, vagy panellakás hirdetést keres Dunakeszi területén?
Tekintse meg további ajánlatainkat!

eladó téglalakás, Dunakeszi

eladó téglalakás

Pest megye, Dunakeszi, Konrád Ignác
Dunakeszin Kossuth Lajos utca közeli lakóparkban eladó tetőtéri 1,5 szobás műterem besorolású, bruttó 40 m2-es világos, jó elosztású, cirkó fűtéses lakás. Helyiségei amerikai konyhás nappali/műte...
Belső terület
32 m²
Szobák
1+1
Emelet
2

41.9 M Ft

Pest megye - Dunakeszi
Pest megye - Dunakeszi
Pest megye - Dunakeszi
Pest megye - Dunakeszi
Pest megye - Dunakeszi
Pest megye - Dunakeszi
Pest megye - Dunakeszi
Pest megye - Dunakeszi
Pest megye - Dunakeszi
Pest megye - Dunakeszi
Pest megye - Dunakeszi
Pest megye - Dunakeszi
Pest megye - Dunakeszi
Pest megye - Dunakeszi
Pest megye - Dunakeszi
Pest megye - Dunakeszi
Pest megye - Dunakeszi
Pest megye - Dunakeszi
Pest megye - Dunakeszi
Pest megye - Dunakeszi
Pest megye - Dunakeszi
Pest megye - Dunakeszi
Pest megye - Dunakeszi
Pest megye - Dunakeszi
Pest megye - Dunakeszi
Pest megye - Dunakeszi
Pest megye - Dunakeszi
Pest megye - Dunakeszi
Pest megye - Dunakeszi
Pest megye - Dunakeszi
Pest megye - Dunakeszi