Eladó téglalakás - Budapest, VIII. kerület

azonnal költözhető
Azonnal költözhető
KAPCSOLAT
Feketéné Gyöngyösi Ildikó


+36 20 517

gyongyosi.ildiko@

Az időpont kérés naptár ikonja
IDŐPONTOT KÉREK
A visszahívás kérés telefon ikonja egy azt körbe ölelő nyíllal
VISSZAHÍVÁST KÉREK
Ajánlom egy ismerősömnek ikon
AJÁNLOM EGY ISMERŐSÖMNEK
Facebook megosztás ikon
MEGOSZTÁS

KAPCSOLATFELVÉTEL

Küldés

Az üzenetet sikeresen elküldtük!
Hiba történt!
INGATLAN ADATAI

Ingatlan jellege

téglalakás

Belső terület

94 m²

Tájolás

északkelet

Panoráma

utcára néző

Építési állapot

használt

Építési mód

tégla

Szobák száma

3+1 félszoba

Szobák elhelyezkedése

külön nyílik min. 2 szoba

Emelet

földszint.

Épület szintje

4.

Épült

1890

Lift

van

Ingatlan állapot

kívül: felújított
belül: jó

Fűtés

cirko

Komfort

összkomfort

Kilátás

utcára

Energetika

nincs megadva

Az időpont kérés naptár ikonja
HTML
Az időpont kérés naptár ikonja
PDF
Eladó téglalakás
Ingatlan azonosító:
40_gl

Budapest, VIII. kerület,

Irányár

87.1 M Ft
(926.6 E Ft/㎡)

Szobák

3+1 félszoba

Emelet

földszint

Terület

94 m²
INGATLAN LEÍRÁSA
NAGY BELMAGASSÁG, 2 GALÉRIA

Szeretne Ön Budapest megújult, kitűnő közlekedéssel és ellátottsággal rendelkező városnegyedében, zöld park mellett, egy csendes utcában élni? Amennyiben igen, akkor Önnek ajánlom ezt a háromemeletes társasházban elhelyezkedő, 94 m2-es földszinti lakást, mely a II. János Pál pápa tér közvetlen közelében fekszik.

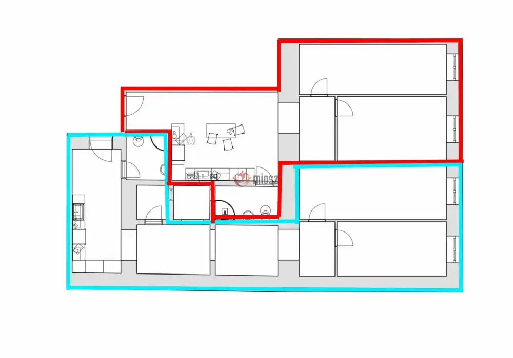
Az ingatlan elosztása kitűnő, előszobával, 2 egész szobával, egy hálófülkével, egy konyhával, egy fürdőszobával, egy WC-vel és 2 db állógalériával rendelkezik. Az alaprajz igény szerint alakítható, akár két külön bejáratú lakást is tervezhet az új tulajdonos.

A lakásba belépve tágas előszoba fogad minket.

A nappali és az egyik szoba a polgári lakásokra jellemző NAGYVONALÚ TEREKkel rendelkezik, mindkét szoba TÁGAS, VILÁGOS, hatalmas ablakaik a Szilágyi utcára néznek.

A szobából közvetlenül a SAROKKÁDdal felszerelt fürdőszobába is be tudunk lépni. A fürdőszoba felett galériát alakítottak ki, ahol akár infraszauna beszerelésére is lehetőség van.

A konyha az előszobából nyílik, felette szintén galéria húzódik. Mindkét galéria ÁLLÓGALÉRIA, 2 méter feletti magassággal. A konyhából van lehetőségünk a hálófülkét megközelíteni.
A lakás fűtéséről gázcirkó gondoskodik, a szobákban radiátorok biztosítják a meleget.

Az ablakok fából készültek, dupla üvegezésűek, a villanyvezetékek cseréje megtörtént.

Szívből ajánlom ezt a lakást nagyobb családoknak is, hiszen praktikus elosztása és mérete miatt kényelmes otthona lehet akár több gyermekkel rendelkező párok részére.

BEFEKTETŐKÉNT is kitűnő választás ez az ingatlan, hiszen belvárosi elhelyezkedése és mérete miatt gyorsan, magas áron kiadható. A lakás praktikus elrendezése és 94m2-es alapterülete lehetővé teszi KÉT KÜLÖNÁLLÓ LAKÁS KIALAKÍTÁSÁT is, (külön bejárattal) így befektetése még hamarabb megtérülhet.

Amennyiben RENDELŐT, vagy IRODÁT alakítana ki, azt is megteheti, hiszen az előszoba tökéletesen alkalmas recepciónak, ügyfélvárónak.

A 4,35 méteres belmagasság további GALÉRIÁK LÉTESÍTÉSÉT teszi lehetővé.

Az ingatlan PER-, TEHER,- és IGÉNYMENTES, egy tulajdonosa van, a vételár kifizetése után RÖVID HATÁRIDŐVEL KÖLTÖZHETŐ.

A TÁRSASHÁZ a közelmúltban FELÚJÍTÁSON ESETT ÁT. A KÜLSŐ HOMLOKZATot felújították, a FÜGGŐFOLYOSÓK új vasalatot és betonozást kaptak, a pincefödémet és a belső udvart is újrabetonozták.

KITŰNŐ ELHELYEZKEDÉSének köszönhetően metró, busz és villamosmegállók, sportolási és bevásárlási lehetőségek a közvetlen közelben, rövid sétával elérhetők. A megújult, frissen gyepesített II. János Pál pápa tér egy olyan zöld felület a város szívében, ahol mindenki otthon érezheti magát, akár sportolásra, (futókör, fitness gépek, streetball és kispályás focipálya) akár kutya sétáltatásra, akár csak egy pihentető sétára vágyik. A színházba járás szerelmeseinek az ERKEL SZÍNHÁZ közelsége igazi kuriózum, hiszen pár perc séta után már élvezhetik is az előadást.

Helyiséglista:
Előszoba: 19,32 m2
Nappali: 25,59 m2
Szoba: 24,06 m2
Hálófülke: 5,96 m2
Konyha: 9,16 m2
Kamra: 2,18 m2
Fürdőszoba: 6,24 m2
WC: 0,91 m2
Közlekedő: 0,84 m2
ÖSSZESEN: 94,26 m2

Szeretettel várom megtisztelő hívását a hét minden napján.

INGATLAN ADATAI

Ingatlan jellege
téglalakás
Belső terület
94 m²
Tájolás
északkelet
Panoráma
utcára néző
Építési állapot
használt
Építési mód
tégla
Szobák száma
3+1 félszoba
Szobák elhelyezkedése
külön nyílik min. 2 szoba
Emelet
földszint.
Épület szintje
4.
Épült
1890
Lift
van
Ingatlan állapot
kívül: felújított
belül: jó
Fűtés
cirko
Komfort
összkomfort
Kilátás
utcára
Energetika
nincs megadva
TÉRKÉP

Budapest, VIII. kerület,

KAPCSOLAT
Feketéné Gyöngyösi Ildikó
Feketéné Gyöngyösi Ildikó


+36 20 517 6939

gyongyosi.ildiko@globeingatlan.hu

KAPCSOLAT
Feketéné Gyöngyösi Ildikó

+36 20 517

gyongyosi.ildiko@

Az időpont kérés naptár ikonja
IDŐPONTOT KÉREK
A visszahívás kérés telefon ikonja egy azt körbe ölelő nyíllal
VISSZAHÍVÁST KÉREK
Ajánlom egy ismerősömnek ikon
AJÁNLOM EGY ISMERŐSÖMNEK
Facebook megosztás ikon
MEGOSZTÁS

KAPCSOLATFELVÉTEL

Küldés

Az üzenetet sikeresen elküldtük!
Hiba történt!
INGATLAN ADATAI

Ingatlan jellege

téglalakás

Belső terület

94 m²

Tájolás

északkelet

Panoráma

utcára néző

Építési állapot

használt

Építési mód

tégla

Szobák száma

3+1 félszoba

Szobák elhelyezkedése

külön nyílik min. 2 szoba

Emelet

földszint.

Épület szintje

4.

Épült

1890

Lift

van

Ingatlan állapot

kívül: felújított
belül: jó

Fűtés

cirko

Komfort

összkomfort

Kilátás

utcára

Energetika

nincs megadva

Az időpont kérés naptár ikonja
HTML
Az időpont kérés naptár ikonja
PDF

Hasonló ingatlan hírdetések

Eladó tégla-, vagy panellakás hirdetést keres Budapesten a VIII. kerületben?
Tekintse meg további ajánlatainkat!

eladó téglalakás, Budapest, VIII. kerület

eladó téglalakás

Budapest, VIII. kerület, Népszínház negyed
ELADÓ egy 69 m²-es, 3 szobás, világos, jó elosztású lakás kiváló lokációban, pár percre a Blaha Lujza tértől! A második emeleti ingatlan remek választás családoknak és befektetőknek egyaránt, hisze...
Belső terület
69 m²
Szobák
3
Emelet
2

79.9 M Ft

eladó téglalakás, Budapest, VIII. kerület

eladó téglalakás

Budapest, VIII. kerület, Magdolna negyed
KIZÁRÓLAG IRODÁNK KÍNÁLATÁBAN! AKÁR BEFEKTETÉSNEK IS KIVÁLÓ LEHETŐSÉG! Otthon Start 3%-os hitellel is megvásárolható! Megvételre kínálunk Budapest VIII. kerületében az Orczy tér szomszédságában ...
Belső terület
46 m²
Szobák
1+1
Emelet
4

64.8 M Ft

kiemelt
Kiemelt
eladó téglalakás, Budapest, VIII. kerület

eladó téglalakás

Budapest, VIII. kerület, Corvin negyed
CORVIN PLÁZÁNÁL - JÓZSEF KÖRÚTTÓL 200 MÉTERRE - POLGÁRI LAKÁS VIII. kerületben található, ez a 65 m2-es, magasföldszintes, 3 szobás eladó lakás. - csendes, jó lakóközösség - a tetőtér beépítésé...
Belső terület
65 m²
Szobák
3
Emelet
magasföldszint

89.9 M Ft

eladó panellakás, Budapest, VIII. kerület

eladó panellakás

Budapest, VIII. kerület, Losoncinegyed
Kizárólag csak nálunk találja meg ezt a szuper lakást! Vidékről költözne Budapestre, vagy már itt él és elege van a bérlésből? Figyelem – ezt az ajánlatot ne hagyja ki! A Losonci téren, egy go...
Belső terület
38 m²
Szobák
1
Emelet
magasföldszint

54.9 M Ft

alkalmi vétel
Alkalmi vétel
eladó téglalakás, Budapest, VIII. kerület

eladó téglalakás

Budapest, VIII. kerület, Csarnok negyed
A VIII. kerület közkedvelt Csarnoknegyedében kínálunk megvételre egy kiváló adottságokkal rendelkező,felújított 26 m² alapterületű + 6 m² fekvőgalériás garzonlakást. Az ingatlan a belváros szívében h...
Belső terület
32 m²
Szobák
1
Emelet
félemelet

47 M Ft

44.9 M Ft

eladó téglalakás, Budapest, VIII. kerület

eladó téglalakás

Budapest, VIII. kerület,
Eladó egy elegáns, teljes körűen felújított lakás Budapest VIII. kerületében, a Palotanegyed egyik legpatinásabb utcájában, a Magyar Nemzeti Múzeum közvetlen közelében. A 70 m²-es, háromszobás inga...
Belső terület
70 m²
Szobák
3
Emelet
1

112 M Ft

eladó téglalakás, Budapest, VIII. kerület

eladó téglalakás

Eladó a 8. kerületben, a Corvin Bevásárlóközpont közelében, a Kisfaludy utcában egy 63 m2-es, első emeleti, nappali + 3 hálószobás lakás!

Budapest, VIII. kerület, Corvin negyed
Eladó a 8. kerületben, a Corvin Bevásárlóközpont közelében, a Kisfaludy utcában egy 63 m2-es, első emeleti, nappali + 3 hálószobás lakás! A társasház újszerű, kívül-belül szép állapotú, kitűnő hely...
Belső terület
63 m²
Szobák
4
Emelet
1

102.9 M Ft

eladó téglalakás, Budapest, VIII. kerület

eladó téglalakás

Budapest, VIII. kerület, Népszínház negyed
Két külön hasznosítható ingatlanrész – kiváló befektetés a Blaha közelében Eladásra kínálunk Budapest VIII. kerületében, a Rákóczi út mentén, mindössze két sarokra a Blaha Lujza tértől egy 44 m²-es...
Belső terület
44 m²
Szobák
1
Emelet
földszint

44 M Ft

Budapest, VIII. kerület - Népszínház negyed
Budapest, VIII. kerület - Népszínház negyed
Budapest, VIII. kerület - Népszínház negyed
Budapest, VIII. kerület - Népszínház negyed
Budapest, VIII. kerület - Népszínház negyed
Budapest, VIII. kerület - Népszínház negyed
Budapest, VIII. kerület - Népszínház negyed
Budapest, VIII. kerület - Népszínház negyed
Budapest, VIII. kerület - Népszínház negyed
Budapest, VIII. kerület - Népszínház negyed
Budapest, VIII. kerület - Népszínház negyed
Budapest, VIII. kerület - Népszínház negyed
Budapest, VIII. kerület - Népszínház negyed
Budapest, VIII. kerület - Népszínház negyed
Budapest, VIII. kerület - Népszínház negyed
Budapest, VIII. kerület - Népszínház negyed
Budapest, VIII. kerület - Népszínház negyed
Budapest, VIII. kerület - Népszínház negyed
Budapest, VIII. kerület - Népszínház negyed
Budapest, VIII. kerület - Népszínház negyed
Budapest, VIII. kerület - Népszínház negyed
Budapest, VIII. kerület - Népszínház negyed
Budapest, VIII. kerület - Népszínház negyed
Budapest, VIII. kerület - Népszínház negyed
Budapest, VIII. kerület - Népszínház negyed
Budapest, VIII. kerület - Népszínház negyed
Budapest, VIII. kerület - Népszínház negyed
Budapest, VIII. kerület - Népszínház negyed
Budapest, VIII. kerület - Népszínház negyed
Budapest, VIII. kerület - Népszínház negyed
Budapest, VIII. kerület - Népszínház negyed