Eladó sorház - Budapest, II. kerület

garázzsal
Garázzsal
KAPCSOLAT
Németh Zoltán László


+36 70 500

info@

Az időpont kérés naptár ikonja
IDŐPONTOT KÉREK
A visszahívás kérés telefon ikonja egy azt körbe ölelő nyíllal
VISSZAHÍVÁST KÉREK
Ajánlom egy ismerősömnek ikon
AJÁNLOM EGY ISMERŐSÖMNEK
Facebook megosztás ikon
MEGOSZTÁS

KAPCSOLATFELVÉTEL

Küldés

Az üzenetet sikeresen elküldtük!
Hiba történt!
INGATLAN ADATAI

Ingatlan jellege

sorház

Belső terület

257 m²

Telek terület

333 m²

Tájolás

dél, nyugat, délnyugat

Építési állapot

használt

Építési mód

tégla

Szobák száma

5 szoba

Szobák elhelyezkedése

külön nyílik min. 2 szoba

Épület szintje

3.

Ingatlan állapot

kívül: felújított
belül: felújított

Klíma

van

Szigetelés

15 cm

Ablak szerkezete

2 rétegű thermoplan

Fűtés

padlófűtés

Komfort

duplakomfort

Parkolás

van teremgarázs

Közműállapot

csatorna: bekötve
gáz: bekötve
villany: bekötve
víz: bekötve

Energetika

nincs megadva

Az időpont kérés naptár ikonja
HTML
Az időpont kérés naptár ikonja
PDF
Eladó sorház
Belső azonosító:
00214
Ingatlan azonosító:
16275_bh

Budapest, II. kerület,

Irányár

208 M Ft
(809.34 E Ft/㎡)

Szobák

5 szoba

Terület

257 m²

Telek terület

333 m²
INGATLAN LEÍRÁSA
INGATLAN HELYSZÍNE:
II. kerület, Pesthidegkút Ófalu részén található, a Patakhegyi utcában, a Diplomata lakóparkban. A lakópark területén magánbölcsöde és óvoda található, továbbá a közelben állami óvoda, több magyar és nemzetközi iskola, (francia iskola, amerikai iskola). Gyarmati Uszoda, sportpálya, bevásárlóközpont valamint néhány perc sétára népszerű kirándulóhelyek.

ÉPÜLET és KÖRNYEZET JELLEMZŐI:
Gondnokság, portaszolgálat biztosítja a lakók biztonságát, kényelmét.
Az utcán és a lakópark területén is kamerarendszer működik.
333 négyzetméteres magán telekterület.

LAKÁS JELLEMZŐI:
Bruttó alapterülete 257 nm, 3 hálószoba, 1 amerikai konyhás étkezős nappali, plusz egy nagyméretű nappali, fitnessz terem, három fürdőszoba, padlófűtés található a ház teljes területén. Ablakokon, erkélyajtókon mindenhol redőnyök állnak rendelkezésre.
Legfelső szinten található: 3 jól szeparált hálószoba, gardrobe, előtér, egy kádas és egy zuhanyzós fürdőszoba WC-kel.
Középső fogadószinten: amerikai konyhás nappali, étkezővel, előszoba, kamra, garázs, hátsó kert
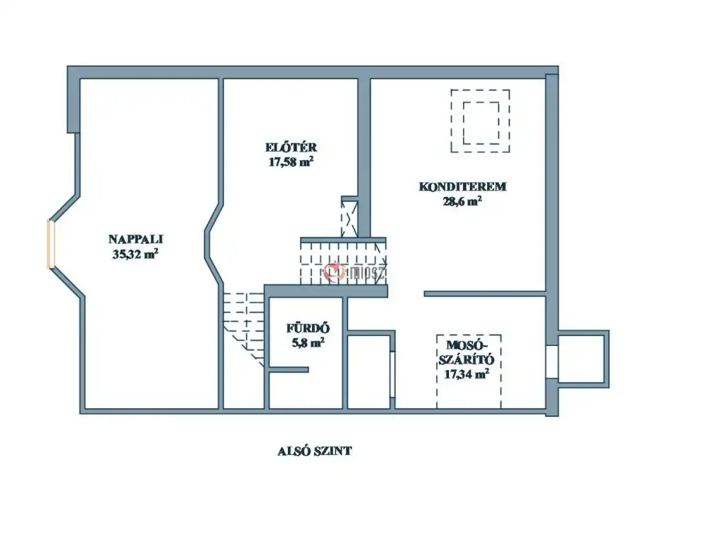
Alsó szint: Nagyméretű nappali, gardrobe, fitnessz terem, mosókonyha, zuhanyzós fürdőszoba, kerti terasz.
Az ingatlan jelenleg 3 hálószobával rendelkezik, de további szobák alakíthatóak ki az alsóbb szinteken. Konyha is könnyedén áthelyezhető a kerti nappali szintjére.

Több generáció számára is ideális lehetőség, ugyanis az alsó szinten egy külön lakrész is kialakítható!

MŰSZAKI FELSZERELTSÉG:
Padlófűtés található a ház teljes területén. 4 db rendkívül energiatakarékos A++ osztályú Fischer hűtő-fűtő klíma került beszerelésre, amely a ház minden szintjét kiszolgálja. A legújabb Bosch A osztályú energiatakarékos, zárt égésterű, wi-fi-ről is működtethető kondenzációs kazán, valamint új nagy teljesítményű vízmelegítő. Kémény korszerűsítése, bélése megtörtént. Új Ravak kád, mosdó, csaptelepek, WC kagylók. Új konyhabútorzat, gépészettel.

KÖLTSÉGEK:
Közös költség 2025/2026 évre:
48 ezer Ft /hó
Tartalmazza:
Közös képviselet
Gondnokság (kukák kihúzása-visszahúzása, udvartakarítás, külső karbantartások, hóeltakarítás, gondnoki ügyelet, külső/közös zöld területek gondozása)
Portaszolgálat/őrzés (postai küldemények, csomagok átvétele, útbaigazítás, a terület őrzése)
A házak alapbiztosítása

Rezsi költségek:
áprilistól- október közepéig: 25-27 ezer Ft (villany, víz, csatorna, szemétszállítás) Ilyenkor A+++ fűtő-hűtő klíma és vízmelegítő bojler van használva.
november- április: (gáz, villany, csatorna, víz, szemétszállítás) 58-62 ezer Ft

PARKOLÁS:
Saját, fűtött garázs, előtte akár 4 autó beállására is van lehetőség, továbbá az utcán ingyenes a parkolás.

IRÁNYÁR:
208 MFt



INGATLAN ADATAI

Ingatlan jellege
sorház
Belső terület
257 m²
Telek terület
333 m²
Tájolás
dél, nyugat, délnyugat
Építési állapot
használt
Építési mód
tégla
Szobák száma
5 szoba
Szobák elhelyezkedése
külön nyílik min. 2 szoba
Épület szintje
3.
Ingatlan állapot
kívül: felújított
belül: felújított
Klíma
van
Szigetelés
15 cm
Ablak szerkezete
2 rétegű thermoplan
Fűtés
padlófűtés
Komfort
duplakomfort
Parkolás
van teremgarázs
Közműállapot
csatorna: bekötve
gáz: bekötve
villany: bekötve
víz: bekötve
Energetika
nincs megadva
TÉRKÉP

Budapest, II. kerület,

KAPCSOLAT
Németh Zoltán László
Németh Zoltán László


+36 70 500 4467

info@budahouse.hu

KAPCSOLAT
Németh Zoltán László

+36 70 500

info@

Az időpont kérés naptár ikonja
IDŐPONTOT KÉREK
A visszahívás kérés telefon ikonja egy azt körbe ölelő nyíllal
VISSZAHÍVÁST KÉREK
Ajánlom egy ismerősömnek ikon
AJÁNLOM EGY ISMERŐSÖMNEK
Facebook megosztás ikon
MEGOSZTÁS

KAPCSOLATFELVÉTEL

Küldés

Az üzenetet sikeresen elküldtük!
Hiba történt!
INGATLAN ADATAI

Ingatlan jellege

sorház

Belső terület

257 m²

Telek terület

333 m²

Tájolás

dél, nyugat, délnyugat

Építési állapot

használt

Építési mód

tégla

Szobák száma

5 szoba

Szobák elhelyezkedése

külön nyílik min. 2 szoba

Épület szintje

3.

Ingatlan állapot

kívül: felújított
belül: felújított

Klíma

van

Szigetelés

15 cm

Ablak szerkezete

2 rétegű thermoplan

Fűtés

padlófűtés

Komfort

duplakomfort

Parkolás

van teremgarázs

Közműállapot

csatorna: bekötve
gáz: bekötve
villany: bekötve
víz: bekötve

Energetika

nincs megadva

Az időpont kérés naptár ikonja
HTML
Az időpont kérés naptár ikonja
PDF

Hasonló ingatlan hírdetések

Eladó családi ház, vagy kertes ház hirdetést keres Budapesten a II. kerületben?
Tekintse meg további ajánlatainkat!

eladó új építésű ikerház, Budapest, II. kerület

eladó új építésű ikerház

Budapest, II. kerület, Széphalom - II/A
II. Széphalom kedvelt részén ÚJ ÉPÍTÉSŰ, PRÉMIUM kategóriás IKERHÁZFÉL eladó. Az igényes, luxus kivitelű ingatlan minden részletében gondosan megtervezett. A sík, szabályos kialakítású, 550 nm-es, el...
Belső terület
150 m²
Telek terület
550 m²
Szobák
5

330 M Ft

garázzsal
Garázzsal
eladó új építésű ikerház, Budapest, II. kerület

eladó új építésű ikerház

Budapest, II. kerület, Széphalom - II/A
II. Széphalom kedvelt részén ÚJ ÉPÍTÉSŰ, PRÉMIUM kategóriás IKERHÁZFÉL eladó. Az igényes, luxus kivitelű ingatlan minden részletében gondosan megtervezett. A sík, szabályos kialakítású, 550 nm-es, el...
Belső terület
150 m²
Telek terület
550 m²
Szobák
5

315 M Ft

garázzsal
Garázzsal
eladó villa, Budapest, II. kerület

eladó villa

Budapest, II. kerület,
Pasarét egyik legexkluzívabb, csendes zöldövezeti utcájában kínálunk megvételre egy különleges megjelenésű, neobarokk–neoklasszicista stílusú villát, amely korábban diplomáciai rezidenciaként funkcion...
Belső terület
450 m²
Telek terület
1101 m²
Szobák
9

1300 M Ft

eladó sorház, Budapest, II. kerület

eladó sorház

Budapest, II. kerület, Rézmál, Bimbó út
RÓZSADOMBON PANORÁMÁS 4 SZINTES FELÚJÍTOTT SORHÁZ ELADÓ Bimbó úton gyönyörűen felújított, napfényes, PANORÁMÁS, 4 szintes, 165 nm + 3 terasz (összesen kb 30 nm) sorház eladó. Bejárati szinten ko...
Belső terület
165 m²
Telek terület
100 m²
Szobák
4

190 M Ft

eladó családi ház, Budapest, II. kerület

eladó családi ház

Kiváló családi ház hegyvidéki környezetben!

Budapest, II. kerület, Remetekertváros - II/A
Budapest II. kerületében, Remetekertvárosban eladó egy kiváló állapotú, háromszintes, igényesen kialakított, kétgenerációs családi ház, szépen gondozott, nagyméretű kerttel, nagy területű pincével, fű...
Belső terület
177 m²
Telek terület
715 m²
Szobák
6

239 M Ft

kétgenerációs!
Kétgenerációs
eladó új építésű ikerház, Budapest, II. kerület

eladó új építésű ikerház

Budapest, II. kerület, Adyliget - II/A
MEGUNHATATLAN, ELVEHETETLEN, LÉLEGZET ELÁLLÍTÓ PANORÁMA, HŰVÖSVÖLGY EGYIK CSENDES ZSÁKUTCÁJÁBAN. AMENNYIBEN RÉGÓTA VÁGYOTT ARRA, HOGY ZÖLDEBB LAKÓKÖRNYEZETBE KÖLTÖZZÖN, ITT A REMEK ALKALOM! Ugyanis...
Belső terület
186 m²
Telek terület
900 m²
Szobák
4

299 M Ft

eladó családi ház, Budapest, II. kerület

eladó családi ház

Budapest, II. kerület, Pesthidegkút-Ófalu - II/A
Pesthidegkút Ófalu kanyargós csendes mellék utcájában szabályos telken 1997-ben épült az akkori ízlés szerint a legjobb anyagokból és kor eleganciáját figyelembe véve. Az ingatlan örökség jelenleg ne...
Belső terület
240 m²
Telek terület
570 m²
Szobák
5

224.8 M Ft

azonnal költözhető
Azonnal költözhető
eladó családi ház, Budapest, II. kerület

eladó családi ház

Budapest, II. kerület, Máriaremete - II/A
ÍME A TÖKÉLETES VÁLASZTÁS, AZOKNAK, AKIK ÉRTÉKELIK A MINŐSÉGET ÉS EGY VALÓBAN MEGHITT OTTHONT KERESNEK! Ha eddig még nem találta meg a megfelelőt, akkor ez a kifogástalan állapotú, valódi ékszerdoboz...
Belső terület
254 m²
Telek terület
600 m²
Szobák
5+2

475 M Ft

Budapest, II. kerület - Adyliget - II/A
Budapest, II. kerület - Adyliget - II/A
Budapest, II. kerület - Adyliget - II/A
Budapest, II. kerület - Adyliget - II/A
Budapest, II. kerület - Adyliget - II/A
Budapest, II. kerület - Adyliget - II/A
Budapest, II. kerület - Adyliget - II/A
Budapest, II. kerület - Adyliget - II/A
Budapest, II. kerület - Adyliget - II/A
Budapest, II. kerület - Adyliget - II/A
Budapest, II. kerület - Adyliget - II/A
Budapest, II. kerület - Adyliget - II/A
Budapest, II. kerület - Adyliget - II/A
Budapest, II. kerület - Adyliget - II/A
Budapest, II. kerület - Adyliget - II/A
Budapest, II. kerület - Adyliget - II/A
Budapest, II. kerület - Adyliget - II/A
Budapest, II. kerület - Adyliget - II/A
Budapest, II. kerület - Adyliget - II/A
Budapest, II. kerület - Adyliget - II/A