Eladó panellakás - Budapest, XXI. kerület

CSOK igényelhető
CSOK igényelhető
KAPCSOLAT
Meznyik György


+36 30 737

meznyik.gyorgy@

Az időpont kérés naptár ikonja
IDŐPONTOT KÉREK
A visszahívás kérés telefon ikonja egy azt körbe ölelő nyíllal
VISSZAHÍVÁST KÉREK
Ajánlom egy ismerősömnek ikon
AJÁNLOM EGY ISMERŐSÖMNEK
Facebook megosztás ikon
MEGOSZTÁS

KAPCSOLATFELVÉTEL

Küldés

Az üzenetet sikeresen elküldtük!
Hiba történt!
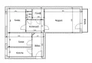
INGATLAN ADATAI

Ingatlan jellege

panellakás

Belső terület

53 m²

Tájolás

délkelet

Építési állapot

használt

Építési mód

panel

Szobák száma

1+2 félszoba

Erkély

4 m²

Emelet

2.

Épület szintje

10.

Épült

kb. 1980

Lift

van

Ingatlan állapot

kívül: jó
belül: felújított

Szigetelés

10 cm

Fűtés

távfűtés egyedi méréssel

Komfort

összkomfort

Energetika

nincs megadva

Az időpont kérés naptár ikonja
HTML
Az időpont kérés naptár ikonja
PDF
Eladó panellakás
Ingatlan azonosító:
2625_rid

Budapest, XXI. kerület, Belváros

Irányár

64.9 M Ft
(1.22 M Ft/㎡)

Szobák

1+2 félszoba

Emelet

2

Terület

53 m²
INGATLAN LEÍRÁSA
BUDAPEST XXI. KERÜLET ABSZOLÚT KÖZPONTI RÉSZÉN, A HÉV VÉGÁLLOMÁS, A CSEPEL PLÁZA, ÉS A PÁR HETE MEGNYÍLT BURGER KING-TŐL 1 PERC SÉTÁRA, MEGVÉTELRE KÍNÁLUNK EGY PÁR ÉVE FELÚJÍTOTT, NAGYON JÓ ÁLLAPOTÚ, ERKÉLYES PANEL LAKÁST!!

Csepel központjában, a Csepel Pláza közvetlen közelében megvételre kínálunk, egy 10 emeletes társasház 2. emeletén elhelyezkedő 53 m2-es, 1+2 félszobás, nagyon jó állapotban lévő, erkélyes panel lakást!
A lakást pár éve felújították:
- 2 rétegű thermo ablakok
- új egyedi gépesített konyhabútor ( főzőlap, sütő, mikró, mosogatógép), amik új villany hálózatra lettek bekötve.
- Az összes szobát újra festették, és új burkolatot kaptak
A lakás nagyon jó elosztású, a szobák teljesen külön nyílnak egymástól, és fekvésének köszönhetően, minden szoba világos napsütötte.
A társasház pár éve panelprogramban vett részt, aminek a keretén belül az épületet körbe dryvitolták, a lépcsőházban a kapukat kicserélték, a lakásokban a fűtésrendszert korszerűsítették, a radiátorokat egyedi mérővel látták el, aminek köszönhetően a rezsi sokkal kedvezőbb lett.
A bejárati ajtó is megújult, amit egy több ponton záródó biztonsági ajtóra cseréltek.
A ház csendes, nyugodt, abszolút központi helyen található, ami kedvező, hogy szintenként csak 3 lakás van.
Autóval parkolás, a ház közvetlen közelében ingyenes.
A lépcsőház tiszta, rendezett, lakóközösség jó, környék csendes.
A lakás közös költsége: 20.650.- Ft.
A közelben minden egy helyen megtalálható: Burger King, McDonald's, Óvodák, Iskolák, Játszótér, Aldi, Spar, Orvosi rendelő, Gyógyszertár, Csepeli piac stb., amik sétálva is perceken belül megközelíthetőek.
A Csepel Pláza pár méter távolságra található, a hévmegálló 2 perc sétára van, ill. a buszmegállók a háztól pár méterre vannak, amivel a szomszédos kerületek gyorsan megközelíthetőek.
A lakás befektetőknek is kiváló lehetőség!
Jöjjön el, nézze meg, és tegyen ajánlatot!
Várom megtisztelő hívását, akár hétvégén is.

Lakás felújítást vállalunk, igény szerint tervezéstől-teljes felújításig.
Napi kapcsolatban vagyunk költöztető cégekkel, akik akár vidékre is költöztetnek.
Mindenben tudunk segíteni, ami ingatlan ügyekkel kapcsolatos.

AMENNYIBEN JOGOSULT LESZ, SZEPTEMBER 1-TŐL ERRE AZ INGATLANRA, IGÉNYBE VEHETI A KEDVEZŐ 3%-OS HITELT, ILLETVE CSOK+ HITEL ( ILLETÉKMENTESSÉG ), IS IGÉNYELHETŐ!
Amennyiben felkeltettük érdeklődését, keressen bizalommal, akár hétvégén is.
Akár 20% önerővel is megvásárolható
Ingyenes hitel- és CSOK Plusz ügyintézés – nemcsak nálunk vásárolt ingatlanokra!
Hitelkalkuláció és előminősítés igény szerint.
Energetikai tanúsítvány elkészítése.
Jogi tanácsadás cégünk saját ügyvédjétől.
Kövessen minket Facebookon is a legfrissebb ajánlatokért!


INGATLAN ADATAI

Ingatlan jellege
panellakás
Belső terület
53 m²
Tájolás
délkelet
Építési állapot
használt
Építési mód
panel
Szobák száma
1+2 félszoba
Erkély
4 m²
Emelet
2.
Épület szintje
10.
Épült
kb. 1980
Lift
van
Ingatlan állapot
kívül: jó
belül: felújított
Szigetelés
10 cm
Fűtés
távfűtés egyedi méréssel
Komfort
összkomfort
Energetika
nincs megadva
TÉRKÉP

Budapest, XXI. kerület, Belváros

KAPCSOLAT
Meznyik György
Meznyik György


+36 30 737 0423

meznyik.gyorgy@ridom.hu

KAPCSOLAT
Meznyik György

+36 30 737

meznyik.gyorgy@

Az időpont kérés naptár ikonja
IDŐPONTOT KÉREK
A visszahívás kérés telefon ikonja egy azt körbe ölelő nyíllal
VISSZAHÍVÁST KÉREK
Ajánlom egy ismerősömnek ikon
AJÁNLOM EGY ISMERŐSÖMNEK
Facebook megosztás ikon
MEGOSZTÁS

KAPCSOLATFELVÉTEL

Küldés

Az üzenetet sikeresen elküldtük!
Hiba történt!
INGATLAN ADATAI

Ingatlan jellege

panellakás

Belső terület

53 m²

Tájolás

délkelet

Építési állapot

használt

Építési mód

panel

Szobák száma

1+2 félszoba

Erkély

4 m²

Emelet

2.

Épület szintje

10.

Épült

kb. 1980

Lift

van

Ingatlan állapot

kívül: jó
belül: felújított

Szigetelés

10 cm

Fűtés

távfűtés egyedi méréssel

Komfort

összkomfort

Energetika

nincs megadva

Az időpont kérés naptár ikonja
HTML
Az időpont kérés naptár ikonja
PDF

Hasonló ingatlan hírdetések

Eladó tégla-, vagy panellakás hirdetést keres Budapesten a XXI. kerületben?
Tekintse meg további ajánlatainkat!

eladó téglalakás, Budapest, XXI. kerület

eladó téglalakás

Budapest, XXI. kerület, Kertváros
Kertvárosi társasházi lakás eladó! Csepel kertvárosában kínálom megvételre ezt a társasházi 115nm-es lakást, mely családi ház felső szintjén helyezkedik el, terasz kapcsolatos és 415 nm-es telekkel...
Belső terület
115 m²
Szobák
2+1

122.5 M Ft

eladó téglalakás, Budapest, XXI. kerület

eladó téglalakás

Budapest, XXI. kerület, Ady Endre utcai ltp.
Kertes társasházi lakás eladó! Csepel kertvárosában, frekventált helyen kínálom megvételre ezt az ingatlant. A családi ház 3 részből áll, társasházi alapító okirattal rendelkezik. Mind a 3 rés...
Belső terület
88 m²
Szobák
3

95 M Ft

eladó téglalakás, Budapest, XXI. kerület

eladó téglalakás

Otthonközpontú, kertvárosi életérzés

Budapest, XXI. kerület, , Temesvári u.
Otthonközpontú, kertvárosi életérzés 3 szobás lakás garázzsal eladó! - csendes környék - amerikai konyhás - erkélyes Csepel egyik legnyugodtabb kertvárosi utcájában kínálunk megvételre e...
Belső terület
64 m²
Szobák
2+1
Emelet
földszint

66.5 M Ft

eladó panellakás, Budapest, XXI. kerület

eladó panellakás

Budapest, XXI. kerület, Belváros
BUDAPEST XXI. KERÜLET KÖZPONTI, BELVÁROSI RÉSZÉN, A HÉV MEGÁLLÓTÓL PÁR PERC SÉTÁRA, MEGVÉTELRE KÍNÁLUNK EGY NAGYON JÓ ÁLLAPOTÚ, KULTÚRÁLT TÁRSASHÁZBAN LÉVŐ, JÓ ELRENDEZÉSŰ PANEL LAKÁST!! Csepel köz...
Belső terület
45 m²
Szobák
1+1

58.9 M Ft

54.9 M Ft

CSOK igényelhető
CSOK igényelhető
eladó panellakás, Budapest, XXI. kerület

eladó panellakás

Budapest, XXI. kerület, Erdősor
Újszerű 3 szobás lakás eladó! Csepelen az Erdősor úton kínálom megvételre ezt a csodálatosan felújított 64 nm-es, 3 szobás lakást. Az ingatlan minőségi anyagokkal, ízlésesen, teljes mértékben f...
Belső terület
64 m²
Szobák
2+1
Emelet
2

75.9 M Ft

eladó panellakás, Budapest, XXI. kerület

eladó panellakás

Felújított lakás eladó a Csepelen a Sétányoknál!

Budapest, XXI. kerület, , Erdősor u.
Felújított lakás eladó a Csepelen a Sétányoknál! Csepelen az Erdősor utcában kínálom megvételre ezt a felújított 2 szobás 55 nm-es lakást. A lakás kellemes hangulatot adó, ízlésesen felújított,...
Belső terület
55 m²
Szobák
2
Emelet
2

64.9 M Ft

eladó téglalakás, Budapest, XXI. kerület

eladó téglalakás

5 szobás lakás saját kerttel eladó!

Budapest, XXI. kerület, Királyerdő, Mária királyné útja
5 szobás lakás saját kerttel eladó! Csepelen, Királyerdő kedvelt utcájában kínálom megvételre ezt a 5 szobás, 110 nm-es lakást. A ház 4 lakásos, 1990-ben épült, jogilag is megosztott. Ez az in...
Belső terület
110 m²
Szobák
4+1

84.9 M Ft

eladó téglalakás, Budapest, XXI. kerület

eladó téglalakás

2 szobás, 2 erkélyes, lakás eladó!

Budapest, XXI. kerület, Rakéta utcai ltp., Rakéta u.
2 szobás, 2 erkélyes, lakás eladó! Csillagtelepen a Rakéta utcában kínálom megvételre ezt a remek adottságú 55 nm-es 2 szobás lakást. Az ingatlan tégla építésű ház első emeletén helyezkedik el. ...
Belső terület
55 m²
Szobák
2
Emelet
1

56.9 M Ft

Budapest, XXI. kerület - Belváros
Budapest, XXI. kerület - Belváros
Budapest, XXI. kerület - Belváros
Budapest, XXI. kerület - Belváros
Budapest, XXI. kerület - Belváros
Budapest, XXI. kerület - Belváros
Budapest, XXI. kerület - Belváros
Budapest, XXI. kerület - Belváros
Budapest, XXI. kerület - Belváros
Budapest, XXI. kerület - Belváros
Budapest, XXI. kerület - Belváros
Budapest, XXI. kerület - Belváros
Budapest, XXI. kerület - Belváros
Budapest, XXI. kerület - Belváros
Budapest, XXI. kerület - Belváros
Budapest, XXI. kerület - Belváros
Budapest, XXI. kerület - Belváros
Budapest, XXI. kerület - Belváros
Budapest, XXI. kerület - Belváros
Budapest, XXI. kerület - Belváros
Budapest, XXI. kerület - Belváros
Budapest, XXI. kerület - Belváros
Budapest, XXI. kerület - Belváros
Budapest, XXI. kerület - Belváros
Budapest, XXI. kerület - Belváros
Budapest, XXI. kerület - Belváros