Eladó újszerű iroda - Eger

Energiatakarékos!
Energiatakarékos
KAPCSOLAT
Takács Attila


+36 20 807

mediusingatlan@

Az időpont kérés naptár ikonja
IDŐPONTOT KÉREK
A visszahívás kérés telefon ikonja egy azt körbe ölelő nyíllal
VISSZAHÍVÁST KÉREK
Ajánlom egy ismerősömnek ikon
AJÁNLOM EGY ISMERŐSÖMNEK
Facebook megosztás ikon
MEGOSZTÁS

KAPCSOLATFELVÉTEL

Küldés

Az üzenetet sikeresen elküldtük!
Hiba történt!
INGATLAN ADATAI

Ingatlan jellege

iroda

Belső terület

140 m²

Tájolás

kelet, délnyugat

Építési állapot

újszerű

Építési mód

vegyes

Szobák elhelyezkedése

külön nyílik min. 2 szoba

Bútorozottság

nem

Emelet

nincs emelet.

Épület szintje

1.

Akadálymentes

részlegesen

Lift

nincs

Ingatlan állapot

kívül: felújított
belül: luxus

Klíma

van

Fűtés

hűtő-fűtő klíma

Komfort

luxus

Parkolás

van, nem meghatározott

Közműállapot

csatorna: bekötve
gáz: bekötve
villany: bekötve
víz: bekötve

Kilátás

utcára, kertre, udvarra

Energetika

A+:

Extrák

teljes berendezéssel, akár azonnali üzemeltetési lehetőséggel, ügyfélkörrel átvehető!

Az időpont kérés naptár ikonja
HTML
Az időpont kérés naptár ikonja
PDF
Eladó újszerű iroda
Ingatlan azonosító:
712_med

Heves megye, Eger, (Hatvanihóstya), Deák Ferenc utca

Irányár

149 M Ft
(1.06 M Ft/㎡)

Szobák

3 szoba

Terület

140 m²

Telek terület

164 m²
INGATLAN LEÍRÁSA
Egerben a Deák Ferenc utcában korszerűen felújított, szinte 0 energia igényű, működő önálló apartmant kínálok megvételre, befektető részére, vagy az ingatlan alkalmas orvosi rendelőnek, fogorvosi rendelőnek stb...
- Ajánlom akár üzleti ingatlannak, akár családi háznak is.

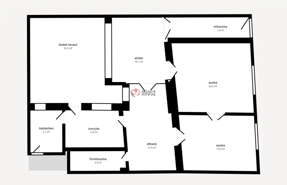
Ingatlan: 140 m2: 2 nagy szoba, konyha, étkező, tágas előszoba, hall kialakítású, az épület alatt egy kb: 50 m2-es pince lett kialakítva klubszobának. A terasz polikarbonát fedésű kb 60 m2-es, itt egy 5 személyes jakuzzi lett telepítve.

Az ingatlan fűtését/hűtését korszerű hőszivattyús rendszerrel oldották meg, a tetőn telepített 10 Kw napelem segít a közel 0 energia eléréséhez.

INGATLAN ADATAI

Ingatlan jellege
iroda
Belső terület
140 m²
Tájolás
kelet, délnyugat
Építési állapot
újszerű
Építési mód
vegyes
Szobák elhelyezkedése
külön nyílik min. 2 szoba
Bútorozottság
nem
Emelet
nincs emelet.
Épület szintje
1.
Akadálymentes
részlegesen
Lift
nincs
Ingatlan állapot
kívül: felújított
belül: luxus
Klíma
van
Fűtés
hűtő-fűtő klíma
Komfort
luxus
Parkolás
van, nem meghatározott
Közműállapot
csatorna: bekötve
gáz: bekötve
villany: bekötve
víz: bekötve
Kilátás
utcára, kertre, udvarra
Energetika
A+:
Extrák
teljes berendezéssel, akár azonnali üzemeltetési lehetőséggel, ügyfélkörrel átvehető!
TÉRKÉP

Heves megye, Eger, Deák Ferenc utca

KAPCSOLAT
Takács Attila
Takács Attila


+36 20 807 7504

mediusingatlan@gmail.com

KAPCSOLAT
Takács Attila

+36 20 807

mediusingatlan@

Az időpont kérés naptár ikonja
IDŐPONTOT KÉREK
A visszahívás kérés telefon ikonja egy azt körbe ölelő nyíllal
VISSZAHÍVÁST KÉREK
Ajánlom egy ismerősömnek ikon
AJÁNLOM EGY ISMERŐSÖMNEK
Facebook megosztás ikon
MEGOSZTÁS

KAPCSOLATFELVÉTEL

Küldés

Az üzenetet sikeresen elküldtük!
Hiba történt!
INGATLAN ADATAI

Ingatlan jellege

iroda

Belső terület

140 m²

Tájolás

kelet, délnyugat

Építési állapot

újszerű

Építési mód

vegyes

Szobák elhelyezkedése

külön nyílik min. 2 szoba

Bútorozottság

nem

Emelet

nincs emelet.

Épület szintje

1.

Lift

nincs

Ingatlan állapot

kívül: felújított
belül: luxus

Klíma

van

Fűtés

hűtő-fűtő klíma

Komfort

luxus

Parkolás

van, nem meghatározott

Közműállapot

csatorna: bekötve
gáz: bekötve
villany: bekötve
víz: bekötve

Kilátás

utcára, kertre, udvarra

Energetika

A+:

Extrák

teljes berendezéssel, akár azonnali üzemeltetési lehetőséggel, ügyfélkörrel átvehető!

Az időpont kérés naptár ikonja
HTML
Az időpont kérés naptár ikonja
PDF

Hasonló ingatlan hírdetések

Eladó újszerű iroda hirdetést keres Eger területén?
Tekintse meg további ajánlatainkat!

eladó üzlethelyiség utcai bejáratos, Eger

eladó üzlethelyiség utcai bejáratos

Eladó üzlethelyiség Eger szívében! ???????? Kiváló elhelyezkedés, utcafronti bejárat, remek lehetőség vállalkozóknak! ???? Ha új vállalkozást indítanál vagy befektetésen gondolkodsz, akkor ezt az ingatlant neked találták ki! ???? Ne hagyd ki, tegyél ajánlatot még ma!

Heves megye, Eger, (Belváros), Kracker Károly utca
Kivételes lehetőség Eger belvárosában – utcafronti üzlethelyiség eladó Remek elhelyezkedésű, utcai bejárattal rendelkező üzlethelyiség eladó Eger dinamikus részén. Az ingatlan kiváló választás lehe...
Belső terület
75 m²
Telek terület
1 m²
Szobák
1

93.5 M Ft

kiemelt
Kiemelt
eladó üzlet, Eger

eladó üzlet

Heves megye, Eger, (Belváros), Városfal utca
Eger belvárosában utcafrontról nyíló üzlet eladó! Az ingatlan 59 m2, nagy belmagasságú, polgári jellegű, riasztóval felszerelt. Egy nagy , L-alakú helyiségből, egy kis iroda/raktárból, és egy elő...
Belső terület
59 m²
Szobák
1+1
Emelet
földszint

44.9 M Ft

azonnal költözhető
Azonnal költözhető
eladó panzió, Eger

eladó panzió

Heves megye, Eger, Belváros
EGERBEN,BELVÁROS KÖZELÉBEN, 25 ÉVE MŰKÖDŐ PANZIÓ ALKALMI ÁRON ELADÓ!!!! Műszaki adatok: Az 550 m2 nettó alapterületű ingatlan egy 400 m2-es teleken helyezkedik el. 2000-ben épült 38-as téglából,tet...
Belső terület
550 m²
Telek terület
400 m²
Szobák
13

290 M Ft

eladó vendéglátás, Eger

eladó vendéglátás

Saját bár a belvárosban!

Heves megye, Eger, (Hatvanihóstya), Vörösmarty Mihály utca
Saját Klubban gondolkodsz Eger frekventált részén? Itt a remek lehetőség!!! Az ingatlan teljes körűen felújított, jelenleg is üzemel! Egerben a Vörösmarty utcában utcafronti 186 m2-es, engedélyekke...
Belső terület
186 m²
Telek terület
1 m²
Szobák
4

210 M Ft

Felújított!
Felújított
eladó vendéglátás, Eger

eladó vendéglátás

Heves megye, Eger, Szépasszonyvölgy
Egerben a Szépasszonyvölgy bejáratánál 180 m2-es borospince eladó! Az ingatlan kb. 150 m2 pincerészből és egy kétszintes, 30 m2-es épületből áll. A pincét vendéglátó egységnek akarták kialakítani,...
Belső terület
180 m²
Telek terület
1 m²
Szobák
0

31.9 M Ft

29.9 M Ft

alkalmi vétel
Alkalmi vétel
eladó panzió, Eger

eladó panzió

Heves megye, Eger, Hatvanihóstya
Figyelem befektetők és vállalkozók! Eladó Eger egyik legkedveltebb turisztikai pontjánál, a Szépasszonyvölgy bejáratánál, egy páratlan adottságokkal rendelkező működő vendégház: 300 m²-es, 2009...
Belső terület
300 m²
Telek terület
400 m²
Szobák
11

259 M Ft

kiemelt
Kiemelt
eladó panzió, Eger

eladó panzió

Heves megye, Eger, (Hatvanihóstya), Deák Ferenc utca
Egerben a Deák Ferenc utcában korszerűen felújított, szinte 0 energia igényű, működő önálló apartmant kínálok megvételre, befektető részére, vagy az ingatlan alkalmas orvosi rendelőnek, fogorvosi rend...
Belső terület
100 m²
Telek terület
150 m²
Szobák
3

149 M Ft

Energiatahatékony!
Energiatahatékony
eladó panzió, Eger

eladó panzió

Heves megye, Eger, Maklárihóstya
EGER,MAKLÁRI-HÓSTYA ,STRANDFÜRDŐ,USZODA,BELVÁROS KÖZELI RÉSZÉN JELENLEG IS MŰKÖDŐ APARTMAN ELADÓ!!!! Az ingatlan egy 650 m2-es gyönyörűen parkosított telken helyezkedik el,ahol nyársaló,jacuzzi nyú...
Belső terület
90 m²
Telek terület
650 m²
Szobák
4

95 M Ft

Heves megye - Eger
Heves megye - Eger
Heves megye - Eger
Heves megye - Eger
Heves megye - Eger
Heves megye - Eger
Heves megye - Eger
Heves megye - Eger
Heves megye - Eger
Heves megye - Eger
Heves megye - Eger
Heves megye - Eger
Heves megye - Eger
Heves megye - Eger
Heves megye - Eger