Eladó újszerű ikerház - Solymár

Panorámás!
Panorámás
KAPCSOLAT
Siklói György


+36 70 456

ingatlan@

Az időpont kérés naptár ikonja
IDŐPONTOT KÉREK
A visszahívás kérés telefon ikonja egy azt körbe ölelő nyíllal
VISSZAHÍVÁST KÉREK
Ajánlom egy ismerősömnek ikon
AJÁNLOM EGY ISMERŐSÖMNEK
Facebook megosztás ikon
MEGOSZTÁS

KAPCSOLATFELVÉTEL

Küldés

Az üzenetet sikeresen elküldtük!
Hiba történt!
INGATLAN ADATAI

Ingatlan jellege

ikerház

Belső terület

180 m²

Telek terület

445 m²

Tájolás

dél

Építési állapot

újszerű

Építési mód

tégla

Szobák száma

4 szoba

Terasz

40 m²

Épület szintje

2.

Épült

2018

Akadálymentes

igen

Ingatlan állapot

kívül: újszerű
belül: luxus

Szigetelés

15 cm

Fűtés

hőszivattyús

Komfort

duplakomfort

Közműállapot

csatorna: bekötve
gáz: bekötve
villany: bekötve
víz: bekötve

Energetika

nincs megadva

Az időpont kérés naptár ikonja
HTML
Az időpont kérés naptár ikonja
PDF
Eladó újszerű ikerház
Belső azonosító:
281124
Ingatlan azonosító:
420_cai

Pest megye, Solymár, Anna kápolna környéke

Irányár

185 M Ft
(1.03 M Ft/㎡)

Szobák

4 szoba

Terület

180 m²

Telek terület

445 m²
INGATLAN LEÍRÁSA
CSODÁLATOS környezetben -Solymár PANORÁMÁS részén- LUXUS ingatlant ajánlok figyelmébe!

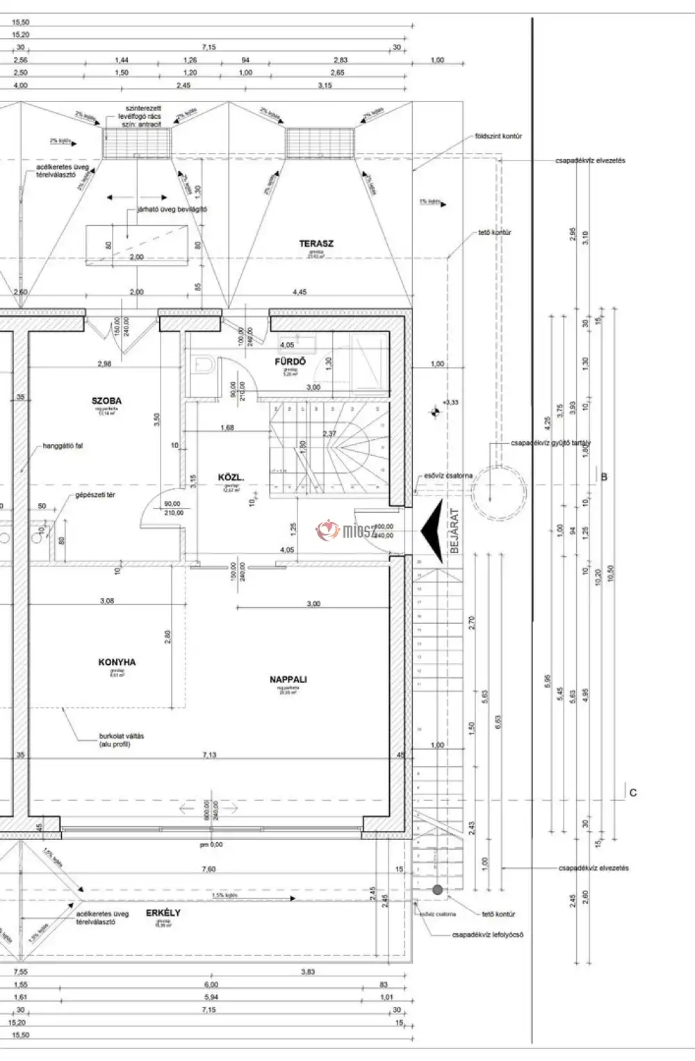
ÚJSZERŰ (2018) Kétszintes ikerházfél, hangulatos kerttel, teraszokkal. Az ingatlan 180 m2 (134 m2 lakótér + 26 m2 garázs + 40 m2 teraszok). A telek 445 m2.

ALSÓ szinten: 2 háló, egy gardróbszoba, fürdőszoba (zuhanyzó és fürdőkád, dupla mosdó, bidé és wc is van). GARÁZS, gépészeti helyiség és mosókonyha.

FELSŐ szinten: amerikai konyhás (prémium anyagokból és gépekkel felszerelt) nappali, étkező résszel. TERASZÁRÓL a Pilisi panorámában gyönyörködhetünk…
Szoba, hozzá tartozó zuhanyzó, mosdó, wc-vel. Ezen a szinten az összes helyiség kertkapcsolattal rendelkezik.

Műszakilag a legkorszerűbb anyagok felhasználásával épült az ikerház:
- 15 cm-es DRYVIT szigetelés, 3 rétegű, melegperemes nyílászárók (0,6 k), nappaliban emelő-toló ajtókkal. Alutokos redőnyök, a ház front oldalán ZSALUZIA árnyékoló, a hátsó teraszon pedig elektromos NAPELLENZŐ került beépítésre, SZÉLÉRZÉKELŐVEL.

A ház hűtési-fűtési- és melegvíz előállítási rendszerének az alapja egy minőségi Viessmann HŐSZIVATTYÚ, mely a padlón és a mennyezeten keresztül is fűt. Nyáron, a nagy hőségben a mennyezeti hűtés biztosítja az ideális hőmérsékletet az épületen belül.

Számtalan további extra, melyet látnia kell! Várom hívását.


INGATLAN ADATAI

Ingatlan jellege
ikerház
Belső terület
180 m²
Telek terület
445 m²
Tájolás
dél
Építési állapot
újszerű
Építési mód
tégla
Szobák száma
4 szoba
Terasz
40 m²
Épület szintje
2.
Épült
2018
Akadálymentes
igen
Ingatlan állapot
kívül: újszerű
belül: luxus
Szigetelés
15 cm
Fűtés
hőszivattyús
Komfort
duplakomfort
Közműállapot
csatorna: bekötve
gáz: bekötve
villany: bekötve
víz: bekötve
Energetika
nincs megadva
TÉRKÉP

Pest megye, Solymár, Anna kápolna környéke

KAPCSOLAT
Siklói György
Siklói György


+36 70 456 1140

ingatlan@callnet.hu

KAPCSOLAT
Siklói György

+36 70 456

ingatlan@

Az időpont kérés naptár ikonja
IDŐPONTOT KÉREK
A visszahívás kérés telefon ikonja egy azt körbe ölelő nyíllal
VISSZAHÍVÁST KÉREK
Ajánlom egy ismerősömnek ikon
AJÁNLOM EGY ISMERŐSÖMNEK
Facebook megosztás ikon
MEGOSZTÁS

KAPCSOLATFELVÉTEL

Küldés

Az üzenetet sikeresen elküldtük!
Hiba történt!
INGATLAN ADATAI

Ingatlan jellege

ikerház

Belső terület

180 m²

Telek terület

445 m²

Tájolás

dél

Építési állapot

újszerű

Építési mód

tégla

Szobák száma

4 szoba

Terasz

40 m²

Épület szintje

2.

Épült

2018

Ingatlan állapot

kívül: újszerű
belül: luxus

Szigetelés

15 cm

Fűtés

hőszivattyús

Komfort

duplakomfort

Közműállapot

csatorna: bekötve
gáz: bekötve
villany: bekötve
víz: bekötve

Energetika

nincs megadva

Az időpont kérés naptár ikonja
HTML
Az időpont kérés naptár ikonja
PDF

Hasonló ingatlan hírdetések

Eladó újszerű családi ház, vagy kertes ház hirdetést keres Solymár területén?
Tekintse meg további ajánlatainkat!

eladó családi ház, Solymár

eladó családi ház

Pest megye, Solymár
Eladó családi ház Solymár egyik legcsendesebb utcájában – nagy kerttel, modern megoldásokkal és különleges lehetőségekkel! Ha szeretnél a város közelében élni, de nyugodt, madárcsicsergős környezet...
Belső terület
136 m²
Telek terület
667 m²
Szobák
5

129.9 M Ft

eladó családi ház, Solymár

eladó családi ház

Pest megye, Solymár, Templom tér környéke
Egy darabka múlt, modern kényelemmel – Solymár szívében Eladó Solymár központjában, a Templom tér közelében, egy kivételes hangulatú, hagyományos stílusú parasztház. Az 1950-es évek körül épült ház...
Belső terület
177 m²
Telek terület
941 m²
Szobák
4

148 M Ft

eladó családi ház, Solymár

eladó családi ház

Pest megye, Solymár, Hutweide
Solymáron, az erdő ölelésében, csendes zsákutcában eladó egy varázslatos hangulatú otthon! Ha mindig is egy nyugodt, természetközeli életre vágyott, akkor megtalálta álmai otthonát! Ez a 719 m²-es ...
Belső terület
139 m²
Telek terület
719 m²
Szobák
5+2

125 M Ft

Pest megye - Solymár
Pest megye - Solymár
Pest megye - Solymár
Pest megye - Solymár
Pest megye - Solymár
Pest megye - Solymár
Pest megye - Solymár
Pest megye - Solymár
Pest megye - Solymár
Pest megye - Solymár
Pest megye - Solymár
Pest megye - Solymár
Pest megye - Solymár
Pest megye - Solymár
Pest megye - Solymár