Eladó újszerű ikerház - Pásztó

Új építésű!
Új építésű
KAPCSOLAT
Tariné H. Piroska


+36 20 337

tarine.piroska@

Az időpont kérés naptár ikonja
IDŐPONTOT KÉREK
A visszahívás kérés telefon ikonja egy azt körbe ölelő nyíllal
VISSZAHÍVÁST KÉREK
Ajánlom egy ismerősömnek ikon
AJÁNLOM EGY ISMERŐSÖMNEK
Facebook megosztás ikon
MEGOSZTÁS

KAPCSOLATFELVÉTEL

Küldés

Az üzenetet sikeresen elküldtük!
Hiba történt!
INGATLAN ADATAI

Ingatlan jellege

ikerház

Belső terület

94 m²

Telek terület

663 m²

Tájolás

kelet

Építési állapot

újszerű

Építési mód

tégla

Szobák száma

3 szoba

Terasz

17.75 m²

Épület szintje

1.

Ingatlan állapot

kívül: új
belül: új

Klíma

van

Szigetelés

15 cm

Ablak szerkezete

3 rétegű thermoplan

Fűtés

gázkazán

Komfort

összkomfort

Közműállapot

csatorna: bekötve
gáz: bekötve
villany: bekötve
víz: bekötve

Energetika

nincs megadva

Az időpont kérés naptár ikonja
HTML
Az időpont kérés naptár ikonja
PDF
Eladó újszerű ikerház
Ingatlan azonosító:
59_gs

Nógrád megye, Pásztó

Irányár

79.9 M Ft
(850 E Ft/㎡)

Szobák

3 szoba

Terület

94 m²

Telek terület

663 m²
INGATLAN LEÍRÁSA
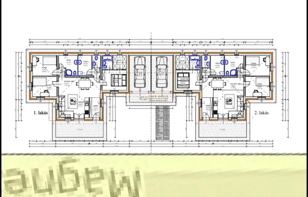
Pásztó frekventált, mégis nyugodt városrészében kínálunk megvételre tervek alapján megvalósuló, modern ikerházat. Az ingatlan két, egyenként 94,5 m²-es lakóegységből áll, gondosan megtervezett belső elrendezéssel.

A 94,5 m²-es lakótér helyiségei:
- előtér
- tágas, étkezős konyha
- világos nappali
- 3 külön nyíló szoba
- fürdőszoba
- külön WC
- gardróbszoba
- háztartási helyiség
- garázs

Az ingatlan praktikus elrendezése kényelmes mindennapokat biztosít, a modern kialakítás pedig hosszú távon is értékálló befektetést jelent. Az új építés lehetőséget ad arra, hogy a leendő tulajdonos saját igényei szerint alakítsa ki otthonát.

Kiváló lokáció, nyugodt környezet, mégis minden fontos intézmény és szolgáltatás könnyen elérhető.

Műszaki leírás – alkalmazott anyagok

Külső teherhordó falak: 30cm Porotherm N+F falazattal készülnek 15cm dryvit szigeteléssel.
Tetőszerkezet: hagyományos kontyolt nyeregtető szerkezettel TETOL FB vegyszerrel kezelve, láng-rovar elleni és gombavédelem céljából, 20cm üveggyapot szigetelés.
Tetőfedés: beton cserépfedéssel, szellőzőcserepekkel és élgerinc tömítő szalag beépítésével, antracit színben. Terasz és bejárat feletti tető szakaszokon hőfogók beépítésével szerelve.
Bádogos szerkezetek: Horgonyzott acéllemez fekvőeresz csatorna és lefolyó rendszer, eresz és lefolyó csatorna vápák és ólom szegélyek horgonyzott lemezből készülnek.
Födém: fafödém
Belső vakolat: gépi vakolás. Válaszfalak 10 cm Porotherm téglából.
Belső felületképzések: festett falak esetében kétszeri gletteléssel, 2 rétegben festve (Héra) diszperziós festékkel fehér színben, pozitív sarkoknál élvédővel ellátva, diletációs helyek kialakításával.
Bejárati ajtó adatai: 7 pontos záródó biztonsági és hőszigetelt ajtó (120.000 Ft-ig)
Kültéri nyílászárók adatai: 5 légkamrás fehér műanyag, k=1,0 W/mK hőszigeteléssel, építési engedély méreteinek megfelelően 3 réteg.
Beltéri ajtó: utólag beépíthető ajtó, 50.000.-Ft/db összeghatárig a megrendelő igénye szerint.
Külső párkányok: műanyag külső párkány kerül beépítésre.
Hőszigetelés: A tetőtérben 20 cm vastag, a tervdokumentációnak megfelelően. Hő és hangszigetelés az építési engedélynek megfelelő rétegben és vastagságban kerül kialakításra, aljzatbeton szigetelése 8 cm vastag hungarocell, homlokzaton 15 cm dryvit (fehér) vagy 12 cm grafitos.
Talajvíz elleni védelem: 1 gtr. bitumenes vastaglemez, GV3, a külső falakra felhajtva, a végleges terepszinttől 50 cm magasságig. A teljes földszinti szerelőbeton bitumenes vastaglemezzel szigetelve.
Egyéb vízszigetelés, vizesblokk: Kenhető folyékony fólia vízszigetelés, a negatív sarkokon hajlaterősítő szalag beépítésével az aljzaton és a fürdőkád körül 150 cm magasságban, a zuhanyzónál 210 cm magasságig.
Beltéri burkolatok: Hideg padló és fali burkolatok: fürdőben 210cm magasságig, a WC-ben 150 cm magasságig 5.000.-Ft/m2 költségig a konyhaburkolat a pult és a felső szekrény között 60 cm magasságban 5.000.-FT/m2 költségig.
Meleg burkolat: a meleg burkolatok fajlagos költsége szegéllyel együtt 5.000.-Ft/nm
Kültéri burkolat: Terasz kültéri fagyálló gress hidegburkolattal ellátott 5.000.-Ft/nm-ig
Homlokzat felületképző anyagok: gördülőszemcsés 1,5 mm-es műgyantás színvakolat.
Kültéri fa szerkezet: maximum 60 végpont, igény szerinti elhelyezéssel.
Épületgépészeti anyagok:
Kád: 50.000.- Ft/db
Kádtöltő csaptelep: 20.000.- Ft/db
Zuhanyzó: 50.000.- Ft/db
Mosdó csaptelep: 10.000.- Ft/db
Standard mosdó: 10.000.- Ft/db
Mosdó kis helységbe: 10.000.- Ft/db
WC + tartály: 30.000.- Ft/db
Meleg víz, fűtés rendszer: kondenzációs kombi kazánnal 300.000.- Ft ár-ig, 24 kw teljesítménnyel, kéménnyel és a hozzá tartozó bekötőelemekkel, 2 év gyártói garanciával, Padlófűtés mindenhol.
Hűtés: 2db fali klíma (hűtő/fűtő klíma) 300.000 Ft-ig
Egyéb: páraelszívó kiállás, mosógép kiállás, fürdőszobában törölközőszárítós radiátor.


Ne hagyja ki ezt a lehetőséget – ideális otthon, kiváló helyen!


INGATLAN ADATAI

Ingatlan jellege
ikerház
Belső terület
94 m²
Telek terület
663 m²
Tájolás
kelet
Építési állapot
újszerű
Építési mód
tégla
Szobák száma
3 szoba
Terasz
17.75 m²
Épület szintje
1.
Ingatlan állapot
kívül: új
belül: új
Klíma
van
Szigetelés
15 cm
Ablak szerkezete
3 rétegű thermoplan
Fűtés
gázkazán
Komfort
összkomfort
Közműállapot
csatorna: bekötve
gáz: bekötve
villany: bekötve
víz: bekötve
Energetika
nincs megadva

KAPCSOLAT
Tariné H. Piroska
Tariné H. Piroska


+36 20 337 0923

tarine.piroska@goldsmile.hu

KAPCSOLAT
Tariné H. Piroska

+36 20 337

tarine.piroska@

Az időpont kérés naptár ikonja
IDŐPONTOT KÉREK
A visszahívás kérés telefon ikonja egy azt körbe ölelő nyíllal
VISSZAHÍVÁST KÉREK
Ajánlom egy ismerősömnek ikon
AJÁNLOM EGY ISMERŐSÖMNEK
Facebook megosztás ikon
MEGOSZTÁS

KAPCSOLATFELVÉTEL

Küldés

Az üzenetet sikeresen elküldtük!
Hiba történt!
INGATLAN ADATAI

Ingatlan jellege

ikerház

Belső terület

94 m²

Telek terület

663 m²

Tájolás

kelet

Építési állapot

újszerű

Építési mód

tégla

Szobák száma

3 szoba

Terasz

17.75 m²

Épület szintje

1.

Ingatlan állapot

kívül: új
belül: új

Klíma

van

Szigetelés

15 cm

Ablak szerkezete

3 rétegű thermoplan

Fűtés

gázkazán

Komfort

összkomfort

Közműállapot

csatorna: bekötve
gáz: bekötve
villany: bekötve
víz: bekötve

Energetika

nincs megadva

Az időpont kérés naptár ikonja
HTML
Az időpont kérés naptár ikonja
PDF

Hasonló ingatlan hírdetések

Eladó újszerű családi ház, vagy kertes ház hirdetést keres Pásztó területén?
Tekintse meg további ajánlatainkat!

eladó új építésű ikerház, Pásztó

eladó új építésű ikerház

Nógrád megye, Pásztó, Sziget utca
Eladásra kínálok Nógrád vármegyében, Pásztón egy igényesen kialakított, új építésű lakóparkban található, amerikai stílusú ikerházat. Az ingatlan 62 m² lakóterületű, 310 m²-es saját telekrésszel rend...
Belső terület
62 m²
Telek terület
310 m²
Szobák
3

56.5 M Ft

eladó ikerház, Pásztó

eladó ikerház

Nógrád megye, Pásztó, Sziget utca
Eladásra kínálok Nógrád vármegyében, Pásztón egy új építésű, amerikai stílusú ikerházat. Az ingatlan 38 m² lakóterületű, 158 m²-es saját telekkel, modern műszaki tartalommal, minőségi anyagokból épül...
Belső terület
38 m²
Telek terület
158 m²
Szobák
2

39 M Ft

eladó új építésű családi ház, Pásztó

eladó új építésű családi ház

Nógrád megye, Pásztó
Eladásra kínálok Nógrád vármegyében, Pásztón egy új építésű, amerikai stílusú családi házat. Az ingatlan 90 m² lakóterülettel és 369 m²-es telken helyezkedik el, modern műszaki tartalommal, átgondo...
Belső terület
90 m²
Telek terület
370 m²
Szobák
4

71.5 M Ft

eladó családi ház, Pásztó

eladó családi ház

Nógrád megye, Pásztó
Eladásra kínálok kizárólag az Ingatlaniroda portfóliójából, Nógrád Vármegyében Pásztó egyik legcsendesebb, nyugodt utcájában, mégis a központhoz közel egy 1156nm kertbarát hangulatú telken fekvő, 76 m...
Belső terület
76 m²
Telek terület
1156 m²
Szobák
2

33 M Ft

Felújításra szorul!
Felújításra szorul
eladó családi ház, Pásztó

eladó családi ház

Nógrád megye, Pásztó
Eladásra kínálunk kizárólag az Ingatlanirodánk portfóliójából Pásztón, a városközponttól csupán néhány perc sétára, egy kb. 200 éve épült, felújítandó parasztházat. - Telek mérete: 1049 m² - Lakót...
Belső terület
75 m²
Telek terület
1049 m²
Szobák
2

15.9 M Ft

Felújításra szorul!
Felújításra szorul
eladó családi ház, Pásztó

eladó családi ház

Nógrád megye, Pásztó, Csermely utca
Eladásra kínálok, kizárólag az Ingatlaniroda portfóliójából Nógrád Vármegyében, Pásztón, egy 659 m²-es telken, egy felújítandó állapotú, két szintes családi házat, amely rengeteg lehetőséget rejt magá...
Belső terület
110 m²
Telek terület
659 m²
Szobák
3

33 M Ft

Felújításra szorul!
Felújításra szorul
eladó családi ház, Pásztó

eladó családi ház

Nógrád megye, Pásztó
DESIGN & KÉNYELEM EGYBEN Pásztó szívében, egy csendes kis utcában vár Önre egy különleges otthon 5 perc sétára a belvárostól. Ez nem csupán egy ház. Ez életstílus. Teljes körűen, saját részre fel...
Belső terület
80 m²
Telek terület
1119 m²
Szobák
2

37.9 M Ft

azonnal költözhető
Azonnal költözhető
eladó családi ház, Pásztó

eladó családi ház

Nógrád megye, Pásztó, Csillag tér
Otthon és befektetési lehetőség egy helyen, Pásztó szívében! Eladásra kínálok, kizárólag az Ingatlaniroda portfóliójából Nógrád Vármegyében Pásztón egy 683 nm-es telken fekvő, két különálló épületből...
Belső terület
250 m²
Telek terület
683 m²
Szobák
6

168 M Ft

Felújított!
Felújított
Nógrád megye - Pásztó
Nógrád megye - Pásztó
Nógrád megye - Pásztó
Nógrád megye - Pásztó
Nógrád megye - Pásztó
Nógrád megye - Pásztó
Nógrád megye - Pásztó