Eladó gyümölcsös - Alsópáhok

KAPCSOLAT
Floch Ildikó


+36 20 397

i.floch@

Az időpont kérés naptár ikonja
IDŐPONTOT KÉREK
A visszahívás kérés telefon ikonja egy azt körbe ölelő nyíllal
VISSZAHÍVÁST KÉREK
Ajánlom egy ismerősömnek ikon
AJÁNLOM EGY ISMERŐSÖMNEK
Facebook megosztás ikon
MEGOSZTÁS

KAPCSOLATFELVÉTEL

Küldés

Az üzenetet sikeresen elküldtük!
Hiba történt!
INGATLAN ADATAI

Ingatlan jellege

telek

Telek terület

3248 m²

Tájolás

délkelet

Panoráma

balatonra

Közműállapot

csatorna: nincs
gáz: nincs
villany: bekötve
víz: bekötve

Felépítmény

Van

Felépítmény állapota

Nem muszáj bontani

Felépítmény mérete

20 m²

Művelési ága

gyümölcsös

Aranykorona értéke

12 - gyenge

Övezeti besorolás

uj-mk

Az időpont kérés naptár ikonja
HTML
Az időpont kérés naptár ikonja
PDF
Eladó gyümölcsös
Ingatlan azonosító:
10773_sbr

Zala megye, Alsópáhok, Kátyán utca

Irányár

23.5 M Ft
(7.24 E Ft/㎡)

Telek terület

3248 m²
INGATLAN LEÍRÁSA
Eladó egy felújítandó 28 m2-es épületet egy 3248 m2-es zártkerti lankás telken Alsópáhok, Kátyán-hegy részén, balatoni panorámával!

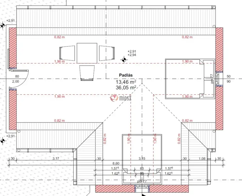
A telken lévő épület tulajdoni lap szerinti besorolása gazdasági épület, de tulajdonosai már elkészítettek egy tervet az újjáépítéshez. Az elképzelés szerint ebből az épületből egy tájegységre jellemző stílusjegyekkel rendelkező, oromfalas, alsó szinten egy 23,5 m2-es konyha, étkező, háló és egy 4,55 m2-es zuhanyzó + WC lesz. A padlástérben, külön bejárattal, további fekvőhelyek alakíthatók ki.
Ezeket a tervdokumentumokat az új tulajdonos rendelkezésre bocsátják. A felújítás bármikor elkezdhető.

Az épületbe a víz és villany már be van vezetve.Az épület mellett 3 m3-es szennyvíztartály került elhelyezésre. A telek legfelső részén különböző fák (alma, körte, szilva, kajszi, cseresznye, meggy mellett 3 nagyobb diófa és 8 db 2-3 éve telepített mandulafa) vannak telepítve.
A telek aszfaltos úton közelíthető meg.
A kisházból és a lejtős telekről Keleti irányba nézve rálátni a dombokkal körbevett környező településekre és Balatonra is.

Tulajdoni lap szerinti besorolása: gyümölcsös és gazdasági épület
Övezeti besorolása: Mk-1, kertes mezőgazdasági övezet
- beépítési mód: szabadon álló
- a beépítettség megengedett legnagyobb mértéke: 3 %,
- az előírt legkisebb építménymagasság 3,0 m,
- a megengedett legnagyobb építménymagasság 4,0 m,
- a zöldfelület legkisebb mértéke: telekterülethez viszonyított 90 %,
- építési engedély legalább 80 %-ban ténylegesen művelés alatt álló ingatlanra adható (szőlő, kert, gyümölcsös)
További részleteket írásban tudunk küldeni.

Alsópáhok a Balaton nyugati szegletében, a Keszthelyi-hegység lábánál fekszik, néhány kilométerre Hévíztől és Keszthelytől.
A szomszédos települések kedvelt fürdőhelyei, a tófürdő 3,5 km-re, keszthelyi Helikon strand 9,5 km távolságra vannak.

A közelben vezet az országos Kéktúra útvonala és a környéken számos biciklis útvonal - köztük az EV14-es útvonal - is megtalálható.

Az Alsópáhokon lévő 5*-os Kolping Family Resortban családi élményfürdővel és csendes wellness-szel várják a vendégeket. Napi jeggyel látogatható és gyalogosan 10 perc alatt elérhető.

Azon érdeklődők figyelmébe ajánljuk ezt az ingatlant, akik nyugodt, természeti környezetre vágynak, idilli kis házikóban, balatoni kilátással, mégis elérhető közelségben a testi és szellemi feltöltődést kínáló fürdők, strandok és pihenőhelyek világától, és azoknak is, akik az aktív pihenést részesítik előnyben.
Ideális választás lehet mindazok számára, akik egy meghitt, a balatoni tájba illeszkedő kis házban képzelik el a kikapcsolódást, egy olyan helyen, ahol valóban el lehet vonulni a rohanó hétköznapok elől.

Amennyiben felkeltette érdeklődését, kérem, keressen bizalommal!

Amiben segíteni tudjuk ingatlanvásárlását:
- jogi háttér
- földhivatali ügyintézés
- ingyenes, bankfüggetlen hitelügyintézés (CSOK és Babaváró ügyintézése is.)
- energetikai tanúsítvány elkészítése
- biztosítás
- belsőépítész

INGATLAN ADATAI

Ingatlan jellege
telek
Telek terület
3248 m²
Tájolás
délkelet
Panoráma
balatonra
Közműállapot
csatorna: nincs
gáz: nincs
villany: bekötve
víz: bekötve
Felépítmény
Van
Felépítmény állapota

Nem muszáj bontani
Felépítmény mérete
20 m²
Művelési ága
gyümölcsös
Övezeti besorolás
uj-mk
TÉRKÉP

Zala megye, Alsópáhok, Kátyán utca

KAPCSOLAT
Floch Ildikó
Floch Ildikó


+36 20 397 9972

i.floch@gdn-ingatlan.hu

KAPCSOLAT
Floch Ildikó

+36 20 397

i.floch@

Az időpont kérés naptár ikonja
IDŐPONTOT KÉREK
A visszahívás kérés telefon ikonja egy azt körbe ölelő nyíllal
VISSZAHÍVÁST KÉREK
Ajánlom egy ismerősömnek ikon
AJÁNLOM EGY ISMERŐSÖMNEK
Facebook megosztás ikon
MEGOSZTÁS

KAPCSOLATFELVÉTEL

Küldés

Az üzenetet sikeresen elküldtük!
Hiba történt!
INGATLAN ADATAI

Ingatlan jellege

telek

Telek terület

3248 m²

Tájolás

délkelet

Panoráma

balatonra

Ingatlan állapot

kívül:
belül:

Közműállapot

csatorna: nincs
gáz: nincs
villany: bekötve
víz: bekötve

Felépítmény

Van

Felépítmény állapota

Nem muszáj bontani

Felépítmény mérete

20 m²

Művelési ága

gyümölcsös

Aranykorona értéke

12 - gyenge

Övezeti besorolás

uj-mk

Az időpont kérés naptár ikonja
HTML
Az időpont kérés naptár ikonja
PDF

Hasonló ingatlan hírdetések

Eladó Gyümölcsös hirdetést keres Alsópáhok területén?
Tekintse meg további ajánlatainkat!

eladó telek, Alsópáhok

eladó telek

Zala megye, Alsópáhok
Balatoni panorámás, a Hévízi - tótól 3 km-re, a sármelléki reptértől 5 km- re a Graz-Bécs nemzetközi autópálya csatlakozástól 4 km- re Alsópáhokon négy helyrajzi számon lévő , belterületi , közművesít...
Telek terület
79776 m²

3600 M Ft

Zala megye - Alsópáhok
Zala megye - Alsópáhok
Zala megye - Alsópáhok
Zala megye - Alsópáhok
Zala megye - Alsópáhok
Zala megye - Alsópáhok
Zala megye - Alsópáhok