Eladó ház - Zamárdi

KAPCSOLAT
Szász István


+36 70 375

iroda@

Az időpont kérés naptár ikonja
IDŐPONTOT KÉREK
A visszahívás kérés telefon ikonja egy azt körbe ölelő nyíllal
VISSZAHÍVÁST KÉREK
Ajánlom egy ismerősömnek ikon
AJÁNLOM EGY ISMERŐSÖMNEK
Facebook megosztás ikon
MEGOSZTÁS

KAPCSOLATFELVÉTEL

Küldés

Az üzenetet sikeresen elküldtük!
Hiba történt!
INGATLAN ADATAI

Ingatlan jellege

családi ház

Belső terület

108 m²

Telek terület

694 m²

Tájolás

északnyugat

Építési állapot

használt

Építési mód

tégla

Szobák száma

4 szoba

Terasz

85 m²

Épület szintje

1.

Épült

1965

Ingatlan állapot

kívül: jó
belül: felújított

Klíma

van

Szigetelés

10 cm

Fűtés

cirko

Komfort

duplakomfort

Parkolás

van fedetlen felszíni beálló

Közműállapot

csatorna: bekötve
gáz: bekötve
villany: bekötve
víz: bekötve

Energetika

nincs megadva

Az időpont kérés naptár ikonja
HTML
Az időpont kérés naptár ikonja
PDF
Eladó ház
Ingatlan azonosító:
544_ott

Somogy megye, Zamárdi, (Fürdőtelep), Szent István út

Irányár

108.9 M Ft
(1.01 M Ft/㎡)

Szobák

4 szoba

Terület

108 m²

Telek terület

694 m²
INGATLAN LEÍRÁSA
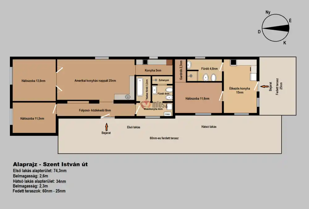
ELADÓ Zamárdi központi helyén, pár száz méterre a Balatontól, a Szent István utcában, 694nm-es rendezett telken, egy 1965-ös építésű, 108nm-es, két külön bejáratú lakóingatlanból álló családi ház. Ami egyszer 74,3nm alapterülettel 3 szobás amerikai konyhás kivitelben, illetve egy 34nm-es 1 szoba, konyhás apartman lakásból áll, fiatalos, felújított állapotban várja leendő tulajdonosát.

Az ingatlan az elmúlt pár évben folyamatos felújításon esett át, megújult a teljes tetőszerkezet, új cseréplemezzel, födém szigeteléssel nem egész egy éve. A homlokzat körbe 10cm es Dryvit, szigetelést kapott, ablakai pedig korszerű hő-hang szigetelt, redőnnyel, szúnyoghálóval szerelt műanyag nyílászárókra lettek cserélve minden helyiségben. A két lakás bejárat pedig több ponton záródó biztonsági ajtóval lett szerelve. A víz villamos hálózata is megújult, 3 fázisú hálózattal / 3x16A /, így elektromos autók töltésére is alkalmas a rendszer. A fűtésrendszer is új kondenzációs kazánnal frissült, illetve egy szintén új 200L-es villanybojlerrel szolgáltatja a meleg vizet. A felújítás gondosan dokumentálva lett fotókkal, amit a leendő tulajdonosnak át is lesz adva igény estén.
A nagyobbik lakás, külön kádas és épített zuhanyzós, bidés WC-s fürdővel rendelkezik, míg a kisebbik lakás, zuhanyzós fürdővel, de szintén bidés WC-s kivitelben.
A nagy lakás gáz főzőlappal, villanysütővel és szintén újszerű konyhabútorral, a kis lakás gáztűzhellyel és a konyhapultba épített mosógéppel rendelkezik.
A szobák, nappali és a vizes helyiségek, szintén pár éve, laminált és minőségi járólap burkolatokat, csempéket kaptak.
A komfort érzet növelése érdekében, mindkét ingatlan külön nagy teljesítményű inverteres klímával szerelt.
A két lakás jelenleg egy gáz és villamos hálózaton van, így mérőórákkal nincs külön bontva.

A ház mellett egy hatalmas 60nm-es fedett terasz fut végig, valamint a kis lakás is egy 25nm-es fedett terasszal rendelkezik a hátsó kert irányába, amik hétvégi ebédekhez, baráti összejövetelekhez is kiváló teret nyújtanak.

Továbbá a kertben fúrt kutat, szalonnasütőt, bográcsozóval, kerti tárolót és egy mobil kisházat is találunk.

Parkolás a ház előtt, 3 gépkocsi számára kialakított helyen lehet, vagy igény szerint a kerten belül.

A fent leírtakat figyelembe véve kiváló választás mindazoknak, akik egy jó elosztású, fiatalos hangulatú, két család részére is alkalmas házat keresnek, ami befektetésként is kiváló választás, mivel évek óta ki van adva mindkét ingatlan. Így a bérlők akár maradnak is tulajdonos váltás esetén.

A környék infrastruktúrája kiváló: A vonatpályaudvar és a busz megállópár percre a háztól, ahogy élelmiszer boltok, egyéb üzletek, piac is egy kellemes sétára található.

A 108,9MFt-os ár irányár! Az ingatlan per és tehermentes, így az adásvételt követően rövid időn belül birtokba vehető, költözhető. Kérdés és megtekintési szándék estén, hétvégén is várom a hívását!

Irodánk továbbá, banki kapcsolatainknak köszönhetően szakértő és díjmentes segítséget nyújt, a vásárláshoz kapcsolódó vevői hitelügylet lebonyolításához, valamint kedvező 0,5%-os ügyvédi díjazással tesszük még rugalmasabbá az adás-vételt.

INGATLAN ADATAI

Ingatlan jellege
családi ház
Belső terület
108 m²
Telek terület
694 m²
Tájolás
északnyugat
Építési állapot
használt
Építési mód
tégla
Szobák száma
4 szoba
Terasz
85 m²
Épület szintje
1.
Épült
1965
Ingatlan állapot
kívül: jó
belül: felújított
Klíma
van
Szigetelés
10 cm
Fűtés
cirko
Komfort
duplakomfort
Parkolás
van fedetlen felszíni beálló
Közműállapot
csatorna: bekötve
gáz: bekötve
villany: bekötve
víz: bekötve
Energetika
nincs megadva
TÉRKÉP

Somogy megye, Zamárdi, Szent István út

KAPCSOLAT
Szász István
Szász István


+36 70 375 6500

iroda@otthonod.com

KAPCSOLAT
Szász István

+36 70 375

iroda@

Az időpont kérés naptár ikonja
IDŐPONTOT KÉREK
A visszahívás kérés telefon ikonja egy azt körbe ölelő nyíllal
VISSZAHÍVÁST KÉREK
Ajánlom egy ismerősömnek ikon
AJÁNLOM EGY ISMERŐSÖMNEK
Facebook megosztás ikon
MEGOSZTÁS

KAPCSOLATFELVÉTEL

Küldés

Az üzenetet sikeresen elküldtük!
Hiba történt!
INGATLAN ADATAI

Ingatlan jellege

családi ház

Belső terület

108 m²

Telek terület

694 m²

Tájolás

északnyugat

Építési állapot

használt

Építési mód

tégla

Szobák száma

4 szoba

Terasz

85 m²

Épület szintje

1.

Épült

1965

Ingatlan állapot

kívül: jó
belül: felújított

Klíma

van

Szigetelés

10 cm

Fűtés

cirko

Komfort

duplakomfort

Parkolás

van fedetlen felszíni beálló

Közműállapot

csatorna: bekötve
gáz: bekötve
villany: bekötve
víz: bekötve

Energetika

nincs megadva

Az időpont kérés naptár ikonja
HTML
Az időpont kérés naptár ikonja
PDF

Hasonló ingatlan hírdetések

Eladó családi ház, vagy kertes ház hirdetést keres Zamárdi területén?
Jelenleg nincsenek hasonló aktuális ajánlatok Zamárdi településen.
Tekintse meg további Somogy megyei ajánlatainkat !

eladó családi ház, Somogyegres

eladó családi ház

Balatontól 30 percre!

Somogy megye, Somogyegres
Somogyegres, Tab járáshoz tartozó, csendes, vidéki zsákfalu. A Szabadság utca ezen vége csak egyik oldalon beépített házakkal, a másik oldal szántóföld, és erdő. A ház kettő részre van osztva. Egy ut...
Belső terület
105 m²
Telek terület
2175 m²
Szobák
3

12.5 M Ft + Áfa

Felújításra szorul!
Felújításra szorul
eladó családi ház, Siófok

eladó családi ház

Somogy megye, Siófok, Balaton part
ELADÓ! Siófok, (Somogy vármegye) Balaton part, városközpont és a ferdeház közelében, a főút mellett, 360 m2-es apartmanház, 720 m2-es területen. A ház tökéletesen megfelel egy 4 tagú család lakhat...
Belső terület
360 m²
Szobák
9

175 M Ft

eladó nyaraló, Balatonfenyves

eladó nyaraló

Somogy megye, Balatonfenyves, Szondi utca
BALATONPART KÖZVETLEN KÖZELÉBEN, NAPPALI+3 HÁLÓSZOBÁS NYARALÓ Megvételre kínálunk a Balaton parttól 200 m-re lévő 70 nm-es kiváló elosztású, téliesített nappali+3 hálószobás nyaralót, fedett terass...
Belső terület
70 m²
Telek terület
450 m²
Szobák
4

89.9 M Ft

eladó ikerház, Siófok

eladó ikerház

Somogy megye, Siófok, Balatonkiliti
Kiváló lehetőség Siófokon – tágas családi ház + külön apartman, csendes környezetben! 490 m²-es telken elhelyezkedő, összesen 155 m² 7 szobás lakóterületű családi ház, kiegészítve egy különálló, 40 m...
Belső terület
155 m²
Telek terület
490 m²
Szobák
7

120 M Ft

110 M Ft

eladó családi ház, Kapoly

eladó családi ház

Itt jó megpihenni! A külföldiek egyre többen telepednek le itt! Vajon miért?

Somogy megye, Kapoly, Rákóczi utca
Sikerült megtekinteni az 1. fotóra kattintva a házról készült videót? - Balatontól, Siófoktól 20 km-re található Kapoly, - egy eldugott, kis lélekszámú (600 fő alatt!), rendkívül szép fekvésű tel...
Belső terület
115 m²
Telek terület
3610 m²
Szobák
3

42 M Ft

sürgős!
Sürgős
eladó családi ház, Balatonfenyves

eladó családi ház

„Somogyi lehetőség Balatonfenyves-Imremajor – lakhatásra és pihenésre egyaránt ideális.”

Somogy megye, Balatonfenyves, Imremajor, Nyugati utca
Balatonfenyves Imremajor városrészében, a Nyugati utcában kínálunk megvételre egy kiváló elhelyezkedésű családi házat. Az ingatlan csendes, nyugodt környezetben található, ideális választás mindazo...
Belső terület
70 m²
Szobák
2+1

57 M Ft

eladó családi ház, Balatonboglár-Szőlőskislak

eladó családi ház

Álomszép kert: Gondozott külső terület, amely pihenésre csábít.

Somogy megye, Balatonboglár-Szőlőskislak, Kishegyi
Az ingatlan bútorozottan kerül értékesítésre, a bútorzat pontos összetétele nem képezi a teljesítés tárgyát. Egy olyan otthonról álmodik, amely ötvözi a nyugalmat és a Balaton közelségét? Akkor ez...
Belső terület
180 m²
Szobák
7

131.57 M Ft

(349 E €)

eladó családi ház, Balatonmáriafürdő

eladó családi ház

Somogy megye, Balatonmáriafürdő
Eladó Balatonmáriafürdő üdülőövezeti részén ,központi helyen, forgalomtól mentes utcában családi ház melynek az aljában egy nagy múltú étterem működött hajdanán . A tulajdonos kiöregedett de lehető...
Belső terület
250 m²
Telek terület
434 m²
Szobák
3

110 M Ft

Somogy megye - Zamárdi
Somogy megye - Zamárdi
Somogy megye - Zamárdi
Somogy megye - Zamárdi
Somogy megye - Zamárdi
Somogy megye - Zamárdi
Somogy megye - Zamárdi
Somogy megye - Zamárdi
Somogy megye - Zamárdi
Somogy megye - Zamárdi
Somogy megye - Zamárdi
Somogy megye - Zamárdi
Somogy megye - Zamárdi
Somogy megye - Zamárdi
Somogy megye - Zamárdi
Somogy megye - Zamárdi
Somogy megye - Zamárdi
Somogy megye - Zamárdi
Somogy megye - Zamárdi
Somogy megye - Zamárdi
Somogy megye - Zamárdi
Somogy megye - Zamárdi
Somogy megye - Zamárdi
Somogy megye - Zamárdi
Somogy megye - Zamárdi
Somogy megye - Zamárdi
Somogy megye - Zamárdi
Somogy megye - Zamárdi
Somogy megye - Zamárdi
Somogy megye - Zamárdi
Somogy megye - Zamárdi