Eladó ház - Pusztavacs

KAPCSOLAT
Borbély Hajnalka


+36 20 413

bhajnalkaotthonodingatlaniroda@

Az időpont kérés naptár ikonja
IDŐPONTOT KÉREK
A visszahívás kérés telefon ikonja egy azt körbe ölelő nyíllal
VISSZAHÍVÁST KÉREK
Ajánlom egy ismerősömnek ikon
AJÁNLOM EGY ISMERŐSÖMNEK
Facebook megosztás ikon
MEGOSZTÁS

KAPCSOLATFELVÉTEL

Küldés

Az üzenetet sikeresen elküldtük!
Hiba történt!
INGATLAN ADATAI

Ingatlan jellege

családi ház

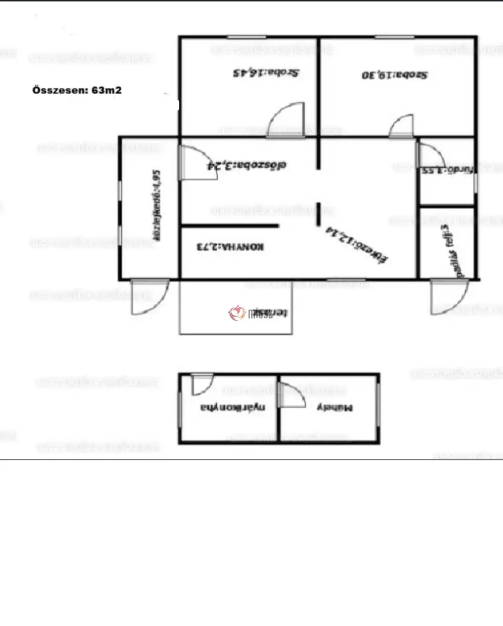
Belső terület

63 m²

Telek terület

900 m²

Tájolás

északnyugat

Panoráma

kertre néző

Építési állapot

használt

Építési mód

vegyes

Szobák száma

2 szoba

Szobák elhelyezkedése

külön nyílik min. 2 szoba, de a fürdőből

Terasz

4 m²

Épület szintje

1.

Épült

kb. 1970

Ingatlan állapot

kívül: jó
belül: jó

Ablak szerkezete

2 rétegű thermoplan

Fűtés

gázkonvektor

Komfort

összkomfort

Parkolás

van önálló garázs

Közműállapot

csatorna: bekötve
gáz: bekötve
villany: bekötve
víz: bekötve

Energetika

nincs

Az időpont kérés naptár ikonja
HTML
Az időpont kérés naptár ikonja
PDF
Eladó ház
Belső azonosító:
Hajni
Ingatlan azonosító:
50_aoi

Pest megye, Pusztavacs

Irányár

31.5 M Ft
(500 E Ft/㎡)

Szobák

2 szoba

Terület

63 m²

Telek terület

900 m²
INGATLAN LEÍRÁSA
Pusztavacs Településen, 63m2-es Családi ház 900m2-es területtel eladó! Az ingatlan jó állapotú, karbantartott ingatlan. Beton alapra vegyes falazatból épült, tetőszerkezete jó állapotú, födéme szigetelt. Nyílászáróit pár éve kicserélték, illetve a konyha része is új kialakítást kapott. Kettő hálószobával, konyha étkezővel, fürdőszobával, és előszoba résszel rendelkezik. Tartozik hozzá, egy nyárikonyha , mely közel 20m2-es, itt jelenleg egy műhely és egy konyha, kamra lett kialakítva. Igény esetén, a fő ingatlan ezzel a résszel akár tovább bővíthető. Tartozik a házhoz több melléképület, pince, terményes, fatároló, és ólak. Kertje körbekerített, rendezett, fúrt kúttal elátott. Minden közmű bevezetésre került, fűtéséről gáz konvektorok, cserépkályha gondoskodik. A ház igény esetén még bővíthető, van benne lehetőség.
Amennyiben egy csendes, biztonságos településen szeretne élni, elérhető áron szeretne ingatlant vásárolni, úgy hívjon bizalommal. Falusi Csok, Támogatott hitelek , felvehetők az Ingatlanra.

INGATLAN ADATAI

Ingatlan jellege
családi ház
Belső terület
63 m²
Telek terület
900 m²
Tájolás
északnyugat
Panoráma
kertre néző
Építési állapot
használt
Építési mód
vegyes
Szobák száma
2 szoba
Szobák elhelyezkedése
külön nyílik min. 2 szoba, de a fürdőből
Terasz
4 m²
Épület szintje
1.
Épült
kb. 1970
Ingatlan állapot
kívül: jó
belül: jó
Ablak szerkezete
2 rétegű thermoplan
Fűtés
gázkonvektor
Komfort
összkomfort
Parkolás
van önálló garázs
Közműállapot
csatorna: bekötve
gáz: bekötve
villany: bekötve
víz: bekötve
Energetika
nincs
TÉRKÉP

Pest megye, Pusztavacs

KAPCSOLAT
Borbély Hajnalka
Borbély Hajnalka


+36 20 413 2417

bhajnalkaotthonodingatlaniroda@gmail.com

KAPCSOLAT
Borbély Hajnalka

+36 20 413

bhajnalkaotthonodingatlaniroda@

Az időpont kérés naptár ikonja
IDŐPONTOT KÉREK
A visszahívás kérés telefon ikonja egy azt körbe ölelő nyíllal
VISSZAHÍVÁST KÉREK
Ajánlom egy ismerősömnek ikon
AJÁNLOM EGY ISMERŐSÖMNEK
Facebook megosztás ikon
MEGOSZTÁS

KAPCSOLATFELVÉTEL

Küldés

Az üzenetet sikeresen elküldtük!
Hiba történt!
INGATLAN ADATAI

Ingatlan jellege

családi ház

Belső terület

63 m²

Telek terület

900 m²

Tájolás

északnyugat

Panoráma

kertre néző

Építési állapot

használt

Építési mód

vegyes

Szobák száma

2 szoba

Szobák elhelyezkedése

külön nyílik min. 2 szoba, de a fürdőből

Terasz

4 m²

Épület szintje

1.

Épült

kb. 1970

Ingatlan állapot

kívül: jó
belül: jó

Ablak szerkezete

2 rétegű thermoplan

Fűtés

gázkonvektor

Komfort

összkomfort

Parkolás

van önálló garázs

Közműállapot

csatorna: bekötve
gáz: bekötve
villany: bekötve
víz: bekötve

Energetika

nincs

Az időpont kérés naptár ikonja
HTML
Az időpont kérés naptár ikonja
PDF

Hasonló ingatlan hírdetések

Eladó családi ház, vagy kertes ház hirdetést keres Pusztavacs területén?
Tekintse meg további ajánlatainkat!

eladó családi ház, Pusztavacs

eladó családi ház

Kizárólag Az-Otthonod-Ingatlanirodánál!

Pest megye, Pusztavacs
Kizárólag Az-Otthonod-Ingatlanirodánál! Pusztavacson, 61,36m2-es Családi ház, 2130m2-es telek területtel eladó! Ha még megfizethető áron szeretne Családi házat, akkor ki ne hagyja ezt az ingatlant...
Belső terület
61 m²
Telek terület
2130 m²
Szobák
2

32.9 M Ft

eladás folyamatban!
Eladás folyamatban
Pest megye - Pusztavacs
Pest megye - Pusztavacs
Pest megye - Pusztavacs
Pest megye - Pusztavacs
Pest megye - Pusztavacs
Pest megye - Pusztavacs
Pest megye - Pusztavacs
Pest megye - Pusztavacs
Pest megye - Pusztavacs
Pest megye - Pusztavacs
Pest megye - Pusztavacs
Pest megye - Pusztavacs
Pest megye - Pusztavacs
Pest megye - Pusztavacs
Pest megye - Pusztavacs
Pest megye - Pusztavacs
Pest megye - Pusztavacs
Pest megye - Pusztavacs
Pest megye - Pusztavacs
Pest megye - Pusztavacs
Pest megye - Pusztavacs
Pest megye - Pusztavacs
Pest megye - Pusztavacs
Pest megye - Pusztavacs