Eladó ház - Nyáregyháza

CSOK igényelhető
CSOK igényelhető
KAPCSOLAT
Tóthné Teleki Éva


+36 70 525

telekiesfia@

Az időpont kérés naptár ikonja
IDŐPONTOT KÉREK
A visszahívás kérés telefon ikonja egy azt körbe ölelő nyíllal
VISSZAHÍVÁST KÉREK
Ajánlom egy ismerősömnek ikon
AJÁNLOM EGY ISMERŐSÖMNEK
Facebook megosztás ikon
MEGOSZTÁS

KAPCSOLATFELVÉTEL

Küldés

Az üzenetet sikeresen elküldtük!
Hiba történt!
INGATLAN ADATAI

Ingatlan jellege

családi ház

Belső terület

74 m²

Telek terület

3334 m²

Tájolás

kelet, nyugat

Panoráma

természetre néző

Építési állapot

használt

Építési mód

vegyes

Szobák száma

2 szoba

Épület szintje

1.

Ingatlan állapot

kívül: felújított
belül: felújított

Klíma

van

Szigetelés

10 cm

Fűtés

központi fűtés

Komfort

összkomfort

Közműállapot

csatorna: bekötve
gáz: bekötve
villany: bekötve
víz: bekötve

Energetika

nincs megadva

Az időpont kérés naptár ikonja
HTML
Az időpont kérés naptár ikonja
PDF
Eladó ház
Ingatlan azonosító:
469_tef

Pest megye, Nyáregyháza

Irányár

47.9 M Ft
(647.3 E Ft/㎡)

Szobák

2 szoba

Terület

74 m²

Telek terület

3334 m²
INGATLAN LEÍRÁSA
A Teleki és Fia Ingatlan értékesítésre kínálja ezt a 3 helyrajzi számon álló mindösszesen 3342 nm.-es összközműves telken álló 74 nm.-es hasznos alapterületű családi házat. Az épület 2022-ben teljesen fel lett újítva. HITELEZHETŐ!
Beton alapon tégla és vegyes falazatú , fafödémes, nyeregtetős épület. A tégla falazaton 10 cm. hungarocell dryvit szigetelés.
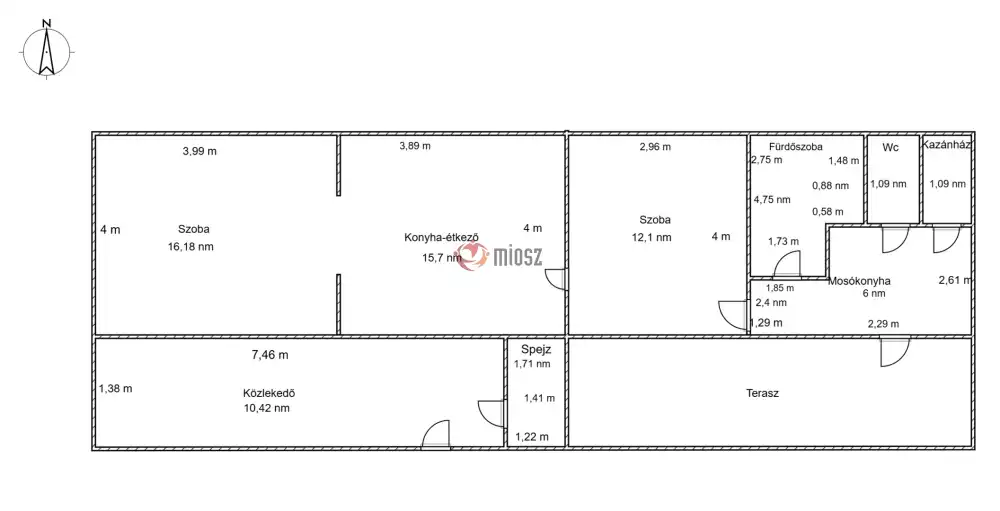
A belső térben: nappali, teraszra nyíló ajtóval, konyha, étkező, előszoba, hálószoba, közlekedő, fürdőszoba, mosdó-wc, háztartási helyiség, éléskamra , kazánház került kialakításra.
A felújítás során új fűtésrendszer, burkolatok, elektromos vezetékek , fürdőszoba, terasz, külső homlokzat, és födémszigetelések történtek.
Beépítve 3 bejárati ajtó és műanyag ablakok redőnnyel és szúnyoghálóval. A fűtésrendszer és a meleg víz szolgáltatás Ariston kondenzációs gázkazánról működik radiátorokkal. A fűtés- hűtéskiegészítéseként a nappaliban egy hűtő- fűtő klíma kapott helyet. . A tető jó állapotú, a födém új szigetelést kapott. Az új burkolatok: laminált padló, járólap, csempe, tapétás festett falazat.
A hátsó bejáratnál egy új faácsolatos terasz áll. Az első terasznál virágok nyílnak.
Az udvar mart aszfaltos, új az első kerítés is.
Aki vidéken képzeli el új otthonát, itt a kiváló lehetőség. A tágas nagy hátsó telekrészen lehet gazdálkodni, állatot tartani. Az első udvaron gyermek játszótér és medence is elfér.
Ezen a tájon az év minden szakában kiélvezheti a hamisítatlan vidéki életérzést.
Kérem hívjon bizalommal. Minden egy helyen: Irodánk ügvédi asszisztenciát és bankfüggetlen hitelügyintézői segítséget nyújt ügyfeleinek.

INGATLAN ADATAI

Ingatlan jellege
családi ház
Belső terület
74 m²
Telek terület
3334 m²
Tájolás
kelet, nyugat
Panoráma
természetre néző
Építési állapot
használt
Építési mód
vegyes
Szobák száma
2 szoba
Épület szintje
1.
Ingatlan állapot
kívül: felújított
belül: felújított
Klíma
van
Szigetelés
10 cm
Fűtés
központi fűtés
Komfort
összkomfort
Közműállapot
csatorna: bekötve
gáz: bekötve
villany: bekötve
víz: bekötve
Energetika
nincs megadva
TÉRKÉP

Pest megye, Nyáregyháza

KAPCSOLAT
Tóthné Teleki Éva
Tóthné Teleki Éva


+36 70 525 3985

telekiesfia@gmail.com

KAPCSOLAT
Tóthné Teleki Éva

+36 70 525

telekiesfia@

Az időpont kérés naptár ikonja
IDŐPONTOT KÉREK
A visszahívás kérés telefon ikonja egy azt körbe ölelő nyíllal
VISSZAHÍVÁST KÉREK
Ajánlom egy ismerősömnek ikon
AJÁNLOM EGY ISMERŐSÖMNEK
Facebook megosztás ikon
MEGOSZTÁS

KAPCSOLATFELVÉTEL

Küldés

Az üzenetet sikeresen elküldtük!
Hiba történt!
INGATLAN ADATAI

Ingatlan jellege

családi ház

Belső terület

74 m²

Telek terület

3334 m²

Tájolás

kelet, nyugat

Panoráma

természetre néző

Építési állapot

használt

Építési mód

vegyes

Szobák száma

2 szoba

Épület szintje

1.

Ingatlan állapot

kívül: felújított
belül: felújított

Klíma

van

Szigetelés

10 cm

Fűtés

központi fűtés

Komfort

összkomfort

Közműállapot

csatorna: bekötve
gáz: bekötve
villany: bekötve
víz: bekötve

Energetika

nincs megadva

Az időpont kérés naptár ikonja
HTML
Az időpont kérés naptár ikonja
PDF

Hasonló ingatlan hírdetések

Eladó családi ház, vagy kertes ház hirdetést keres Nyáregyháza területén?
Jelenleg nincsenek hasonló aktuális ajánlatok Nyáregyháza településen.
Tekintse meg további Pest megyei ajánlatainkat !

eladó családi ház, Szokolya

eladó családi ház

Panorámás családi ház Szokolyán – nagyméretű, világos szobák, két generációnak is ideális!

Pest megye, Szokolya
Panorámás családi ház Szokolyán – nagyméretű, világos szobák, két generációnak is ideális! Eladó Szokolya belterületén, a falu szélén egy 2507 nm-es, panorámás telken fekvő, összközműves ingatlan. A ...
Belső terület
220 m²
Telek terület
2507 m²
Szobák
5

99.99 M Ft

Panorámás!
Panorámás
eladó nyaraló, Vác

eladó nyaraló

Eladó, Új állapotú könnyűszerkezetes nyaraló Vác Kútvölgyben! ✨ 27 m²-es modern, panorámás lakótér 875 m²-es telekkel! Energiatanúsítvány, víz és villany a telken, déli tájolással! ⛱️ Álmai otthona vagy befektetése Pest megyében most elérhető! Ne hagyja ki ezt a lehetőséget! #nyaraló #Vác #panoráma

Pest megye, Vác, Kútvölgy
Új, konténerház nyaralónak vagy akár állandó lakhatásra eladó Vác egyik legkedveltebb részén, Kútvölgyben! Ez a modern ingatlan tökéletes választás lehet pihenésre vagy befektetésre. Az ingatlan 27...
Belső terület
27 m²
Telek terület
875 m²
Szobák
1

25.9 M Ft

eladó családi ház, Albertirsa

eladó családi ház

Albertirsán zöldövezeti ingatlan eladó

Pest megye, Albertirsa
A Teleki és Fia Ingatlan értékesítésre kínálja Albertirsa zártkerti övezetében aszfalttól 30 méterre, ezt az 1239 nm.-es elkerített ingatlant, a rajta álló 104 nm.-es épülettel és jó állapotú melléké...
Belső terület
104 m²
Telek terület
1239 m²
Szobák
4

54.9 M Ft

kétgenerációs!
Kétgenerációs
eladó családi ház, Albertirsa

eladó családi ház

Albertirsán tágas családiház eladó.

Pest megye, Albertirsa, Irsa
A Teleki és Fia Ingatlan értékesítésre kínálja Albertirsán a városközpont közelében ezt a 803 nm.-es összközműves körbe kerített ingatlant, melynek utcafrontja 63 méter. A telken egy 110 nm.-es haszno...
Belső terület
110 m²
Telek terület
803 m²
Szobák
4

89 M Ft

azonnal költözhető
Azonnal költözhető
eladó családi ház, Perőcsény

eladó családi ház

Pest megye, Perőcsény
Ásványvíz kút eladó Perőcsényben a hozzátartozó telekkel és épületekkel! A kivételes, Európában egyedülálló, prémium minőségű víz főbb jellemzői: utókezelést nem igényel, baktérium- és trícium ment...
Belső terület
40 m²
Telek terület
3243 m²
Szobák
1

120 M Ft

eladó családi ház, Mikebuda

eladó családi ház

Mikebudán erdő ölelésében tanya eladó

Pest megye, Mikebuda
A Teleki és Fia Ingatlan értékesítésre kínálja Mikebuda külterületén ERDŐ ÖLELÉSÉBEN ezt a 3172 nm.-es tanyát, mely lakóház és gazdasági épület, udvar besorolású. TEHERMENTES,HITELEZHETŐ ! TÖBBGENERÁ...
Belső terület
120 m²
Telek terület
3172 m²
Szobák
7

45.9 M Ft

alkalmi vétel
Alkalmi vétel
eladó családi ház, Verőce

eladó családi ház

Pest megye, Verőce, Béke utca
Meghitt otthon zöldövezeti csendben – ahol a kert mesél, a ház pedig valóban hazavár Eladó egy nettó 245 m²-es, háromszintes, 2003-ban üdülőterületen épült, (2006 óta belterületi besorolású) család...
Belső terület
245 m²
Telek terület
720 m²
Szobák
5

185 M Ft

eladó nyaraló, Vác

eladó nyaraló

Pest megye, Vác, Máriaudvar
........
Belső terület
41 m²
Telek terület
553 m²
Szobák
2

42.9 M Ft

Pest megye - Nyáregyháza
Pest megye - Nyáregyháza
Pest megye - Nyáregyháza
Pest megye - Nyáregyháza
Pest megye - Nyáregyháza
Pest megye - Nyáregyháza
Pest megye - Nyáregyháza
Pest megye - Nyáregyháza
Pest megye - Nyáregyháza
Pest megye - Nyáregyháza
Pest megye - Nyáregyháza
Pest megye - Nyáregyháza
Pest megye - Nyáregyháza
Pest megye - Nyáregyháza
Pest megye - Nyáregyháza
Pest megye - Nyáregyháza
Pest megye - Nyáregyháza
Pest megye - Nyáregyháza
Pest megye - Nyáregyháza
Pest megye - Nyáregyháza
Pest megye - Nyáregyháza
Pest megye - Nyáregyháza
Pest megye - Nyáregyháza
Pest megye - Nyáregyháza