KAPCSOLATFELVÉTEL
Ingatlan jellege
családi ház
Belső terület
193 m²
Telek terület
785 m²
Tájolás
délnyugat
Építési állapot
használt
Építési mód
tégla
Szobák száma
4 szoba
Épület szintje
földszintes.
Épült
2025
Ingatlan állapot
kívül: új
belül: új
Ablak szerkezete
3 rétegű thermoplan
Fűtés
hőszivattyús
Komfort
duplakomfort
Parkolás
van, nem meghatározott
Közműállapot
csatorna: bekötve
gáz: bekötve
villany: bekötve
víz: bekötve
Energetika
nincs megadva
Komárom-Esztergom megye, Környe, Bajcsy lakópark
Irányár
(408.55 E Ft/㎡)
Szobák
Terület
Telek terület
Megvételre kínálunk Környe egyik legkedveltebb, természetközeli és gyermekbarát részén, a Bajcsy lakóparkban egy 193 m²-es, duplakomfortos, új építésű szerkezetkész családi házat, amely 785 m²-es telken helyezkedik el.
A modern kialakítású otthon téglaépítésű, szigeteléssel és cserépfedéssel ellátott. A fűtésről hőszivattyús rendszer gondoskodik padlófűtéssel, a nyári komfortot pedig mennyezeti hűtés fogja biztosítani a tervek szerint.
Az ingatlan szerkezetkész állapotban kerül értékesítésre, így a leendő tulajdonos saját ízlése szerint választhatja ki a burkolatokat, padozatot, nyílászárókat és a falak színeit. Igény esetén a befejezés is vállalható.
Tervezett átadás: 2025. november.
Vételár szerkezetkész állapotban: 78.850.000 Ft.
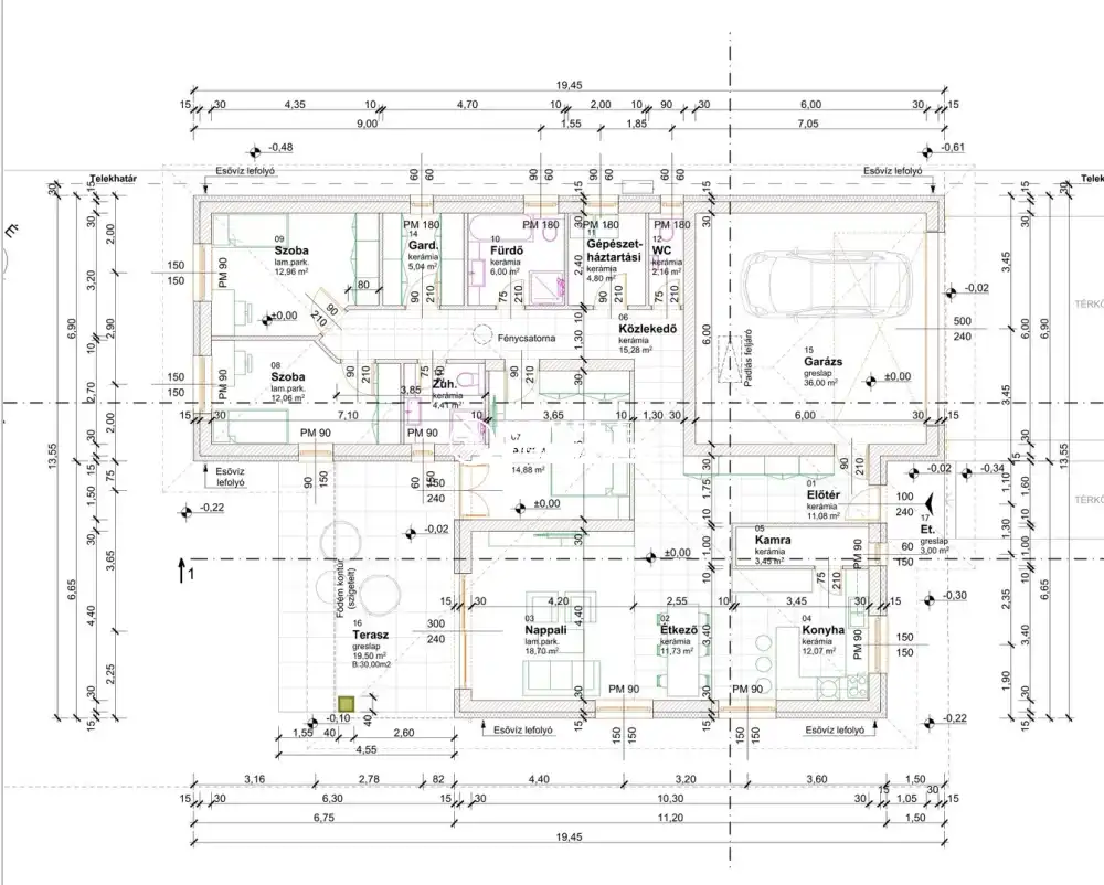
A ház elrendezése:
• tágas, amerikai konyhás nappali étkezővel
• három különálló hálószoba
• két fürdőszoba
• külön vendég-WC
• kamra
• gépészeti helyiség
• 19,5 m²-es fedett terasz
• 36 m²-es, elektromos kapuval ellátott dupla garázs, az épületből közvetlenül megközelíthető
Az ingatlanban fénycsatorna is helyet kap, amely természetes megvilágítást biztosít az előtérben.
Ez a ház tökéletes választás mindazoknak, akik modern, energiatakarékos és kényelmes otthont keresnek egy csendes, zöldövezeti környezetben, mégis közel a város szolgáltatásaihoz.
A környék infrastruktúrája kiváló, a lakóparkban és a településen több családbarát szolgáltatás is elérhető.
CSOK + igénybe vehető.
Irodánk teljeskörű szakmai tanácsadással, ingyenes hitelügyintézéssel, profi ügyvédi háttérrel rendelkezik.
Kérdése van? Szeretné megnézni az ingatlant?
Keressen bátran a megadott elérhetőségeim bármelyikén!
belül: új
gáz: bekötve
villany: bekötve
víz: bekötve
Komárom-Esztergom megye, Környe, Bajcsy lakópark

+36 70 394 2794
balla.gabriella@komplexingatlan.com
KAPCSOLATFELVÉTEL
Ingatlan jellege
családi ház
Belső terület
193 m²
Telek terület
785 m²
Tájolás
délnyugat
Építési állapot
használt
Építési mód
tégla
Szobák száma
4 szoba
Épület szintje
földszintes.
Épült
2025
Ingatlan állapot
kívül: új
belül: új
Ablak szerkezete
3 rétegű thermoplan
Fűtés
hőszivattyús
Komfort
duplakomfort
Parkolás
van, nem meghatározott
Közműállapot
csatorna: bekötve
gáz: bekötve
villany: bekötve
víz: bekötve
Energetika
nincs megadva