Eladó ház - Göd

KAPCSOLAT
Kovács Barbara


+36 30 915

proluxingatlaniroda@

Az időpont kérés naptár ikonja
IDŐPONTOT KÉREK
A visszahívás kérés telefon ikonja egy azt körbe ölelő nyíllal
VISSZAHÍVÁST KÉREK
Ajánlom egy ismerősömnek ikon
AJÁNLOM EGY ISMERŐSÖMNEK
Facebook megosztás ikon
MEGOSZTÁS

KAPCSOLATFELVÉTEL

Küldés

Az üzenetet sikeresen elküldtük!
Hiba történt!
INGATLAN ADATAI

Ingatlan jellege

családi ház

Belső terület

168 m²

Telek terület

690 m²

Tájolás

délnyugat

Építési állapot

használt

Építési mód

tégla

Szobák száma

5 szoba

Szobák elhelyezkedése

külön nyílik min. 2 szoba

Épület szintje

2.

Épült

2026

Akadálymentes

részlegesen

Ingatlan állapot

kívül: új
belül: új

Klíma

van

Szigetelés

15 cm

Ablak szerkezete

3 rétegű thermoplan

Fűtés

cirko

Komfort

duplakomfort

Közműállapot

csatorna: bekötve
gáz: bekötve
villany: bekötve
víz: bekötve

Energetika

nincs megadva

Az időpont kérés naptár ikonja
HTML
Az időpont kérés naptár ikonja
PDF
Eladó ház
Ingatlan azonosító:
1909_pl

Pest megye, Göd

Irányár

185 M Ft
(1.1 M Ft/㎡)

Szobák

5 szoba

Terület

168 m²

Telek terület

690 m²
INGATLAN LEÍRÁSA
Eladó új építésű, kulcsrakész családi ház Gödön – csendes, belterületi elhelyezkedéssel
Göd egyik kedvelt, nyugodt utcájában, a Jókai utcában kínáljuk megvételre ezt az új építésű, kulcsra kész állapotú modern családi házat. A kiváló műszaki paraméterekkel rendelkező ingatlan 690 m²-es, aszfaltozott utcáról megközelíthető telekre épül.
3 fázis ki lesz alakítva.
Az árban gázcirkós fűtés van padlófűtéssel, 2 klímával, azonban hőszivattyúval is lehet kérni.

Átadás 2026 ősz.
Az építkezés már folyamatban van.
A burkolat kiválasztásig a kivitelező folyamatosan halad önerőből is.
Rengeteg referencia munkát tudunk mutatni.
Beépített összes terepszint fölötti alapterület: 130,23 m2 - (18,87 %)
Bruttó szintterület: 228,082 m2
Összes hasznos alapterület: 167,19 m2
Zöldfelület mérete: 506,58 m2
Számított épületmagasság: 4,90 m
Tető hajlásszög: 39° és 19° emeleti lakótér fölött
Parkolás: telken belül 1 állásos garázsban

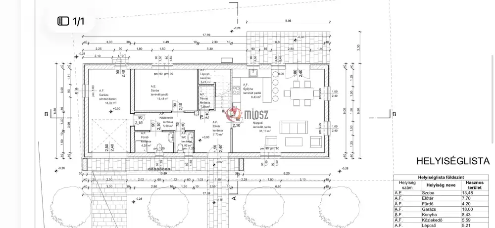
Helyiség kimutatás
F. Szoba 13,48
Előtér 7,70
Fürdő 4,20
Garázs 18,00
Konyha 8,43
Közlekedő 5,59
Lépcső 5,21
Nappali 31,10
Tároló 1,39
WC 1,95
Földszint összesen: 97,05 m2
Szoba 12,89
Szoba 15,32
Szoba 15,24
Fürdő 5,27
Gépészet 1,95
Háztartási helyiség 5,11
Közlekedő 12,12
WC 2,24
Emelet összesen: 71,83 m2
Összes hasznos alapterület: 167,19 m2
Összes hasznos alapterület: 167,19 m2
Összes nettó alapterület: 168,88 m2

További információért vagy megtekintésért hívjon bizalommal!

Néhány adat a megbízó által közölt információ alapján került feltüntetésre, így a tévedés jogát fenntartjuk!

Egyéb információért hívjon bizalommal.
Amiben segítjük Önöket:
- hitel ügyintézés
- CSOK ügyintézés
- energetikai tanúsítvány
- földhivatali háttér
- földmérés
- értékbecslés
- ingyenes ajánlatküldés országos rendszerből!

INGATLAN ADATAI

Ingatlan jellege
családi ház
Belső terület
168 m²
Telek terület
690 m²
Tájolás
délnyugat
Építési állapot
használt
Építési mód
tégla
Szobák száma
5 szoba
Szobák elhelyezkedése
külön nyílik min. 2 szoba
Épület szintje
2.
Épült
2026
Akadálymentes
részlegesen
Ingatlan állapot
kívül: új
belül: új
Klíma
van
Szigetelés
15 cm
Ablak szerkezete
3 rétegű thermoplan
Fűtés
cirko
Komfort
duplakomfort
Közműállapot
csatorna: bekötve
gáz: bekötve
villany: bekötve
víz: bekötve
Energetika
nincs megadva
TÉRKÉP

Pest megye, Göd

KAPCSOLAT
Kovács Barbara
Kovács Barbara


+36 30 915 2942

proluxingatlaniroda@gmail.com

KAPCSOLAT
Kovács Barbara

+36 30 915

proluxingatlaniroda@

Az időpont kérés naptár ikonja
IDŐPONTOT KÉREK
A visszahívás kérés telefon ikonja egy azt körbe ölelő nyíllal
VISSZAHÍVÁST KÉREK
Ajánlom egy ismerősömnek ikon
AJÁNLOM EGY ISMERŐSÖMNEK
Facebook megosztás ikon
MEGOSZTÁS

KAPCSOLATFELVÉTEL

Küldés

Az üzenetet sikeresen elküldtük!
Hiba történt!
INGATLAN ADATAI

Ingatlan jellege

családi ház

Belső terület

168 m²

Telek terület

690 m²

Tájolás

délnyugat

Építési állapot

használt

Építési mód

tégla

Szobák száma

5 szoba

Szobák elhelyezkedése

külön nyílik min. 2 szoba

Épület szintje

2.

Épült

2026

Ingatlan állapot

kívül: új
belül: új

Klíma

van

Szigetelés

15 cm

Ablak szerkezete

3 rétegű thermoplan

Fűtés

cirko

Komfort

duplakomfort

Közműállapot

csatorna: bekötve
gáz: bekötve
villany: bekötve
víz: bekötve

Energetika

nincs megadva

Az időpont kérés naptár ikonja
HTML
Az időpont kérés naptár ikonja
PDF

Hasonló ingatlan hírdetések

Eladó családi ház, vagy kertes ház hirdetést keres Göd területén?
Tekintse meg további ajánlatainkat!

eladó családi ház, Göd

eladó családi ház

Pest megye, Göd, Alsógöd
Eladó Gödön, az alsógödi állomástól 5 perc andalgós sétatávolságra egy könnyedén kétgenerációssá alakítható önálló családi ház. A duplakomfortos lakóingatlan 164 nm, alsó szintjén 30 nm-es nappali-...
Belső terület
164 m²
Telek terület
535 m²
Szobák
8

120 M Ft

kétgenerációs!
Kétgenerációs
eladó családi ház, Göd

eladó családi ház

Pest megye, Göd, Halász utca
Göd – Halász utca | Közvetlen Duna-parti, újszerű luxus családi ház eladó Felsőgöd egyik legértékesebb részén, közvetlenül a Duna-part mellett, eladásra kínálunk egy 2023-ban épült, kivételes minős...
Belső terület
178 m²
Telek terület
641 m²
Szobák
4

318 M Ft

eladó családi ház, Göd

eladó családi ház

Pest megye, Göd, (Felsőgöd), Teleki Pál utca
Felsőgöd egyik csendes, jól élhető utcájában, a Teleki Pál utcában kínálunk megvételre egy önálló családi házat 550 m²-es telken. Az ingatlan hasznos alapterülete 67.1 m2, a 60-as években épült, massz...
Belső terület
67 m²
Telek terület
550 m²
Szobák
2

72.9 M Ft

eladó családi ház, Göd

eladó családi ház

Pest megye, Göd, Felsőgöd
Felsőgödön, nyugodt környezetben önálló családi ház eladó! Felsőgödön, forgalomtól mentes utcában, a Szőlőkert utca környékén, rendezett lakókörnyezetben eladó egy önálló családi ház, amely ikres b...
Belső terület
150 m²
Telek terület
551 m²
Szobák
4

115 M Ft

eladó családi ház, Göd

eladó családi ház

Pest megye, Göd, Alsógöd
Eladó önálló kertes ház Gödön, csendes mellékutcában, a Penny Market közelében! Göd központjában ( Alsógöd szélén ), nyugodt, mellékutcai környezetben eladó egy 77 m²-es, 2+1 fél szobás, önálló k...
Belső terület
77 m²
Telek terület
665 m²
Szobák
2+1

71.9 M Ft

alkalmi vétel
Alkalmi vétel
eladó családi ház, Göd

eladó családi ház

Lakhatás és befektetés egy ingatlanon belül

Pest megye, Göd, (Felsőgöd), Ady Endre utca
Felsőgödön az Ady Endre úton, családi ház - utcafronti üzlethelyiséggel eladó! Egy ingatlan, ami nem csak lakhatásra, hanem bevételre is alkalmas – ritka kombináció! 722m²-es telken fekvő, többfun...
Belső terület
123 m²
Telek terület
722 m²
Szobák
2+1

109 M Ft

eladó családi ház, Göd

eladó családi ház

Pest megye, Göd, Felsőgöd
Felsőgöd frekventált részén, a dunai oldalon, részben felújított családi ház eladó. Eladásra kínálok Felsőgödön, jól megközelíthető helyen 600 m2 telken egy 100 m2 családi házat. Az ingatlan 197...
Belső terület
100 m²
Telek terület
600 m²
Szobák
3

89.9 M Ft

eladó új építésű családi ház, Göd

eladó új építésű családi ház

Pest megye, Göd, Alsógöd
ÁLOMOTTHON GÖDÖN – PRÉMIUM MINŐSÉG, CSENDES KERTVÁROSI KÖRNYEZETBEN! Göd egyik csendes, jó infrastruktúrával rendelkező utcájában kínálunk megvételre egy bruttó 181 m²-es, modern, kétszintes, nappa...
Belső terület
181 m²
Telek terület
560 m²
Szobák
5

184.9 M Ft

Új építésű!
Új építésű
Pest megye - Göd
Pest megye - Göd
Pest megye - Göd
Pest megye - Göd
Pest megye - Göd
Pest megye - Göd