Eladó ház - Balaton

KAPCSOLAT
Kormos Ágnes


+36 30 218

info@

Az időpont kérés naptár ikonja
IDŐPONTOT KÉREK
A visszahívás kérés telefon ikonja egy azt körbe ölelő nyíllal
VISSZAHÍVÁST KÉREK
Ajánlom egy ismerősömnek ikon
AJÁNLOM EGY ISMERŐSÖMNEK
Facebook megosztás ikon
MEGOSZTÁS

KAPCSOLATFELVÉTEL

Küldés

Az üzenetet sikeresen elküldtük!
Hiba történt!
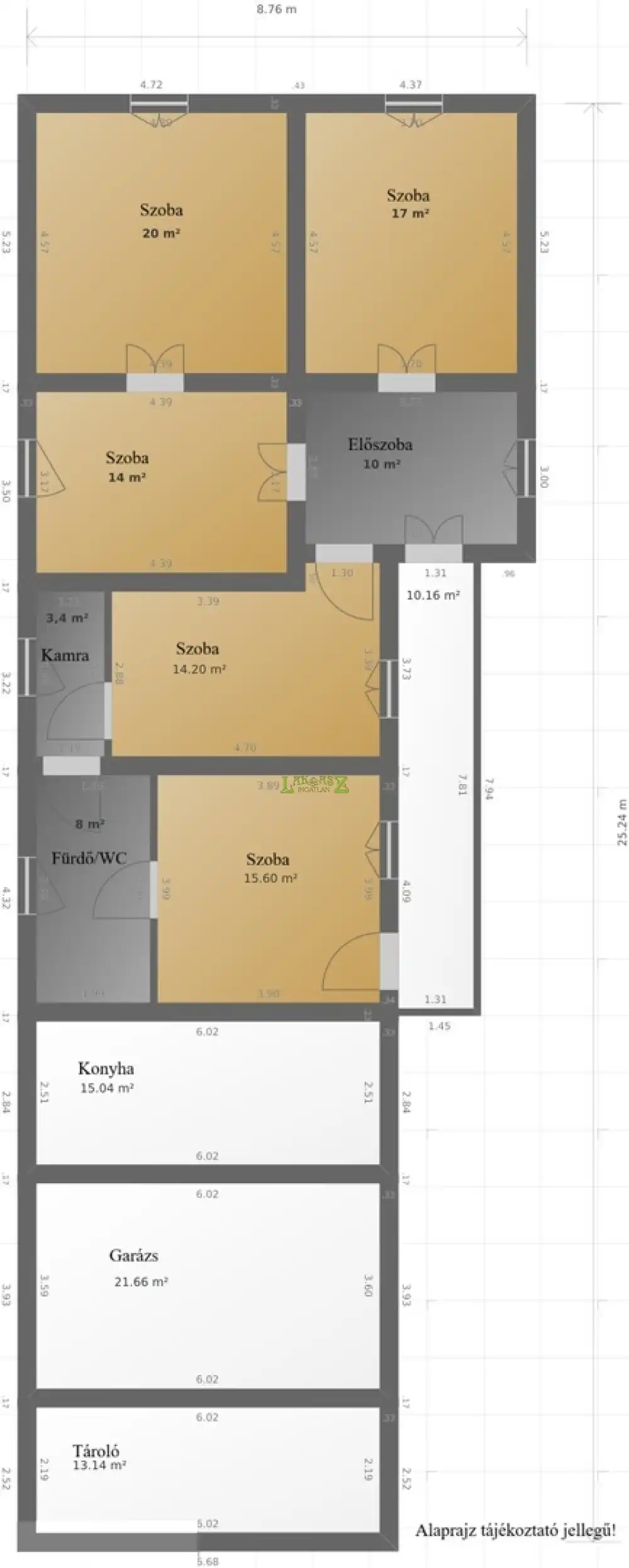
INGATLAN ADATAI

Ingatlan jellege

családi ház

Belső terület

100 m²

Telek terület

828 m²

Tájolás

kelet, nyugat

Építési állapot

használt

Építési mód

tégla

Szobák száma

4 szoba

Épület szintje

földszintes.

Épült

1944

Ingatlan állapot

kívül: jó
belül: felújítandó

Ablak szerkezete

hagyományos

Fűtés

gázkonvektor

Komfort

komfort

Parkolás

van önálló garázs

Közműállapot

csatorna: bekötve
gáz: bekötve
villany: bekötve
víz: bekötve

Energetika

I 2024:

Az időpont kérés naptár ikonja
HTML
Az időpont kérés naptár ikonja
PDF
Eladó ház
Ingatlan azonosító:
431_la

Heves megye, Balaton

Irányár

12.9 M Ft
(129 E Ft/㎡)

Szobák

4 szoba

Terület

100 m²

Telek terület

828 m²
INGATLAN LEÍRÁSA
Bükk hegység lábánál, Balaton községben, jó adottsággal rendelkező, 100m2-es, igény szerint alakítható családi ház, garázs, gazdasági épület eladó!

Balaton község, Heves vármegye északi részén található, Szilvásvárad szomszédságában, dombok ölelésében. Az ingatlan a központban található, kellemes falusi és igényes szomszédos házak környezetében.

Gondos gazdára váró ház régóta üresen áll. Várja az új lakóját, aki meglátja benne a lehetőséget és saját igénye, ízlése szerint szeretné alakítani.

Az ingatlan több ütemben épült, keménykő alapra, többnyire téglából. A lakatlanságából adódóan több kisebb-nagyobb szerkezeti probléma látható-tapasztalható. Minden közművel rendelkezik (gáz, víz, szennyvíz, villany). Bő hozamú ásott kút is rendelkezésre áll. A tető műpalafedésű nem tapasztalható probléma, beázási nyom.

Jó helyen, jó adottságú ingatlan, gondos kezek által, kellemes otthon válhat belőle!

Bővebb információért, keressen bizalommal!


INGATLAN ADATAI

Ingatlan jellege
családi ház
Belső terület
100 m²
Telek terület
828 m²
Tájolás
kelet, nyugat
Építési állapot
használt
Építési mód
tégla
Szobák száma
4 szoba
Épület szintje
földszintes.
Épült
1944
Ingatlan állapot
kívül: jó
belül: felújítandó
Ablak szerkezete
hagyományos
Fűtés
gázkonvektor
Komfort
komfort
Parkolás
van önálló garázs
Közműállapot
csatorna: bekötve
gáz: bekötve
villany: bekötve
víz: bekötve
Energetika
I 2024:
TÉRKÉP

Heves megye, Balaton

KAPCSOLAT
Kormos Ágnes
Kormos Ágnes


+36 30 218 8213

info@lakasz.ingatlan.hu

KAPCSOLAT
Kormos Ágnes

+36 30 218

info@

Az időpont kérés naptár ikonja
IDŐPONTOT KÉREK
A visszahívás kérés telefon ikonja egy azt körbe ölelő nyíllal
VISSZAHÍVÁST KÉREK
Ajánlom egy ismerősömnek ikon
AJÁNLOM EGY ISMERŐSÖMNEK
Facebook megosztás ikon
MEGOSZTÁS

KAPCSOLATFELVÉTEL

Küldés

Az üzenetet sikeresen elküldtük!
Hiba történt!
INGATLAN ADATAI

Ingatlan jellege

családi ház

Belső terület

100 m²

Telek terület

828 m²

Tájolás

kelet, nyugat

Építési állapot

használt

Építési mód

tégla

Szobák száma

4 szoba

Épület szintje

földszintes.

Épült

1944

Ingatlan állapot

kívül: jó
belül: felújítandó

Ablak szerkezete

hagyományos

Fűtés

gázkonvektor

Komfort

komfort

Parkolás

van önálló garázs

Közműállapot

csatorna: bekötve
gáz: bekötve
villany: bekötve
víz: bekötve

Energetika

I 2024:

Az időpont kérés naptár ikonja
HTML
Az időpont kérés naptár ikonja
PDF

Hasonló ingatlan hírdetések

Eladó családi ház, vagy kertes ház hirdetést keres Balaton területén?
Tekintse meg további ajánlatainkat!

eladó családi ház, Balaton

eladó családi ház

Heves megye, Balaton
Bükk lábánál, Falusi CSOK-ra alkalmas, 100m2-es, 4 szoba +szuterénes családi házat kínálok, 1587m2-es természetközeli telken. Balaton község, Egertől 25, Szilvásváradtól 10km-re Heves vármegye észa...
Belső terület
100 m²
Telek terület
1587 m²
Szobák
3+1

14.9 M Ft

eladó családi ház, Balaton

eladó családi ház

Heves megye, Balaton
Bükk hegység lábánál, Balaton községben, jó szerkezeti állapotú, 80m2-es, 2 szoba+nappalis családi ház, garázs, gazdasági épület eladó! Balaton község, Heves vármegye északi részén található, Szilv...
Belső terület
80 m²
Telek terület
833 m²
Szobák
3

15.9 M Ft

Heves megye - Balaton
Heves megye - Balaton
Heves megye - Balaton
Heves megye - Balaton
Heves megye - Balaton
Heves megye - Balaton
Heves megye - Balaton
Heves megye - Balaton
Heves megye - Balaton
Heves megye - Balaton
Heves megye - Balaton
Heves megye - Balaton